La ferme inversée

 
1687 Vuisternens-devant-romont,
Suisse

Publié le 15 avril 2026
Bard Yersin Architectes Sàrl
Participation au Swiss Arc Award 2026

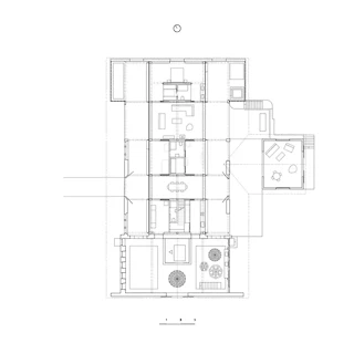
Espace intermédiaire Pignon nord Espace intermédiaire Passage rond Interstice Serre Serre Bains Bains Fourragère Sejour Acces Étages supérieurs Enfilde Cuisine

Données du projet

Données de base

Catégorie de projet
Type de bâtiment
Achèvement
03.2026
Liens

Données du bâtiment selon SIA 416

Étages
de 3 à 5 étages
Nombre de sous-sols
1 étage
Nombre d'appartements
1
Surface de terrain
4160 m²
Surface de plancher
235 m²
Surface utile
235 m²
Volume bâti
1250 m³
Places de parking
2

Description

La ferme inversée – Transformation d’une ferme à la Bruyère, Vuisternens-devant-Romont
Le projet consiste en la transformation d’une ferme du XIXᵉ siècle, typique de la région, qui abrite sous un toit unique le logement et le rural. Privé d’usage agricole et situé hors zone à bâtir, ce volume aux dimensions exceptionnelles est aujourd’hui difficile à maintenir, au regard de la faible surface habitable autorisée. En ce sens, le programme mixte habitation / permaculture prévu par le maître d’ouvrage constitue une opportunité rare de requalification cohérente de l’ensemble. 

La superficie de plain-pied du logement existant étant insuffisantes au besoin du propriétaire, le projet opère un renversement d’usage : le rural accueille la nouvelle habitation, tandis que le logis, situé plein sud, est entièrement vidé et transformé en serre dédiée à la permaculture. L’espace de la grange, demeurant disproportionné par rapport aux besoins de l’habitation, le partit pris consiste en l’implantation d’un volume isolé, en retrait de l’enveloppe existante. Les surfaces intermédiaires qui en résultent sont alternativement dédiées aux plantations et aux espaces extérieurs couverts de l’habitation. Afin d’ancrer la nouvelle habitation dans la logique constructive du bâtiment, celle-ci se compose d’une grille structurelle en bois, implantée sur la trame de la charpente existante et complétée par des parois de bois et de verre. Ce dispositif permet la reprise efficace des charges de la toiture tout en limitant le caractère exogène du nouveau volume. 

L’organisation du plan reprend le rythme de la structure d’origine : les travées correspondant aux fourragères abritent les espaces majeurs qui bénéficient de double hauteur et d’espaces traversants, tandis que les segments coïncidant avec les anciennes écuries et remises sont subdivisés par des noyaux en brique de terre cuite accueillant les espaces servants. Des enfilades latérales connectent les différentes pièces, renforçant la perce

Le projet de Bard Yersin Architectes a été soumis dans le cadre du Swiss Arc Award 2026 et publié par Nina Farhumand.

217450395