Der umgekehrte Bauernhof

 
1687 Vuisternens-devant-romont,
Schweiz

Veröffentlicht am 15. April 2026
Bard Yersin Architectes Sàrl
Teilnahme am Swiss Arc Award 2026

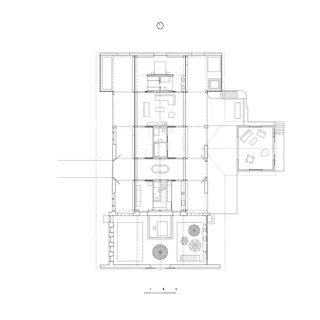
Zwischenraum Nordgiebel Zwischenraum Runder Durchgang Zwischenfuge Gewächshaus Gewächshaus Bäder Bäder Heulager Wohnraum Zugang Obergeschoss Raumflucht Küche

Projektdaten

Basisdaten

Projektkategorie
Fertigstellung
03.2026
Links

Gebäudedaten nach SIA 416

Stockwerke
3 bis 5
Anzahl Kellergeschosse
1
Anzahl Wohnungen
1
Grundstücksfläche
4160 m²
Geschossfläche
235 m²
Nutzfläche
235 m²
Gebäudevolumen
1250 m³
Parkplätze
2

Beschreibung

Der umgekehrte Bauernhof – Umnutzung eines Bauernhauses in La Bruyère, Vuisternens-devant-Romont
Das Projekt umfasst die Transformation eines typischen Bauernhauses aus dem 19. Jahrhundert der Region, das unter einem einzigen Dach Wohnteil und Ökonomieteil vereint. Ohne landwirtschaftliche Nutzung und ausserhalb der Bauzone gelegen, ist dieses Gebäudevolumen mit seinen aussergewöhnlichen Dimensionen heute schwer zu erhalten, insbesondere im Hinblick auf die begrenzte zulässige Wohnfläche. In diesem Zusammenhang stellt das vom Bauherrn vorgesehene gemischte Programm aus Wohnen und Permakultur eine seltene Gelegenheit für eine kohärente Neuqualifizierung des gesamten Ensembles dar.

Da die ebenerdige Fläche der bestehenden Wohnung den Bedürfnissen des Eigentümers nicht genügt, schlägt das Projekt eine Umkehr der Nutzung vor: Der Ökonomieteil nimmt die neue Wohnnutzung auf, während der nach Süden orientierte Wohnteil vollständig entkernt und in ein Gewächshaus für Permakultur umgewandelt wird. Da der Scheunenraum im Verhältnis zum Wohnbedarf weiterhin überdimensioniert bleibt, besteht der Ansatz darin, ein eigenständiges, gedämmtes Volumen innerhalb der bestehenden Hülle zu platzieren und von dieser zurückzusetzen. Die daraus entstehenden Zwischenräume werden abwechselnd für Bepflanzungen sowie als überdachte Aussenräume der Wohnung genutzt. Um die neue Wohnstruktur in die konstruktive Logik des bestehenden Gebäudes einzubinden, wird diese als hölzernes Tragwerk ausgebildet, das sich an der Struktur der bestehenden Dachkonstruktion orientiert und durch Holz- und Glaswände ergänzt wird. Dieses System ermöglicht eine effiziente Lastabtragung der Dachkonstruktion und reduziert gleichzeitig den exogenen Charakter des neuen Volumens.

Die Grundrissorganisation übernimmt den Rhythmus der ursprünglichen Struktur: Die Achsen der ehemaligen Heubühnen beherbergen die Hauptbereiche, die von doppelter Raumhöhe und durchgesteckten Räumen profitieren. Die Bereiche der früheren Stallungen und Remisen werden hingegen durch Kerne aus Backstein unterteilt, welche die dienenden Räume aufnehmen. Seitliche Raumfolgen verbinden die einzelnen Bereiche miteinander und verstärken die Wahrnehmung der Dimensionen des Gebäudes.

Das Projekt von Bard Yersin Architectes wurde im Rahmen des Swiss Arc Award 2026 eingereicht und von Nina Farhumand publiziert. 

217463627