Lotissement de Leutschenbach

 
8050 Zürich,
Suisse

Publié le 20 mars 2026
Clou Architekten AG
Participation au Swiss Arc Award 2026

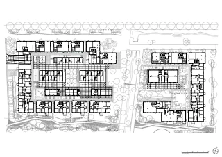
Vue aérienne de la façade depuis le Leutschenpark Vue vers l'ouest, au-delà du Riedgraben, sur la cour intérieure avec la maison communautaire et les ateliers Ruelle entre les bâtiments en bordure et la crèche Vue vers l'est sur la petite cour où se trouve la crèche L'entrée de l'appartement-atelier offre, grâce à une structure en avant, un espace propice à une appropriation personnelle. La place de quartier, lieu de rencontre au cœur d'un ensemble de petites cours L'appartement familial standard permet un taux d'occupation élevé Grâce à ce meuble de rangement qui sert de cloison, le salon peut être utilisé comme pièce supplémentaire à usage individuel. Vue de l'appartement en colocation Les limons d'escalier et la signalétique accompagnent les résidents jusqu'à leur porte d'entrée Vaste hall d'entrée donnant sur la Leutschenbachstrasse L'espace ouvert situé au sud du lotissement fait partie du «jardin intérieur» Cette partie du bâtiment, haute de neuf étages, fait le lien entre les immeubles de grande hauteur situés à l'ouest et au sud du lotissement, sans faire d'ombre au Leutschenpark situé au nord

Données du projet

Données de base

Situation de l'objet
Leutschenbachstrasse 80, 8050 Zürich, Suisse
Catégorie de projet
Type de bâtiment
Achèvement
07.2025

Données du bâtiment selon SIA 416

Étages
de 6 à 10 étages
Nombre de sous-sols
1 étage
Nombre d'appartements
379
Surface de terrain
21'433 m²
Surface de plancher
60'256 m²
Surface utile
44'605 m²
Volume bâti
196'908 m³
Coûts de construction (BKP 2)
149,5 mio. CHF
Places de parking
146

Description

Le projet «Lotissement Leutschenbach» a permis de réaliser environ 380 nouveaux logements urbains à Zurich-Seebach. Des équipements complémentaires, tels qu’une crèche et des locaux destinés aux services et au commerce, constituent les piliers essentiels d’un nouveau centre animé au cœur de ce quartier en pleine expansion. Deux volumes en forme de U, orientés l’un vers l’autre et légèrement décalés, forment un ensemble résidentiel vaste et de grande envergure. L’aménagement villageois de l’espace intérieur – accessible au quartier et aux habitants – est généreusement relié au Leutschenpark et vise à apporter une valeur ajoutée identitaire à la vie urbaine. La cour superpose à cette grande échelle un ensemble d’ateliers à petite échelle ainsi que des espaces de jeux et de convivialité. Les typologies d’habitation, avec des surfaces d’accès réduites au minimum, s’alignent sur les exigences minimales de surface imposées par les aides à la construction de logements et sont le fruit d’une réflexion approfondie sur la mission de la construction de logements d’utilité publique.

Le point de départ de la conception était de déterminer comment un ensemble immobilier urbain de grande hauteur pouvait allier densité, perméabilité et qualité sociale. Le projet fait le lien entre la grande échelle du contexte environnant et un univers intérieur à petite échelle, porteur d’identité, qui profite autant au quartier qu’aux habitants. De larges liaisons avec le Leutschenpark adjacent et le Riedgraben ancrent l'ensemble dans le contexte urbanistique et renforcent l'espace urbain libre. Les typologies d'habitation compactes découlent des exigences de la construction de logements d'utilité publique ; elles sont conçues selon la norme Minergie-P-Eco pour une efficacité énergétique optimale et réalisées avec des matériaux durables. Les exigences du maître d'ouvrage, les besoins des utilisateurs et les objectifs urbains de la société à 2000 watts ont été intégrés au développement, façonnent les plans d'étage et le concept de mobilité, et contribuent de manière significative à la qualité de vie élevée. Le projet illustre parfaitement notre engagement en faveur de la durabilité sociale, spatiale et écologique.

Le projet de Clou Architekten a été présenté dans le cadre du Swiss Arc Award 2026 et publié par Nina Farhumand.

220204741