Wohnsiedlung Leutschenbach

 
8050 Zürich,
Schweiz

Veröffentlicht am 20. März 2026
Clou Architekten AG
Teilnahme am Swiss Arc Award 2026

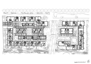
Vogelperspektive der Fassade vom Leutschenpark aus Blick nach Westen, über den Riedgraben hinweg, auf den Innenhof mit dem Gemeinschaftshaus und den Werkstätten Gasse zwischen Randbebauung und Kindergarten Blick nach Osten in den kleineren Hofraum mit Kindergarten Der Eingangsbereich der Atelierwohnung bietet durch ein vorgelagertes Gerüst Raum zur individuellen Aneignung. Der Quartiersplatz als Treffpunkt der kleinteiligen Hofwelt Die Standard-Familienwohnung ermöglicht eine hohe Belegunggsrechte und spart damit wertvolle Ressourcen Dank des Schrankmöbels als Raumteiler kann das Wohnzimmer als zusätzliches Individualzimmer genutzt werden. Blick in die Clusterwohnung Treppenwange und Signaletik begleiten die Bewohnenden bis vor die Haustüre Grosszügiger Eingangsbereich entlang der Leutschenbachstrasse Der südliche Freiraum der Wohnsiedlung ist Teil des «Inneren Gartens» Der neungeschossige Gebäudeteil vermittelt zwischen den Hochhäusern westlich und südlich der Siedlung, ohne den nördlichen Leutschenpark zu verschatten

Projektdaten

Basisdaten

Lage des Objektes
Leutschenbachstrasse 80, 8050 Zürich, Schweiz
Projektkategorie
Gebäudeart
Fertigstellung
07.2025
Links

Gebäudedaten nach SIA 416

Stockwerke
6 bis 10
Anzahl Kellergeschosse
1
Anzahl Wohnungen
379
Grundstücksfläche
21'433 m²
Geschossfläche
60'256 m²
Nutzfläche
44'605 m²
Gebäudevolumen
196'908 m³
Gebäudekosten (BKP 2)
149,5 Mio. CHF
Parkplätze
146

Beschreibung

Mit dem Projekt «Wohnsiedlung Leutschenbach» wurden in Zürich-Seebach rund 380 neue städtische Wohnungen realisiert. Zusatznutzungen wie ein Kindergarten und Räume für Dienstleistungen und Gewerbe setzen wichtige Grundpfeiler für ein neues, belebtes Zentrum mitten im wachsenden Quartier. Durch zwei zueinander ausgerichtete und leicht gestaffelte, U-förmige Baukörper wird eine weitläufige, grossmassstäbliche Siedlung gebildet. Die eingeschriebene, dörfliche Gestaltung des Innenbereichs – nutzbar für Quartier und Bewohnende – ist grosszügig mit dem Leutschenpark verbunden und soll einen identitätsstiftenden Mehrwert für urbanes Leben bringen.Der Hof überlagert den Grossmassstab mit einer kleinteiligen Atelierwelt sowie Plätzen für Spiel und Zusammensein. Die Wohntypologien mit minimierten Erschliessungsflächen orientieren sich an den minimalen Flächenvorgaben der Wohnbauförderung und sind aus einer fundierten Auseinandersetzung mit der Aufgabenstellung des gemeinnützigen Wohnungsbaus entstanden.

Ausgangspunkt des Entwurfs war die Frage, wie hoher städtischer Wohnungsbau Dichte, Durchlässigkeit und soziale Qualität verbinden kann. Das Projekt vermittelt zwischen dem Grossmassstab des Umfelds und einer kleinteiligen, identitätsstiftenden Innenwelt, die für Nachbarschaft und Bewohnende gleichermassen nutzbar ist. Grosszügige Verbindungen zum angrenzenden Leutschenpark und zum Riedgraben verankern das Ensemble im städtebaulichen Kontext und stärken den urbanen Freiraum. Die kompakten Wohntypologien entstehen aus den Anforderungen des gemeinnützigen Wohnungsbaus, energieeffizient im Minergie-P-Eco-Standard geplant und mit nachhaltigen Materialien umgesetzt. Bauherrschaft, Nutzerbedürfnisse und städtische Ziele der 2000-Watt-Gesellschaft flossen in die Entwicklung ein, prägen Grundrisse und Mobilitätskonzept und tragen wesentlich zur hohen Lebensqualität bei. Das Projekt steht exemplarisch für unsere Auseinandersetzung mit sozialer, räumlicher und ökologischer Nachhaltigkeit.

Das Projekt von Clou Architekten wurde im Rahmen des Swiss Arc Award 2026 eingereicht und von Nina Farhumand publiziert.

220204778