Maison Reichenbach

 
1958 Uvrier,
Suisse

Publié le 15 avril 2026
meyer architecture Sàrl
Participation au Swiss Arc Award 2026

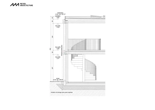
Villa individuelle avec toiture plate en béton préfabriqué et crépis Escalier en colimaçon vert en retrait dans le salon, entre béton apparent et chape cirée

Données du projet

Données de base

Catégorie de projet
Type de bâtiment
Achèvement
06.2025
Liens

Données du bâtiment selon SIA 416

Étages
2 étages
Surface de terrain
693 m²
Surface de plancher
215 m²
Volume bâti
738 m³
Coûts de construction (BKP 2)
1,2 mio. CHF
Places de parking
2
Nombre de lits
3

Description

Située à Uvrier, cette maison s’étire suivant la forme allongée de sa parcelle et se développe sur deux niveaux. Le rez-de-chaussée accueille les espaces de vie, tandis que l’étage est dédié aux chambres, offrant une organisation claire et fonctionnelle. La configuration du site, étroite et orientée, a guidé l’allongement du bâtiment ainsi que le positionnement de la terrasse et de la piscine afin de tirer parti des vues et de la lumière naturelle.

Un couvert annexe près de l’entrée abrite les véhicules et accompagne le cheminement vers la maison. Le hall s’ouvre sur une cuisine ouverte sur la salle à manger. Une double hauteur avec une ouverture en toiture arrondie au-dessus de cette dernière confère générosité et luminosité à l’espace. La cheminée placée au centre de l’espace de vie structure et relie subtilement le salon et la salle à manger, tout en marquant une séparation harmonieuse.

De larges baies vitrées prolongent les espaces intérieurs vers une terrasse en bois intégrant une piscine, renforçant le dialogue entre intérieur et extérieur et affirmant un rapport fluide aux usages du jardin. Les espaces ont été pensés en trois dimensions, afin de s’ouvrir dans différentes directions et d’optimiser les apports de lumière ainsi que les continuités spatiales entre les volumes.

Un escalier en colimaçon relie les deux niveaux, assurant une circulation fluide et élégante entre les espaces, tout en s’inscrivant dans une composition verticale accompagnée de variations de hauteurs. L’ensemble du projet s’inspire d’une idée d’espaces généreux, lumineux et conviviaux, favorisant une circulation fluide et une forte connexion avec l’extérieur, en réponse au souhait du maître d’ouvrage d’un cadre de vie contemporain, confortable et chaleureux.

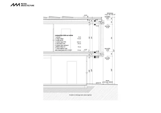
L’ensemble du projet combine fonctionnalité, luminosité et continuité visuelle grâce à un choix de matériaux sobres et cohérents: les larges baies vitrées et le bois de la terrasse prolongent les espaces vers l’extérieur, tandis qu’à l’intérieur, les murs et plafonds en béton apparent s’associent à une chape cirée pour une matérialité simple et élégante. Les façades crépies, rythmées par des têtes de dalle en béton préfabriqué, viennent structurer le volume et souligner la composition architecturale.

Le projet a été soumis au Swiss Arc Award 2026 par Meyer Architecture et publié par Jørg Himmelreich.

224525196