Haus Reichenbach

 
1958 Uvrier,
Schweiz

Veröffentlicht am 15. April 2026
meyer architecture Sàrl
Teilnahme am Swiss Arc Award 2026

Einfamilienhaus mit Flachdach aus Betonfertigteilen und Putz Eine zurückgesetzte grüne Wendeltreppe im Wohnzimmer, zwischen Sichtbeton und gewachstem Estrich

Projektdaten

Basisdaten

Projektkategorie
Fertigstellung
06.2025
Links

Gebäudedaten nach SIA 416

Stockwerke
2
Grundstücksfläche
693 m²
Geschossfläche
215 m²
Gebäudevolumen
738 m³
Gebäudekosten (BKP 2)
1,2 Mio. CHF
Parkplätze
2
Anzahl Betten
3

Beschreibung

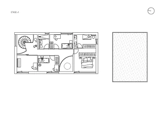
Dieses Haus in Uvrier schmiegt sich an die längliche Form seines Grundstücks an und erstreckt sich über zwei Etagen. Im Erdgeschoss befinden sich die Wohnbereiche, während das Obergeschoss den Schlafzimmern gewidmet ist, was eine klare und funktionale Aufteilung gewährleistet. Die räumliche Organisation folgt dabei dem schmalen, ausgerichteten Grundstück, das die Längsentwicklung des Gebäudes sowie die Positionierung von Terrasse und Pool bestimmt, um Licht und Aussicht optimal zu nutzen.

Ein angebauter Carport nahe dem Eingang bietet Platz für die Fahrzeuge und leitet den Weg zum Haus. Die Eingangshalle öffnet sich zu einer Küche, die zum Esszimmer hin offen ist. Über dem Essbereich entwickelt sich ein abgerundeter Doppelraum mit einer gewölbten Dachöffnung, der dem Innenraum zusätzliche Höhe und eine besondere räumliche Grosszügigkeit verleiht. Der in der Mitte des Wohnbereichs platzierte Kamin strukturiert den Raum und verbindet Wohnzimmer und Esszimmer auf subtile Weise, während er gleichzeitig eine harmonische Zonierung schafft.

Eine zentral angeordnete Wendeltreppe, die ebenfalls in einem Doppelraum liegt, bildet das vertikale Rückgrat des Hauses und sorgt für einen fliessenden, eleganten Übergang zwischen den beiden Ebenen. Die Räume wurden bewusst dreidimensional konzipiert und öffnen sich in verschiedene Richtungen, wodurch Sichtbezüge und Lichtführung verstärkt werden.

Grosse Fensterfronten erweitern die Innenräume hin zu einer Holzterrasse mit Pool und intensivieren den Dialog zwischen Innen- und Aussenraum. Dieses Zusammenspiel wird durch die Materialwahl zusätzlich betont: Holz im Aussenbereich erweitert den Wohnraum nach aussen, während im Inneren Sichtbetonwände, ein gewachster Estrich sowie eine reduzierte, klare Materialität eine ruhige und zeitgemässe Atmosphäre schaffen. Die verputzten Fassaden werden durch vorgefertigte Betonplattenkappen gegliedert und geben dem Volumen eine präzise Struktur.

Das gesamte Projekt vereint Funktionalität, räumliche Grosszügigkeit und visuelle Kontinuität zu einem offenen, hellen und zugleich behaglichen Wohnraum, der den zeitgemässen Anspruch an Komfort und Atmosphäre konsequent umsetzt.

Das Projekt wurde von meyer architecture für den Swiss Arc Award 2026 eingereicht und von Jørg Himmelreich publiziert.

224426467