Nouvelle construction Casa Depuoz

 
7188 Sedrun,
Suisse

Publié le 02 mars 2026
Albertin Architekten GmbH
Participation au Swiss Arc Award 2026

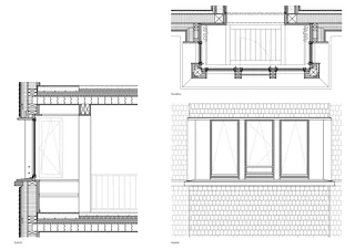
Parvis pour les échanges entre les résidents, la population et les écoliers Rez-de-chaussée avec accès à l'espace extérieur Jeu de surfaces en bardeaux et bardage en bois La fontaine en bois, élément central de la communauté Entrée couverte Conception de la façade d'une véranda Vue depuis la cuisine vers le couloir Vue sur le jardin d'hiver Chambre des résidents Vue dans le couloir et rapport spatial avec la salle de séjour Les encorbellements, des refuges douillets Jardin d'hiver pour une utilisation toute l'année avec vue panoramique sur les montagnes

Données du projet

Données de base

Situation de l'objet
Via Dulezi 4, 7188 Sedrun, Suisse
Catégorie de projet
Type de bâtiment
Achèvement
06.2025

Données du bâtiment selon SIA 416

Étages
de 3 à 5 étages
Nombre d'appartements
3
Surface de terrain
1435 m²
Surface de plancher
1590 m²
Surface utile
1360 m²
Volume bâti
4660 m³
Coûts de construction (BKP 2)
5,2 mio. CHF
Nombre de postes de travail
4
Places de parking
2
Nombre de lits
13

Description

Le nouveau bâtiment de la Casa Depuoz est un lieu où l'architecture durable devient un espace de bien-être – un foyer qui offre sécurité, autonomie et vie communautaire. Il offre à douze adultes souffrant de troubles cognitifs un foyer protégé où ils peuvent vivre en toute autonomie. L'entrée se trouve à un carrefour entre l'école, la gare et le centre-ville. Une place ouverte avec une fontaine et un érable sycomore marque l'arrivée et favorise les rencontres entre les résidents, les invités et les habitants. Le nouveau bâtiment s'inscrit dans une démarche de responsabilité envers les personnes et l'environnement. L'utilisation de matériaux disponibles dans la région et le renoncement délibéré aux produits finis réduisent la consommation d'énergie non renouvelable. Une installation photovoltaïque et le chauffage urbain garantissent un fonctionnement responsable. La construction et l'exploitation du bâtiment sont inférieures aux valeurs de référence de la norme SIA 390/1. Il s'inscrit dans une harmonie durable avec le lieu, l'époque et la société. Construit à partir de 230 mètres cubes de bois suisse et recouvert de bardeaux de mélèze fendus à la main, le bâtiment dégage une impression de chaleur et de soin artisanal. La façade fait référence au contexte historique et s'intègre naturellement dans le village. Les constructions préfabriquées en bois pour les murs et les plafonds, réalisées à partir de bois local, raccourcissent les distances de transport, renforcent l'artisanat local et permettent une construction durable. Chaque étage forme un groupe d'habitation indépendant avec un salon et une salle à manger communs, qui s'ouvrent vers le sud et suivent la course du soleil. À la jonction entre la communauté et la retraite se trouve la salle des soignants, qui fait le lien entre les pièces animées au sud et les chambres plus calmes des résidents à l'arrière. Les sols en terre battue et les enduits d'argile caractérisent l'intérieur et contribuent de manière significative à un climat intérieur sain et au bien-être. Ce nouveau bâtiment est plus qu'un simple bâtiment: c'est un lieu d'échange où les matériaux, la lumière et l'espace procurent un sentiment de sécurité et rendent visible une attitude de vie communautaire.

Qu'est-ce qui caractérise ce projet de construction et quelles sont les réflexions qui le sous-tendent?
L'une des préoccupations centrales était de penser la durabilité non seulement en termes de matériaux, mais aussi en termes de structure globale. La construction a été conçue de manière à rester durable, réparable et adaptable. Des détails simples et compréhensibles permettent de remplacer des éléments individuels si nécessaire, sans intervenir sur la structure globale.

Comment avez-vous abordé cette tâche et à quoi avez-vous accordé de l'importance au cours du processus ?
Au cours du processus, nous avons accordé une importance particulière à une organisation claire et intuitive des espaces, qui favorise l'orientation, la sécurité et l'autonomie. L'organisation spatiale suit le principe d'une succession consciente de rencontres et de retraites : les espaces communs favorisent les échanges et la cohabitation, tandis que les chambres privées offrent des lieux de retraite protégés. Il était également important pour nous de favoriser le bien-être des résidents par le choix des matériaux. C'est pourquoi nous avons systématiquement misé sur des matériaux naturels et peu polluants: le bois, l'argile sous forme d'enduit et le sol en pisé garantissent un climat intérieur sain, ont un effet apaisant et procurent un sentiment de sécurité.

Dans quelle mesure les maîtres d'ouvrage et les utilisateurs ont-ils influencé le projet?
Les maîtres d'ouvrage ont accordé une grande importance à la durabilité et à la viabilité à long terme du bâtiment. Cela a conduit à des choix délibérés en faveur de constructions robustes, de matériaux naturels et de solutions facilitant l'entretien.

Y a-t-il eu des changements d'orientation dans le processus de planification? 
La décision délibérée de renoncer à un sous-sol était une décision fondamentale visant à réduire les émissions de CO₂. Cela a nécessité une coordination précise entre la structure porteuse, la technique du bâtiment et l'organisation, et a conduit à une mise en œuvre cohérente sous la forme d'une construction en bois hors sol.

Quel matériau ou quelle décision constructive a été particulièrement déterminant?
L'utilisation de matériaux naturels et purs et le renoncement à des systèmes composites complexes ont été déterminants. La construction reste ainsi entretenable, réparable et recyclable à long terme et pourra également être entretenue ou adaptée à l'avenir avec des moyens simples.

Le projet d'Albertin Architekten a été présenté dans le cadre du Swiss Arc Award 2026 et publié par Nina Farhumand.

210738586