Neubau Casa Depuoz

 
7188 Sedrun,
Schweiz

Veröffentlicht am 02. März 2026
Albertin Architekten GmbH
Teilnahme am Swiss Arc Award 2026

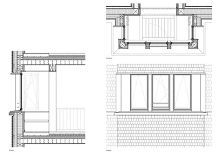
Vorplatz zum Austausch der Bewohner*innen mit der Bevölkerung und den Schulkindern Erdgeschoss mit Bezug zum Aussenraum Flächenspiel aus Schindeln und Holzschalung Holzbrunnen als zentrales Gemeinschaftselement Gedeckter Eingangsbereich Fassadengestaltung beim Wintergarten Blick von Küche zum Korridor Blick in den Wintergarten Bewohnerzimmer Blick in Korridor und Raumbezug zum Aufenthaltsraum Erker als heimeliger Rückzugsort Wintergarten zur alljährlichen Nutzung mit Bergpanorama

Projektdaten

Basisdaten

Lage des Objektes
Via Dulezi 4, 7188 Sedrun, Schweiz
Projektkategorie
Gebäudeart
Fertigstellung
06.2025
Links

Gebäudedaten nach SIA 416

Stockwerke
3 bis 5
Anzahl Wohnungen
3
Grundstücksfläche
1435 m²
Geschossfläche
1590 m²
Nutzfläche
1360 m²
Gebäudevolumen
4660 m³
Gebäudekosten (BKP 2)
5,2 Mio. CHF
Anzahl Arbeitsplätze
4
Parkplätze
2
Anzahl Betten
13

Beschreibung

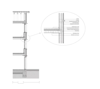
Der Neubau der Casa Depuoz ist ein Ort, an dem nachhaltige Architektur zu einem Raum des Wohlbefindens wird – ein Zuhause, das Sicherheit, Selbstbestimmung und Gemeinschaft ermöglicht. Er bietet zwölf Erwachsenen mit kognitiver Beeinträchtigung ein geschütztes, selbstbestimmtes Zuhause. Der Eingang liegt dort, wo Wege sich kreuzen – zwischen Schule, Bahnhof und Zentrum. Ein offener Platz mit Brunnen und Bergahorn markiert das Ankommen und schafft Begegnung zwischen Bewohner*innen, Gäst*innen und Einheimischen. Der Neubau folgt einer Haltung der Verantwortung gegenüber Mensch und Umwelt. Regional verfügbare Materialien und der bewusste Verzicht auf Fertigprodukte reduzieren den Verbrauch nicht erneuerbarer Energie. Photovoltaikanlage und Fernwärme sichern einen verantwortungsvollen Betrieb. In der Erstellung und im Betrieb unterschreitet das Gebäude die Richtwerte der SIA-Norm 390/1. Es steht im nachhaltigen Einklang mit Ort, Zeit und Gesellschaft. Errichtet aus 230 Kubikmetern Schweizer Holz und verkleidet mit handgespaltenen Lärchenschindeln, strahlt das Gebäude Wärme und handwerkliche Sorgfalt aus. Die Fassade nimmt Bezug zum historischen Kontext und fügt sich selbstverständlich in das Dorf ein. Vorgefertigte Holzkonstruktionen für Wände und Decken aus lokalem Schnittholz verkürzen Transportwege, stärken einheimisches Handwerk und ermöglichen eine nachhaltige Erstellung. Jedes Geschoss bildet eine eigenständige Wohngruppe mit gemeinsamem Wohn- und Essbereich, der sich nach Süden öffnet und dem Lauf der Sonne folgt. An Schnittstelle zwischen Gemeinschaft und Rückzug liegt der Betreuerraum – vermittelnd zwischen den lebendigen Räumen im Süden und den stilleren Bewohnerzimmern im rückwärtigen Bereich. Stampflehmböden und Lehmputze prägen das Innere und tragen wesentlich zu einem gesunden Raumklima und zum Wohlbefinden bei. Dieser Neubau ist mehr als ein Gebäude: ein Ort des Austauschs, an dem Material, Licht und Raum Geborgenheit schenken und eine Haltung des gemeinschaftlichen Lebens sichtbar machen.

Was ist das Besondere an der Bauaufgabe und welche Überlegungen liegen dem Projekt zugrunde?
Ein zentrales Anliegen war es, Nachhaltigkeit nicht nur über Materialien, sondern über den gesamten konstruktiven Aufbau zu denken. Die Konstruktion wurde so entwickelt, dass sie langlebig, reparierbar und anpassbar bleibt. Einfache, nachvollziehbare Details ermöglichen es, einzelne Bauteile bei Bedarf zu ersetzen, ohne in die Gesamtstruktur einzugreifen.

Wie ist man an die Aufgabe herangegangen und worauf hat man im Prozess Wert gelegt?
Im Prozess haben wir besonderen Wert auf eine klare und intuitive Ordnung der Räume gelegt, die Orientierung, Sicherheit und Selbstständigkeit unterstützen. Die räumliche Organisation folgt dem Prinzip einer bewussten Abfolge von Begegnung und Rückzug: Gemeinschaftsbereiche fördern Austausch und Zusammenleben, während private Zimmer geschützte Rückzugsorte bieten. Für uns war es gleichzeitig wichtig, das Wohlbefinden der Bewohnerinnen und Bewohner auch über die Materialwahl zu unterstützen. Deshalb setzten wir konsequent auf natürliche, schadstoffarme Materialien: Holz, Lehm in Form von Lehmverputz und Stampflehmboden sorgen für ein gesundes Raumklima, wirken beruhigend und vermitteln Geborgenheit.

Inwiefern haben Bauherrschaft und Nutzer*innen das Projekt beeinflusst?
Die Bauherrschaft legte grossen Wert auf Dauerhaftigkeit und ein langfristig tragfähiges Gebäude. Dies führte zu bewussten Entscheidungen zugunsten robuster Konstruktionen, naturbelassener Materialien und Lösungen, die eine einfache Instandhaltung ermöglichen.

Gab es Richtungsänderungen im Planungsprozess? 
Der bewusste Verzicht auf ein Untergeschoss war eine grundlegende Entscheidung zur Reduktion von CO₂-Emissionen. Dies erforderte eine präzise Abstimmung von Tragwerk, Gebäudetechnik und Organisation und führte zu einer konsequenten Umsetzung als oberirdischer Holzbau.

Welches Material oder welche konstruktive Entscheidung war besonders entscheidend?
Entscheidend war die Verwendung naturbelassener, sortenreiner Materialien und der Verzicht auf komplexe Verbundsysteme. Dadurch bleibt die Konstruktion langfristig wartbar, reparierbar und kreislauffähig und kann auch in Zukunft mit einfachen Mitteln unterhalten oder angepasst werden.

Das Projekt von Albertin Architekten wurde im Rahmen des Swiss Arc Award 2026 eingereicht und von Nina Farhumand publiziert.

217646946