Nouvelle construction d'une maison individuelle

 
4538 Oberbipp,
Suisse

Publié le 13 février 2026
Neyer & Heiniger Architekten GmbH
Participation au Swiss Arc Award 2026

Données du projet

Données de base

Catégorie de projet
Type de bâtiment
Achèvement
11.2025

Données du bâtiment selon SIA 416

Étages
1
Nombre d'appartements
1
Surface de terrain
1578 m²
Surface de plancher
356 m²
Surface utile
215 m²
Places de parking
2

Description

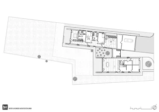
La parcelle a été aménagée comme un ensemble. La maison individuelle est située au nord et se présente comme un bâtiment d'un étage niché dans un écrin de verdure. Les ailes légèrement inclinées s'ouvrent vers l'ouest et la cour intérieure et délimitent des espaces extérieurs différenciés grâce à leur disposition. L'aile la plus longue du bâtiment est réservée à un usage plus privé : les chambres, le salon, les installations techniques et le double garage sont clairement structurés sur le plan fonctionnel. Des ouvertures ciblées dans la façade et une cour de ventilation apportent un supplément de lumière naturelle dans les pièces et créent un haut niveau d'intimité. L'aile la plus courte abrite la cuisine et la salle à manger, généreusement orientées vers l'ouest, complétées par un bureau et des pièces annexes. Les deux ailes s'ouvrent vers l'ouest et la cour intérieure protégée grâce à de grandes baies vitrées, créant ainsi des transitions fluides entre l'intérieur et l'extérieur. La partie intermédiaire sert d'élément de liaison et de distribution entre les espaces privés et les espaces plus publics. Le bâtiment est une construction en bois à ossature bois sur un socle en béton périphérique qui sert également de voie d'accès et d'exploitation. Une pompe à chaleur installée à l'intérieur avec chauffage au sol assure une domotique moderne.

À l'intérieur, les matériaux d'inspiration nordique caractérisent l'atmosphère: des poutres en épicéa apparentes, des fenêtres en bois clair, des murs blancs et des meubles encastrés ainsi qu'un sol poncé et teinté constituent la base. L'aménagement intérieur est mis en valeur par des façades de cuisine vertes et des panneaux muraux colorés dans les pièces humides. L'aménagement extérieur suit une approche minimaliste. Un aménagement en douceur du terrain, des surfaces de gravier dans la cour et des arbres placés de manière stratégique avec des couleurs automnales intenses soulignent la clarté architecturale et créent un contraste vivant avec la façade en bois brun.

L'ancienne parcelle de la scierie a été réaménagée dans le cadre d'un projet d'urbanisme global. Outre la maison individuelle déjà construite, un immeuble collectif est prévu sur le terrain. Il est actuellement en phase de planification et viendra compléter l'ensemble à l'avenir. La maison individuelle est conçue comme une typologie à deux ailes avec des corps de bâtiment légèrement inclinés les uns par rapport aux autres et des toits en pente, ce qui crée des situations de cour différenciées. De généreuses ouvertures vers l'ouest et vers la cour intérieure privée créent des transitions fluides entre l'espace intérieur et l'espace extérieur, tandis que des découpes ciblées dans la façade et une cour de ventilation permettent un éclairage discret et une grande intimité. Le bardage en bois pré-patiné est complété par un socle en béton discret et prolongé par un aménagement intérieur de grande qualité. Bâtiment de plain-pied sans sous-sol, il séduit par son agencement clair et sans obstacle. L'aménagement des environs, avec une topographie douce et une plantation d'arbres ciblée, souligne son intégration harmonieuse dans le village. 

Le projet de Neyer & Heiniger Architekten été soumis dans le cadre du Swiss Arc Award 2026 et publié par Nina Farhumand.

209080573