Neubau Einfamilienhaus

 
4538 Oberbipp,
Schweiz

Veröffentlicht am 13. Februar 2026
Neyer & Heiniger Architekten GmbH
Teilnahme am Swiss Arc Award 2026

Projektdaten

Basisdaten

Projektkategorie
Fertigstellung
11.2025
Links

Gebäudedaten nach SIA 416

Stockwerke
1
Anzahl Wohnungen
1
Grundstücksfläche
1578 m²
Geschossfläche
356 m²
Nutzfläche
215 m²
Parkplätze
2

Beschreibung

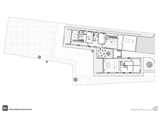
Die Parzelle wurde als Ensemble entwickelt. Das Einfamilienhaus positioniert sich im Norden als eingeschossiger, in die grüne Umgebung eingebetteter Baukörper. Die leicht abgewinkelten Flügel öffnen sich nach Westen und zum Innenhof und zonieren durch ihre Setzung differenzierte Aussenräume. Der längere Gebäudeflügel nimmt die privateren Nutzungen auf: Schlafzimmer, Wohnbereich, Technik und Doppelgarage sind funktional klar gegliedert. Gezielte Fassadeneinschnitte sowie ein Lüftungshof bringen zusätzliches Tageslicht in die Räume und schaffen ein hohes Mass an Privatheit. Im kürzeren Flügel befinden sich Küche und Essbereich mit grosszügiger Westorientierung, ergänzt durch Büro- und Nebenräume. Beide Flügel öffnen sich mit grossen Fensterflächen nach Westen und zum geschützten Innenhof und schaffen fliessende Übergänge zwischen Innen- und Aussenraum. Der Zwischentrakt dient als verbindendes Element und Verteiler zwischen den privaten und den öffentlicheren Wohnbereichen. Das Gebäude ist ein Holzbau in Holzelementbauweise auf einem umlaufenden Betonsockel, der zugleich als Erschliessungs- und Bewirtschaftungsweg dient. Eine innen aufgestellte Wärmepumpe mit Bodenheizung sorgt für eine zeitgemässe Haustechnik.

Im Inneren prägt eine nordisch inspirierte Materialisierung die Atmosphäre: sichtbare Fichtensparren, helle Holzfenster, weisse Wände und Einbaumöbel sowie ein geschliffener, eingefärbter Unterlagsboden bilden die Basis. Akzentuiert wird der Innenausbau durch grüne Küchenfronten und farbige Wandplatten in den Nassräumen. Die Umgebungsgestaltung folgt einem minimalistischen Ansatz. Sanfte Terrainmodellierungen, Kiesflächen im Hof und gezielt gesetzte Bäume mit intensiver Herbstfärbung unterstreichen die architektonische Klarheit und setzen einen lebendigen Kontrast zur braunen Holzfassade.

Die ehemalige Sägereiparzelle wurde als städtebauliches Gesamtbild entwickelt. Neben dem realisierten Einfamilienhaus ist auf dem Grundstück ein Mehrfamilienhaus geplant, das sich derzeit in der Planungsphase befindet und das Ensemble künftig ergänzt. Das Einfamilienhaus ist als zweiflüglige Typologie mit leicht zueinander abgewinkelten Baukörpern und Satteldächern konzipiert, wodurch differenzierte Hofsituationen entstehen. Grosszügige Öffnungen nach Westen und zum privaten Innenhof schaffen fliessende Übergänge zwischen Innen- und Aussenraum, während gezielte Fassadeneinschnitte und ein Lüftungshof eine diskrete Lichtführung und hohe Privatheit ermöglichen. Die vorverwitterte Holzschalung wird durch einen zurückhaltenden Betonsockel ergänzt und durch einen hochwertigen Innenausbau weitergeführt. Als eingeschossiger Bau ohne Unterkellerung überzeugt das Gebäude durch eine klare, hindernisfreie Organisation. Die Umgebungsgestaltung mit sanfter Topografie und gezielter Baumsetzung unterstreicht die ruhige Einbindung in den Ort.

Das Projekt von Neyer & Heiniger Architekten wurde im Rahmen des Swiss Arc Award 2026 eingereicht und von Nina Farhumand publiziert.


209074932