Quartier d'habitation, de bureaux et commerces

 
1020 Renens,
Suisse

Publié le 16 avril 2026
AAPA SA
Participation au Swiss Arc Award 2026

Données du projet

Données de base

Situation de l'objet
Avenue de Malley 10, 1020 Renens, Suisse
Catégorie de projet
Type de bâtiment
Achèvement
06.2025
Liens

Données du bâtiment selon SIA 416

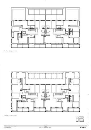
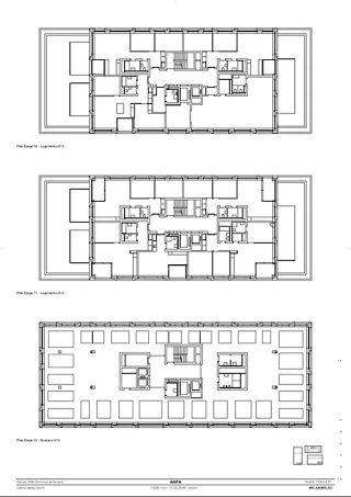
Étages
11 à 20
Nombre de sous-sols
2 étage
Nombre d'appartements
87
Surface de plancher
22'374 m²
Surface utile
16'443 m²
Volume bâti
75'971 m³
Coûts de construction (BKP 2)
100,0 mio. CHF
Places de parking
120

Description

Le projet Malley Gare A, situé à Renens, à proximité de la halte CFF de Prilly-Malley, se compose de trois bâtiments distincts: A10, A20 et A30, qui partagent un sous-sol commun offrant un accès souterrain au parking. Inspirés par l'histoire industrielle du site, les bâtiments affichent une esthétique à la fois robuste et sophistiquée, dont l'imaginaire est à chercher du côté de la ville américaine et des zones d'entreposage industrielles. Les caractéristiques emblématiques du paysage environnant, telles que le gazomètre et le viaduc ferroviaire, ont influencé la conception architecturale, qui allie pragmatisme et efficacité.

Chaque bâtiment raconte, à sa manière, une histoire de bâtisseur. Les façades, par leur épaisseur constructive, captent la lumière et attirent le regard grâce à des réalisations évoquant le rail et la production industrielle, tout en s'inscrivant dans une répétition harmonieuse.

  • Le bâtiment A10 se distingue par sa verticalité, offrant une silhouette majestueuse à proximité des voies ferrées. Sa silhouette se détache sur le ciel, laissant entrevoir un mélange de logements, de bureaux et de commerces. Des éléments verticaux. d'échelle colossale en béton préfabriqué accrochent la lumière et lui confèrent une plasticité sculpturale. Des horizontales marquées décomposent le volume et introduisent une complexité de lecture nécessaire.
  • Le bâtiment A20 adopte une approche plus discrète. Il avance légèrement sur la place de la Coulisse tout en conservant un profil bas. Sa façade, en tôle ondulé, introduit une échelle plus réduite, celle de l'atelier et de la construction métallique artisanale, qui qualifie parfaitement la future place de la Coulisse.
  • Le bâtiment A30 bénéficie d'un retrait stratégique, doté d'une ossature en briques jaunes évoquant des complexes d'ateliers. Son design favorise une transition fluide vers le centre intercommunal de gestion des déchets, assurant ainsi une continuité urbaine.

La mixité de programme a inspiré des objets dont la robustesse sera capable d'accepter confortablement les variations d'usage à venir aussi bien que les mutations du tissu bâti avoisinant: formes fortes pour contexte mouvant.

Le projet de AAPA a été soumis dans le cadre du Swiss Arc Award 2026 et publié par Nina Farhumand.

217694297