Surélévation du pavillon temporaire

 
1032 Romanel-sur-Lausanne,
Suisse

Publié le 20 mars 2026
Emixi Architectes Sàrl
Participation au Swiss Arc Award 2026

Données du projet

Données de base

Situation de l'objet
Chemin de la côte 1b, 1032 Romanel-sur-Lausanne, Suisse
Catégorie de projet
Achèvement
08.2025

Données du bâtiment selon SIA 416

Étages
2 étages

Description

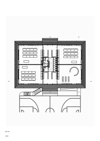
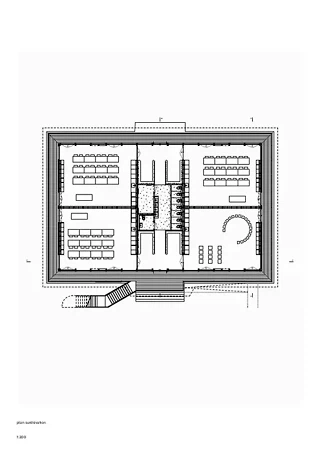
Ce pavillon temporaire, qui comprend huit salles de classe, s'étend sur deux niveaux reliés par une passerelle. Le bâtiment tire parti de son emplacement dans le parc du Prazquéron en proposant des salles de classe à double orientation et un accès à l'extérieur. Il est constitué de modules préfabriqués en bois, dont le système de construction permet un montage rapide et efficace. Bien qu'il s'agisse d'une construction temporaire et démontable, l'accent est mis sur des espaces éducatifs de qualité et confortables, remettant ainsi en question les solutions de conteneurs souvent utilisées pour ce type de projets. L'école provisoire de Romanel-sur-Lausanne répond à un besoin urgent lié à la croissance démographique du village. Les quatre salles de classe du rez-de-chaussée ont été achevées pour la rentrée scolaire 2023. La construction en bois offre une grande flexibilité pour s’adapter aux besoins futurs. Cette caractéristique a déjà été mise à profit pour la rentrée scolaire 2025, avec la construction d’un étage supplémentaire abritant quatre nouvelles salles de classe. Chacun des étages a été conçu et construit en un temps exceptionnellement court – en seulement quelques mois – afin de répondre à l’afflux continu de nouveaux élèves dans la commune.

La construction modulaire en bois s'est imposée comme un choix évident pour ce projet. L'école a été réalisée à partir de l'assemblage d'éléments préfabriqués, ce qui permet un montage rapide et offre la possibilité de la démonter, voire de la reconfigurer ou de la recycler avec un minimum de perte. Le pavillon préfabriqué en bois repose délicatement sur des socles en maçonnerie, ce qui permet de surélever légèrement la structure et assure une ventilation optimale. Le système de chauffage est directement intégré dans les éléments de plancher. Les murs préfabriqués en bois dotés de propriétés ignifuges délimitent les salles de classe autour du noyau central. 

La structure est renforcée par un système composé de poteaux en bois massif et de poteaux métalliques élancés qui soutiennent l'auvent au bord de la pergola. Les façades largement vitrées offrent une vue directe sur le parc et une qualité de lumière propice aux activités pédagogiques. Chaque salle bénéficie d'une double orientation et d'un accès direct à l'extérieur. Les pergolas qui entourent le bâtiment offrent un espace tampon avec l'extérieur et constituent des dispositifs efficaces de protection solaire afin d'éviter la surchauffe en cas de forte chaleur. Malgré son caractère provisoire, le pavillon offre des salles de classe de grande qualité et confortables, conformes aux normes en vigueur. Ce projet a été réalisé grâce à une étroite collaboration entre le maître d'ouvrage, l'équipe d'architectes et les entreprises partenaires. La communication et la coordination fluides entre les différentes parties prenantes ont permis la mise en œuvre réussie de ce projet ambitieux dans un délai très court. Cette planification et cette mise en œuvre rapides ont permis de pallier la surpopulation des établissements scolaires existants et de faire face à la pression démographique croissante.

Le projet d’Emixi Architectes a été présenté dans le cadre du Swiss Arc Award 2026 et publié par Nina Farhumand.

220199929