Aufstockung provisorisches Schulgebäude

 
1032 Romanel-sur-Lausanne,
Schweiz

Veröffentlicht am 20. März 2026
Emixi Architectes Sàrl
Teilnahme am Swiss Arc Award 2026

Projektdaten

Basisdaten

Lage des Objektes
Chemin de la côte 1b, 1032 Romanel-sur-Lausanne, Schweiz
Projektkategorie
Fertigstellung
08.2025

Gebäudedaten nach SIA 416

Stockwerke
2

Beschreibung

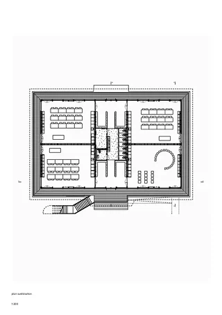
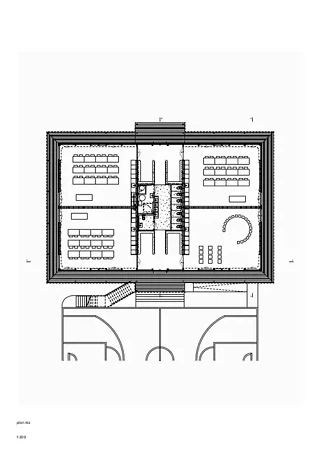
Der temporäre Pavillon mit acht Klassenzimmern erstreckt sich über zwei Ebenen, die durch einen Laufgang verbunden sind. Das Gebäude nutzt seine Lage im Prazquéron-Park, indem es Klassenzimmer mit doppelter Ausrichtung und Zugang ins Freie bietet. Es besteht aus vorgefertigten Holzmodulen, wobei das Bausystem eine schnelle und effiziente Montage ermöglicht. Obwohl es sich um eine temporäre und demontierbare Konstruktion handelt, liegt der Schwerpunkt auf hochwertigen und komfortablen Bildungsräumen, wodurch die für solche Projekte häufig eingesetzten Containerlösungen infrage gestellt werden. Die provisorische Schule in Romanel-sur-Lausanne ist die Antwort auf einen dringenden Bedarf angesichts des Bevölkerungswachstums im Dorf. Die vier Klassenzimmer im Erdgeschoss wurden zum Schuljahresbeginn 2023 fertiggestellt. Die Holzkonstruktion ermöglicht eine hohe Flexibilität, um sich an zukünftige Bedürfnisse anzupassen. Diese Eigenschaft wurde bereits für den Schulbeginn 2025 genutzt – mit der Errichtung eines zusätzlichen Stockwerks, das vier neue Klassenzimmer beherbergt. Jedes der Stockwerke wurde in aussergewöhnlich kurzer Zeit – in nur wenigen Monaten – entworfen und gebaut, um dem anhaltenden Zustrom neuer Schüler*innen in der Gemeinde gerecht zu werden.

Die modulare Holzbauweise war für dieses Projekt die naheliegende Wahl. Die Schule wurde durch die Zusammenfügung vorgefertigter Elemente realisiert, was eine schnelle Montage ermöglicht und die Möglichkeit zum Abbau, ja sogar zur Neukonfiguration oder zum Recycling mit minimalem Verlust bietet. Der vorgefertigte Holzpavillon ruht sanft auf gemauerten Sockeln, was eine leichte Erhöhung der Struktur ermöglicht und für eine optimale Belüftung sorgt. Das Heizsystem ist direkt in die Bodenelemente integriert. Die vorgefertigten Holzwände mit Brandschutzeigenschaften begrenzen die Klassenzimmer rund um den zentralen Kern. Die Konstruktion wird durch ein System aus Massivholzpfosten und schlanken Metallpfosten verstärkt, die das Vordach am Rand des Laubengangs stützen. Die grosszügig verglasten Fassaden ermöglichen einen direkten Blickkontakt zum Park und eine Lichtqualität, die den Unterrichtsaktivitäten zugutekommt. Jeder Raum verfügt über eine doppelte Ausrichtung und einen direkten Zugang nach draussen. Die das Gebäude umgebenden Laubengänge bieten einen Pufferraum zur Aussenwelt und bilden wirksame Sonnenschutzvorrichtungen, um eine Überhitzung bei starker Hitze zu vermeiden. Trotz seines provisorischen Charakters bietet der Pavillon hochwertige und komfortable Unterrichtsräume, die den geltenden Normen entsprechen. Dieses Projekt wurde dank einer engen Zusammenarbeit zwischen der Bauherrschaft und dem Architektenteam sowie den Partnerunternehmen realisiert. Die reibungslose Kommunikation und Koordination zwischen den verschiedenen Beteiligten ermöglichten die erfolgreiche Umsetzung dieses ehrgeizigen Projekts innerhalb sehr kurzer Zeit. Diese schnelle Planung und Umsetzung ermöglichte es, der Überlastung der bestehenden Schuleinrichtungen und dem wachsenden demografischen Druck entgegenzuwirken.

Das Projekt von Emixi Architectes wurde im Rahmen des Swiss Arc Award 2026 eingereicht und von Nina Farhumand publiziert.

220252459