Willy-Brandt-Strasse Hamburg

 
20457 Hamburg,
Allemagne

Publié le 22 avril 2026
Christ & Gantenbein AG

Données du projet

Données de base

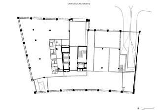
Situation de l'objet
Willy-Brandt Strasse 69, 20457 Hamburg, Allemagne
Type de bâtiment
Achèvement
05.2025

Données du bâtiment selon SIA 416

Étages
de 6 à 10 étages
Nombre de sous-sols
1 étage
Surface de plancher
9070 m²

Description

Le site se trouve au centre de Hambourg, entre la Willy-Brandt-Strasse, une artère à six voies, et le Nikolaifleet. Situé à un emplacement remarquable, à l'extrémité du pont en bois, le nouveau bâtiment s'intègre à une rangée de petites maisons historiques dont la géométrie est façonnée par le tracé du canal. Côté rue, le bâtiment s'ouvre sur le Hopfenmarkt, une place rectangulaire prestigieuse entourée d'un mélange éclectique de styles architecturaux. En arrière-plan, le clocher de l'église Saint-Nicolas ancre le site dans le tissu historique et urbain de Hambourg.

Le bâtiment se compose de deux volumes clairement distincts : la partie bureaux à la tête du pont est plus haute que la partie de liaison à usage partiellement résidentiel, afin de souligner la situation d'angle. Elle présente une trame de façade plus dense, tandis que la partie comprenant les appartements comporte des encorbellements plus larges. Les proportions des pilastres et la largeur des fenêtres jouent un rôle central dans l’harmonie de l’ensemble, tandis que l’utilisation de briques vernissées, de béton et de pierre naturelle contribue à la diversité des finitions. La structure porteuse extérieure en béton est revêtue de briques. La façade est marquée par des pilastres semi-circulaires en brique qui lui confèrent un aspect sculptural, tandis que les fenêtres en retrait renforcent encore l’effet de profondeur.

Deux entrées principales – l’une pour les bureaux, l’autre pour les appartements – donnent sur le Hopfenmarkt adjacent. La cage d’escalier centrale des bureaux permet une répartition flexible des espaces, qui bénéficient de la lumière du jour sur deux à trois côtés. Les appartements sont orientés vers le sud, en direction du canal, et offrent intimité et tranquillité grâce à leur vue sur l’eau. Au rez-de-chaussée, un restaurant et des espaces multifonctionnels le long de la Fleet créent un lien avec la vie urbaine.

Alors que Hambourg continue de se développer, l’architecture joue un rôle central dans le lien entre le passé et l’avenir. Les matériaux, la conception et l’expression du bâtiment contribuent à cette intention. L'intégration d'éléments traditionnels, réinterprétés de manière contemporaine, crée une esthétique spécifique qui transmet un sentiment de dignité et de durabilité, mais aussi une touche d'élégance urbaine. Le résultat est un édifice qui respecte l'histoire de Hambourg, tout en offrant un espace pour les besoins futurs et en contribuant à la transformation continue de l'identité urbaine de la ville.

Inspiré par le passé maritime de Hambourg, le projet capture l'essence même de la ville tout en s'inspirant à la fois des bâtiments historiques bordant les canaux et de l'architecture contemporaine des environs. Avec sa structure en béton recouverte de briques fabriquées localement et à la main, le bâtiment oscille entre artisanat traditionnel et forme sculpturale abstraite. Cette interprétation contemporaine de la riche tradition architecturale de Hambourg donne un nouvel élan au développement urbain du quartier et du Hopfenmarkt adjacent. En intégrant des références historiques, le projet contribue à façonner la transformation continue de la ville tout en préservant son identité historique.

Le nouveau bâtiment fait le lien entre les maisons traditionnelles bordant les canaux et les constructions contemporaines de grande envergure qui longent la Willy-Brandt-Strasse: il en résulte un volume architectural marquant et imposant qui confère de la stabilité à la place en soulignant les axes urbains et en encadrant la vue vers le port — venant ainsi compléter les projets de la ville visant à revaloriser l'espace public autour du Hopfenmarkt. Les retraits et les décalages du bâtiment font précisément référence à la situation d'angle. Le volume, la structure de la façade et l'échelle réagissent aux bâtiments voisins et forment ainsi une sorte de sculpture urbaine qui respecte le contexte existant. Des pilastres semi-circulaires en brique rouge rythment la façade tout en faisant référence à la tradition locale de l'expressionnisme en brique du XXe siècle.

Un soin particulier a été apporté à la conception des détails de la façade, notamment à la maçonnerie en brique. Les briques proviennent d’une production locale. L’argile utilisée pour les briques provient de l’Elbmarsch et est cuite dans un four annulaire traditionnel par la briqueterie familiale Rusch. Fondée en 1881, cette briqueterie est la dernière des plus de 100 briqueteries qui existaient entre Hambourg et Cuxhaven dans la seconde moitié du XIXe siècle. Le savoir-faire artisanal et l’expérience dans le travail de ce matériau naturel se transmettent de génération en génération.

La couleur et la texture de la façade ont été déterminantes pour l'intention architecturale. La teinte verte des encadrements de fenêtres offre un contraste élégant avec les briques rouges et confère au bâtiment une apparence sobre et raffinée. La structure porteuse a joué un rôle tout aussi important : les fondations ne sont pas linéaires, mais ponctuelles, avec des poutres enfoncées profondément dans le sol, adaptées à la situation au bord de l'eau. Le rythme des piliers suit la courbe naturelle de la rive et les exigences du site.

Le projet de Christ & Gantenbein a été présenté dans le cadre du Swiss Arc Award 2026 et publié par Nina Farhumand.

Entreprises impliquées dans le projet

Planification

218704961