Implement Office

 
8002 Zürich,
Schweiz

Veröffentlicht am 01. April 2026
Marc Briefer GmbH
Teilnahme am Swiss Arc Award 2026

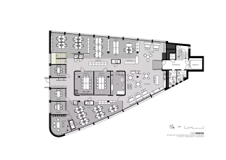
Implement Eingangsbereich Coffee Lounge Coffee Bar Cafeteria Kernzone Meetingräume Teams-Meeting Verbindungstreppe 1. Obergeschoss / 2. Obergeschoss Eventraum und Break out Meetingräume und Fokuszone Collaboration Meeting Event Arena Implement Office Zürich

Projektdaten

Basisdaten

Lage des Objektes
Gutenbergstrasse 9, 8002 Zürich, Schweiz
Projektkategorie
Gebäudeart
Fertigstellung
05.2024
Links

Gebäudedaten nach SIA 416

Stockwerke
3 bis 5
Anzahl Kellergeschosse
mehr als 2
Geschossfläche
1475 m²
Nutzfläche
1295 m²
Gebäudevolumen
12'175 m³
Anzahl Arbeitsplätze
70

Beschreibung

Ausgangssituation
Die hellen Räumlichkeiten boten der Implement Consulting Group aus Kopenhagen durch ihre grosszügige Raumhöhe und die unmittelbare Nähe zum See eine ideale Basis für ihr neues Büro. Mit einer weitläufigen Halle von 600 Quadratmeter im zweiten Obergeschoss und Fensterreihen auf beiden Seiten als Ausgangslage entwickelte sich das räumliche Konzept rasch.

Entwurfsidee
Im Zentrum des Entwurfs steht ein kompakter Meetingkern, der als funktionales und kommunikatives Herzstück des Raumgefüges dient. Um diesen Kern gruppieren sich die Rezeption, die Cafeteria sowie die unterschiedlichen Arbeitsbereiche in einer logisch organisierten Abfolge.

Umbau
Die erste Phase des Projekts wurde im Jahr 2019 erfolgreich abgeschlossen. Nach dem Bezug zeigte sich jedoch für das wachsende Team ein Bedarf an zusätzlichen Flächen, insbesondere für Workshops und Veranstaltungen. 2023 bot sich die Gelegenheit, das 2. Obergeschoss – die alte Fernmeldezentrale des Quartiers – zu übernehmen. Wegen des komplexen Rückbaus und der Statik erfolgte eine intensive Planungs- und Bauphase, die 2024 mit der Fertigstellung des darunterliegenden Geschosses ihren Abschluss fand.

Gestaltung
Die raumhohe Birkenholzverkleidung des Kerns spielt auf die skandinavischen Wurzeln des Unternehmens an und verleiht dem Raum viel Wärme. Auch in der Möblierung werden Klassiker aus beiden Kulturen eingesetzt.

Nachhaltigkeit
Schweizer Holz, Linoleum mit natürlichen Eigenschaften, Cradle-to-Cradle-Teppichboden, modulare Elementwände – horizontal wiederverwendbar.

Gebäudestatik 
1. Obergeschoss mit statisch relevanter Betonwand und aufgehängtem Betonboden über der Garage, welche das 1. Obergeschoss halbiert. Um beide Seiten miteinander zu verbinden, wurden neue Ausschnitte erstellt. Zudem wurde ein Treppendurchbruch zum 2. Obergeschoss mit CFK-Lamellen realisiert. Trotz der unterschiedlichen Situation verbinden sich die Räumlichkeiten zu einem grossen Ganzen mit viel Spielraum.

New Work
Multifunktionsraum aus Cafeteria, mobiler Bar und Arena-Sitzpodesten. Er erlaubt es, den Raum flexibel zu transformieren. Für Collaboration, Workshops, Events, Filmabende oder Friday Bars.

Das Projekt von Marc Briefer  wurde im Rahmen des Swiss Arc Award 2026 eingereicht und von Nina Farhumand publiziert.

222385836