Implement Office

 
8002 Zürich,
Suisse

Publié le 01 avril 2026
Marc Briefer GmbH
Participation au Swiss Arc Award 2026

Données du projet

Données de base

Situation de l'objet
Gutenbergstrasse 9, 8002 Zürich, Suisse
Catégorie de projet
Type de bâtiment
Achèvement
05.2024

Données du bâtiment selon SIA 416

Étages
de 3 à 5 étages
Nombre de sous-sols
plus de 2 sous-sols
Surface de plancher
1475 m²
Surface utile
1295 m²
Volume bâti
12'175 m³
Nombre de postes de travail
70

Description

Concept
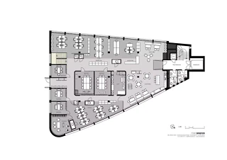
Au cœur du projet se trouve un noyau de réunion compact, qui constitue le centre fonctionnel et communicatif de l’ensemble. Autour de ce noyau s’organisent la réception, la cafétéria ainsi que les différents espaces de travail selon une séquence logique.

Transformation
La première phase du projet a été achevée avec succès en 2019. Après l’emménagement, le développement de l’équipe a fait apparaître un besoin d’espaces supplémentaires, notamment pour des ateliers et des événements. En 2023, l’opportunité s’est présentée de reprendre le deuxième étage – l’ancienne centrale de télécommunications du quartier. En raison de la complexité du démontage et des contraintes structurelles, une phase intensive de planification et de construction a été nécessaire, s’achevant en 2024 avec la finalisation de l’étage inférieur.

Aménagement
Le revêtement en bois de bouleau sur toute la hauteur du noyau fait référence aux racines scandinaves de l’entreprise et confère à l’espace une atmosphère chaleureuse. Le mobilier intègre également des classiques issus des deux cultures.

Durabilité
Bois suisse, linoléum aux propriétés naturelles, moquette Cradle-to-Cradle, cloisons modulaires réutilisables horizontalement.

Structure du bâtiment
Premier étage avec un mur en béton structurel et une dalle suspendue au-dessus du garage, divisant le niveau en deux parties. Afin de relier les deux côtés, de nouvelles ouvertures ont été créées. Une trémie d’escalier vers le deuxième étage a également été réalisée à l’aide de lamelles en fibre de carbone (CFRP). Malgré ces conditions différentes, les espaces s’unifient en un ensemble cohérent offrant une grande flexibilité.

New Work
Un espace multifonctionnel composé d’une cafétéria, d’un bar mobile et de gradins en forme d’arène permet une transformation flexible. Il accueille des activités de collaboration, des ateliers, des événements, des projections de films ou des «Friday bars».

Le projet de Marc Briefer a été soumis dans le cadre du Swiss Arc Award 2026 et publié par Nina Farhumand.

222383653