Pharmacie Amavita Bahnhof Zurich

 
8001 Zürich,
Suisse

Publié le 07 avril 2026
atelier 10punkt3 ag
Participation au Swiss Arc Award 2026

Données du projet

Données de base

Situation de l'objet
Bahnhofplatz 15, 8001 Zürich, Suisse
Catégorie de projet
Type de bâtiment
Achèvement
09.2023

Données du bâtiment selon SIA 416

Surface de plancher
710 m²
Surface utile
654 m²
Nombre de postes de travail
93

Description

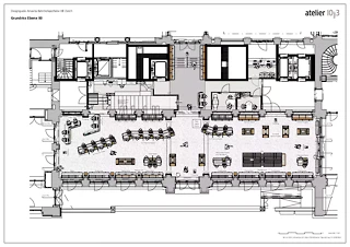
La pharmacie Amavita de la gare centrale de Zurich réintègre, après 3,5 ans d’exploitation provisoire, ses locaux fraîchement rénovés, vieux de près de 150 ans. Mandaté par Galenicare et Amavita, le projet développe, en collaboration avec B-M-K GmbH, une nouvelle expérience pharmaceutique remarquable. Le mobilier de vente haut de gamme, caractérisé par une esthétique matérielle chaleureuse et inspirée de la nature, s’intègre harmonieusement dans l’impressionnante halle des pas perdus classée du bâtiment sud et crée une atmosphère spatiale accueillante.

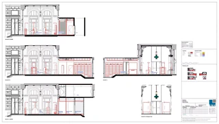
Dans l’espace de la halle, haut de près de sept mètres, les nouveaux meubles de vente Amavita dialoguent de manière cohérente avec l’architecture historique. Le bois de chêne, matériau central du projet, apporte chaleur, harmonie et bien-être, en contraste agréable avec la pierre naturelle plus froide des sols et des murs. Les formes douces et les éléments élégamment courbés du mobilier s’affirment comme une unité avec l’architecture. La lumière naturelle, qui pénètre dans l’espace par la généreuse façade sud, interagit avec les matériaux, les couleurs et les formes, créant un jeu d’ombre et de lumière. L’éclairage artificiel, à la fois diffus et dirigé, est utilisé de manière ciblée pour mettre en valeur les produits, créer de la profondeur plastique et compléter l’ensemble spatial.

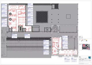
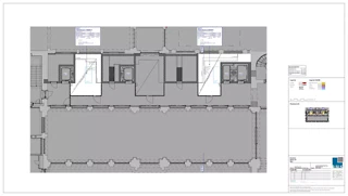
Au 3e étage du bâtiment, environ 300 mètres carrés supplémentaires accueillent les espaces de back-office de la pharmacie. Afin de créer une atmosphère chaleureuse et confortable, le bois de chêne y est également utilisé comme matériau central, tandis que, dans la partie ancienne du bâtiment, les couleurs et les matériaux sont délibérément adaptés à la substance existante protégée.

Qu’est-ce qui caractérise particulièrement cette tâche de construction?
Le principal défi de ce projet résidait dans la préservation de la substance bâtie classée. Afin de ne pas altérer les plafonds et les murs historiques, l’éclairage a été intégré dans les gondoles de vente et distribué par le sol. Cette intervention minimale permet de préserver la monumentalité de la halle dans sa lisibilité spatiale d’origine. Parallèlement, les gondoles créent une délimitation subtile de l’espace, guidant les visiteurs et facilitant leur orientation sans superposer la structure historique.

Quelles réflexions sous-tendent ce projet?
La combinaison harmonieuse entre substance historique, logistique complexe et design contemporain. Le choix des matériaux, la mise en lumière et les formes organiques du mobilier ont été soigneusement équilibrés afin d’offrir une orientation claire et de générer un sentiment de bien-être dans un espace de transit.

Quelle a été votre source d’inspiration?
Les proportions presque sacrales de la halle et la lumière naturelle provenant de la façade sud. Ces éléments ont dicté le concept d’éclairage et la matérialité afin de créer une atmosphère de clarté et d’élégance, qui ne concurrence pas l’existant mais le complète.

Quel rôle le site et l’existant ont-ils joué dans la conception?
L’existant a constitué le principal fil conducteur. Le nouveau concept de couleurs et de matériaux a été spécifiquement adapté à la pierre naturelle claire et intemporelle ainsi qu’aux teintes historiques, complété par des accents chaleureux conférant à l’espace une atmosphère accueillante et un réel confort. Les dimensions généreuses de la halle ont été exploitées comme un élément de conception essentiel, permettant de mettre en scène les nouveaux aménagements comme des objets sculpturaux, libres dans l’espace.

Dans quelle mesure le maître d’ouvrage, le commanditaire ou les futurs usagers ont-ils influencé le projet?
Les exigences d’Amavita en matière de processus, de flux de clients et d’efficacité ont fortement influencé le développement conceptuel et la planification. À partir de ces paramètres fonctionnels, une organisation spatiale intérieure ainsi qu’une composition fine des matériaux et des couleurs ont été élaborées, conciliant la dynamique d’un site très fréquenté avec une qualité de séjour élevée – adaptée aux processus d’une pharmacie de gare.

Comment le bâtiment s’inscrit-il dans la continuité des réalisations de votre bureau?
Le projet prolonge de manière cohérente notre approche sensible du travail sur l’existant. Nous considérons l’architecture intérieure comme une réponse au lieu : plutôt que d’imposer un langage formel propre, nous nous appuyons sur les conditions existantes pour développer une interaction harmonieuse entre le bâti existant et le nouvel usage. Cette approche met en valeur notre capacité à créer, avec clarté et simplicité, une élégance fonctionnelle qui respecte et renforce l’identité du lieu.

Y a-t-il eu des changements d’orientation entre le premier projet et la réalisation finale?
Aucun changement fondamental n’est intervenu par rapport au projet initial. L’idée de conception a pu être développée de manière cohérente, car elle était dès le départ étroitement liée à la structure classée existante.

Au cours du processus de planification, des exigences fonctionnelles et organisationnelles du maître d’ouvrage et des utilisateurs ont été intégrées, tout comme les résultats des échanges avec les ingénieurs spécialisés, les autorités, les services de protection du patrimoine et la propriété. Ces retours n’ont pas modifié le projet, mais l’ont affiné, notamment en ce qui concerne les processus opérationnels, l’organisation spatiale, les détails constructifs et la matérialisation. Le résultat est une solution d’architecture intérieure spécifique au contexte, précise et de grande qualité.

Les tendances actuelles en matière d’énergie ou de construction ont-elles influencé le projet?
Les pharmacies modernes exigent des standards d’hygiène élevés, des infrastructures techniques efficaces et des flux de marchandises rigoureusement organisés. Par ailleurs, Amavita souhaitait adapter le choix des couleurs et des matériaux au site classé, ce qui a nécessité une révision du standard existant du mobilier de vente Amavita.

L’accent a été mis sur des meubles modulaires et adaptables, dotés d’assemblages démontables, d’un haut degré de préfabrication et permettant une intégration aisée du système d’éclairage complexe. Il a également fallu concilier des surfaces durables et faciles d’entretien avec une qualité spatiale élevée. Enfin, l’intégration technique de l’automate de dispensation – aujourd’hui standard dans la conception des pharmacies – a fortement influencé la planification.

Quel produit ou matériau a contribué au succès de votre réalisation?
Le bois de chêne constitue, en contrepoint chaleureux à la pierre historique, le centre atmosphérique du projet. Sa chaleur naturelle et sa teinte ont servi de base et ont été déclinées de manière cohérente sur d’autres matériaux tels que le métal, les panneaux dérivés du bois, la pierre reconstituée ainsi que la palette chromatique. En combinaison avec un concept d’éclairage efficace, cette continuité matérielle crée une expérience d’achat agréable et accueillante dans ce lieu à forte fréquentation.

Le projet deatelier 10punkt3 a été soumis dans le cadre du Swiss Arc Award 2026 et publié par Nina Farhumand.

223269290