Neubau Überbauung Sandgrube

 
9050 Appenzell,
Schweiz

Veröffentlicht am 12. Januar 2026
Lukas Imhof Architektur GmbH

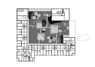
Hauseingangstüre Dachgarten mit Laubengang Vordach über dem Haupteingang für den Detailhandel Totale von Südwesten Wohnbauten mit Anschluss an den Dachgarten Blick entlang der Südfassade Laubengang Treppenhaus im Erdgeschoss Kleinwohnung mit Patio Patio Dachwohnung in einem Eckbau

Projektdaten

Basisdaten

Lage des Objektes
Sandgrube 16, 9050 Appenzell, Schweiz
Projektkategorie
Fertigstellung
09.2024
Links

Gebäudedaten nach SIA 416

Stockwerke
3 bis 5
Anzahl Kellergeschosse
1
Anzahl Wohnungen
33
Grundstücksfläche
9250 m²
Geschossfläche
17'500 m²
Gebäudevolumen
75'000 m³
Parkplätze
220

Beschreibung

Das Gebiet der Sandgrube ist von einer äusserst heterogenen ortsbaulichen Struktur geprägt und befindet sich im Wandel von einer reinen Gewerbezone hin zu einem durchmischten Quartier. Mit dem Neubau, der im Erdgeschoss Detailhandel und in den Obergeschossen Wohnungen sowie Büroräume beherbergt, wurde ein prägnanter städtebaulicher Grundstein gelegt, der als Anker für die weitere Entwicklung des Gebiets dient.

Volumetrisch wirkt der Bau als Konglomerat, das in der Wahrnehmung zwischen einem grossen Gebäude und einer Komposition von Einzelbauten oszilliert. Vier höhere Baukörper markieren die Ecken, lösen sich teils vom Sockel und wachsen teils bündig aus ihm heraus. Gemeinsam mit den eingeschossigen Verbindungsbauten im ersten Obergeschoss bilden sie einen zentralen, gefassten Dachgarten für die Bewohner*innen.

Während in den höheren Eckbauten eher konventionelle Wohnungen zwischen 3,5 und 5,5 Zimmern angeboten werden, zeichnen sich die Wohnungen in den Verbindungsbauten durch eine spezielle Typologie aus: Erschlossen über einen Laubengang, organisieren sich die Wohnungen um einen grosszügigen Innenhof, der als privater Aussenraum dient. Dieser ist teilweise gedeckt und im Inneren des Gebäudes offen zum Himmel. Die Dachöffnung versorgt den tiefen Grundriss mit Tageslicht und schafft zugleich einen intimen, hofartigen Aussenraum für die Bewohner*innen.

Diese Wohnungen sollen im Alter den Umzug aus dem EFH in eine Wohnung erleichtern. Mit dem kleinen Hof, dem Zugang zum gemeinschaftlichen Hofgarten mit der Möglichkeit, Hochbeete zu bepflanzen, dem altersgerechten Bad und nicht zuletzt der «eigenen Haustüre» verfolgt Lukas Imhof Architektur das Ziel, diesen grossen Schritt zu erleichtern. Im Zimmer zur Laube sieht das Büro vielfältige Nutzungen zwischen Nähzimmer, Bastelraum und Büro vor, die möglicherweise sogar zur Laube hin offen sind und den nachbarschaftlichen Kontakt fördern. Und natürlich können die Enkel hier übernachten, wenn sie zu Besuch sind.
Die architektonische Motivik verankert den Bau in Appenzell und am unmittelbaren Ort: die Dachlandschaft, die ortstypische Gliederung der Fassade, die kleinteilige Ausformung der Baukörper.

Die Fassade versteht sich als zeitgenössische Weiterentwicklung der charakteristischen Appenzeller Typologie – eine klare, prägnante Struktur, die den lokalen Ausdruck aufgreift und modern interpretiert. Grundsätzlich ist die typische Appenzeller Fassade gebändert und gerastert. Geschossweise werden diese Fassaden in zwei Bänder aufgeteilt, wobei das untere geschlossen bleibt und das obere mit Fenstern durchsetzt wird. Geschlossene und offene Elemente finden sich abwechselnd und oft scheinbar zufällig nebeneinander. Durch die Gliederung mit Stäben und Simsen weisen diese Fassaden dennoch einen hohen Grad an Ordnung auf und können die unregelmässige Anordnung von Fenstern problemlos integrieren. Die Gliederung führt auch zur typischen Kleinteiligkeit und Feinheit.

Die aktualisierte Fassung dieser Fassadentypologie, entwickelt für das Projekt Sandgrube, übernimmt die wesentlichen Merkmale der Appenzeller Fassaden und passt sie an die spezifische Bauaufgabe und unsere Zeit an. Das im «Original» kassettiert ausgeführte Brüstungsband wird hier als gestülpte Platte interpretiert, deren Schattenwirkung eine Gliederung erzeugt. Das «moderne Appenzellerhaus» wird durch die Dachgestaltung ergänzt, die ebenfalls auf lokale Bautraditionen verweist: Eine Ziegeldeckung und ein hell ausgebildeter Dachrand erinnern an die charakteristischen Dächer Appenzells.

Das Projekt wurde von Lukas Imhof Architektur hochgeladen und von Nina Farhumand publiziert. 

223996719