Transformation Reihenhaus Bachtobelstrasse

 
8045 Zürich,
Schweiz

Veröffentlicht am 19. Januar 2026
RAUMTAKT GmbH
Teilnahme am Swiss Arc Award 2026

Wohnküche Fassade Hauseingangstüre Treppenhaus Küche Wohnküche Küche Stahltreppe Detail Stahltreppe Stahltreppe Detail Bad Obergeschoss Bad Dachgeschoss Dachgeschoss Dachgeschoss

Projektdaten

Basisdaten

Projektkategorie
Gebäudeart
Fertigstellung
02.2025
Links

Gebäudedaten nach SIA 416

Stockwerke
2
Anzahl Kellergeschosse
1
Grundstücksfläche
170 m²
Geschossfläche
240 m²
Nutzfläche
169 m²
Gebäudevolumen
830 m³

Beschreibung

Kontext und Ausgangslage
Die Bachtobelstrasse 26 ist Teil einer Reihenhauszeile im Zürcher Quartier Wiedikon. Das schmale, um 1890 erbaute Reiheneinfamilienhaus steht unweit des Industrieareals Binz, das sich um die Wende zum 20. Jahrhundert gemeinsam mit Arbeiterhäusern entwickelte. Die umliegenden Häuser aus jener Zeit prägen bis heute mit ihren verputzten Fassaden, Fensterläden und Steildächern den Altbaucharme des Viertels.

Die Bauaufgabe
Eine junge Familie initiierte die umfassende Sanierung des in die Jahre gekommenen Hauses. Ziel war es, den Charakter zu bewahren und gleichzeitig modernen Wohnkomfort zu schaffen – ein Spannungsfeld, das sämtliche Planungsentscheide prägte.

Konstruktive Logik und Transformation
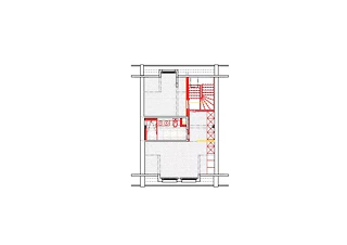
Zunächst wurde die bauliche Substanz gründlich ertüchtigt. Wegen des setzungsempfindlichen Uetliberglehms unter dem Gebäude, das um 24 Zentimeter abgesunken war musste die Fundation mit 19 Mikropfählen und einer neuen Stahlbetonplatte verstärkt werden. Auch die Holzbalkendecken im Innern wurden erneuert und statisch verstärkt. Mit Styrobeton wurden die Böden wieder ins Lot und mit wenig Gewicht auf die Tragfläche gebracht. Eine neue filigrane Stahltreppe verbindet nun alle Geschosse und ersetzt das alte Treppenhaus durch eine leichte offene Konstruktion.

Raumkonzept und Setzung

Die Grundrisse wurden neu organisiert, damit grosszügigere Wohnräume mit direkterer Gartenanbindung entstehen. Im Erdgeschoss öffnen grossflächige Verglasungen den Wohnraum zum Garten und schaffen einen fliessenden Übergang zwischen drinnen und draussen. Zusätzlich wurden neue Nasszellen in die bestehende Bausubstanz eingefügt, um den gestiegenen Ansprüchen an Komfort gerecht zu werden.

Materialisierung und Ausdruck
Das gestalterische Konzept setzt auf Zurückhaltung und Authentizität. Eine ruhige helle Farbwelt und natürliche Materialien dominieren die Innenräume und verleihen dem Haus eine freundliche zeitgemässe Atmosphäre. So wurde unter anderem das Spinparkett über alle Geschosse verlegt dessen diagonale Maserung die schmale Typologie optisch weitet und die Räume neu ordnet. Zugleich wurden historische Details wo immer möglich erhalten oder zeitgemäss neu interpretiert sei es ein originales Profil an der Fassade oder ein traditioneller Beschlag im Innern.

Energetische Ertüchtigung
Äusserlich bleibt das Haus seiner Zeit treu: Die Fassade erhielt einen neuen Wärmedämmverputz mit Anstrich sowie dreifach isolierverglaste Fenster mit integriertem Sonnenschutz. Hinter der Hülle des Altbaus sorgt moderne Haustechnik mit Luft-Wärmepumpe, verbesserter Dämmung und sanierter Dacheindeckung für höhere Energieeffizienz und mehr Wohnkomfort. Somit erfüllt das sanierte Reiheneinfamilienhaus die Anforderungen zeitgemässen Wohnens für die junge Familie, ohne seinen Charme einzubüssen.

Besonderheiten
Die Bauaufgabe an der Bachtobelstrasse sechsundzwanzig artikuliert sich über die tiefgreifende Transformation eines um achtzehnhundertfünfundneunzig errichteten Reiheneinfamilienhauses im Zürcher Quartier Wiedikon. Das Besondere liegt in der Bewältigung einer prekären statischen Ausgangslage. Bedingt durch den setzungsempfindlichen Uetliberglehm war das Gebäude massiv abgesunken, was eine radikale bauliche Ertüchtigung der Substanz erforderte. Der Entwurf fusst auf der Notwendigkeit das historische Erbe der ehemaligen Arbeitersiedlung unweit des Binz Areals zu bewahren und gleichzeitig zeitgemässe Wohnformen zu implementieren. Die Inspiration liegt in der strukturellen Ehrlichkeit. Statt historisierende Dekoration in den Vordergrund zu rücken wurde die bauliche Substanz zunächst im Fundament stabilisiert. Wegen des instabilen Untergrunds musste die Fundation mit neunzehn Mikropfählen und einer neuen Stahlbetonplatte verstärkt werden. Die Rolle des Bestands war für den Entwurf determinierend. Auch die Holzbalkendecken im Innern wurden erneuert und statisch verstärkt. Um die über die Jahrzehnte entstandenen Schieflagen zu korrigieren wurden die Böden mit Styrobeton wieder ins Lot gebracht. Diese Lösung ermöglichte eine präzise Nivellierung bei minimaler Belastung der Tragfläche. Ein zentrales Element der räumlichen Neuordnung ist die neue filigrane Stahltreppe welche alle Geschosse verbindet und das massive alte Treppenhaus durch eine lichtdurchlässige offene Konstruktion ersetzt. Die Grundrisse wurden so organisiert dass grosszügigere Wohnräume mit einer direkteren Gartenanbindung entstehen. Im Erdgeschoss öffnen grossflächige Verglasungen den Wohnraum zum Aussenraum und schaffen einen fliessenden Übergang. Neue Nasszellen wurden präzise in die bestehende Struktur eingefügt um den gestiegenen Komfortansprüchen gerecht zu werden ohne die typologische Klarheit des Altbaus zu verletzen. Äusserlich bleibt das Haus seiner Entstehungszeit treu und wahrt den Altbau Charme des Viertels. Die Fassade erhielt einen neuen Wärmedämmverputz sowie dreifach isolierverglaste Fenster mit integriertem Sonnenschutz. Die energetische Transformation wird durch moderne Haustechnik mit einer Luft Wasser Wärmepumpe sowie einer optimierten Dämmung und sanierten Dacheindeckung vervollständigt. Das Resultat ist eine authentische Weiterbaute welche die Anforderungen an modernes Wohnen erfüllt ohne die historische Identität aufzugeben.  

Realisierung
Dank dieser präzisen Eingriffe erfüllt das sanierte Reihenhaus die Anforderungen an zeitgemässes Wohnen, ohne seinen Charme zu verlieren.

Das Projekt von RAUMTAKT wurde im Rahmen des Swiss Arc Award 2026 eingereicht und von Nina Farhumand publiziert.

215675512