Werk 2

 
9320 Arbon,
Schweiz

Veröffentlicht am 14. April 2026
Schmidlin Architekten GmbH
Teilnahme am Swiss Arc Award 2026

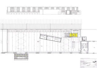
Webmaschinenhalle Treppenturm zwischen Gerüstbauer und Backsteinfassade Das bestehende Gebäude spiegelt sich im neuen Material Textildruck Aufzug mit textiler Wandverkleidung aus der angrenzenden Textildruckerei Ausstellungsraum Servicebereich zwischen Einbau und ehemaliger Montagebank Türgriff der Toilettenanlagen Gewelltes Lochblech aus walzblankem Aluminiumverkleidet den Treppenturm Dachanschluss Hundertfünfzig Meter Sichtbacksteinfassade

Projektdaten

Basisdaten

Lage des Objektes
Webstrasse 2, 9320 Arbon, Schweiz
Projektkategorie
Fertigstellung
09.2026
Links

Gebäudedaten nach SIA 416

Nutzfläche
750 m²

Beschreibung

Die Montagehalle ist eine Stahlrahmenkonstruktion, deren serielle Reihung bauliche Erweiterung ermöglicht. Zur Strasse hin tritt das Gebäude mit einer Backsteinfassade auf: Pilaster und Bogenfenster markieren den Willen zur Repräsentation. In dieser Dualität spiegeln sich die zwei Antriebskräfte eines expandierenden Industriebetriebs: die Offenheit gegenüber wachsenden Produktionskapazitäten auf der einen, das Bedürfnis nach einer Architektur, die unternehmerisches Selbstvertrauen nach aussen trägt, auf der anderen Seite. Mit der Insolvenz von Saurer gegen Ende des 20. Jahrhunderts blieb das Gelände sich selbst überlassen.

Seit 2023 werden gezielte Massnahmen umgesetzt, um das 150 Meter lange denkmalgeschützte Gebäude schrittweise wiederzubeleben. Die erste Bauphase konzentrierte sich auf die grundlegenden Anforderungen für die öffentliche Nutzung: Brandschutzwände, Geländer, Büroräume, ein Notausgang, der in Zusammenarbeit mit dem benachbarten Gerüstbauunternehmen entstand und einen Turm mit Seeblick durch eine kreisrunde Öffnung schuf, die die Formensprache der Backsteinfassade aufgreift, sowie ein Aufzug, dessen Verkleidung gemeinsam mit der Textildruckerei entwickelt wurde, die ihre Werkstatt im angrenzenden Raum betreibt. Ein verputzter Kubus für Video und Bar entstand in Kooperation mit der ersten Ausstellung. Jede Intervention wird durch lokale Zusammenarbeit zu einem architektonischen Element.

Dieser schrittweise Ansatz bricht mit einer Projektlogik, in der alles auf einmal geplant wird. Stattdessen entsteht die architektonische Vision aus der kontinuierlichen Auseinandersetzung mit dem Gebäude und seinem Kontext. Die Architektur übernimmt die Rolle eines Hausmeisters, der einen fortlaufenden Transformationsprozess begleitet. So können sich Architektur und Institution gemeinsam weiterentwickeln und dabei Kohärenz bewahren, während sie sich an veränderte Bedürfnisse und Möglichkeiten anpassen.

Die erste Ausstellung «Der Stoff, aus dem die Gegenwart besteht» im Rahmen des Heimspiels 2024/25 thematisierte Fragen von Material und Ressourcen. Die Industriearchitektur wurde nicht als neutraler Hintergrund, sondern als aktiver Dialogpartner verstanden, der seine eigene Geschichte in den Diskurs einbringt.

Das Projekt von Schmidlin Architekten wurde im Rahmen des Swiss Arc Award 2026 eingereicht und von Nina Farhumand publiziert. 

224306011