Complexe résidentiel Rebgasse

 
4102 Binningen,
Suisse

Publié le 24 mars 2026
Schmid Ziörjen Architektenkollektiv AG
Participation au Swiss Arc Award 2026

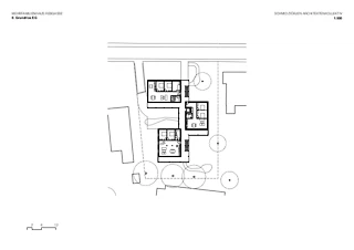
Façade d'entrée Espace d'accès Balcon orienté à l'est Espace d'accès Cuisine-séjour côté sud Pièce à vivre exposée au sud Cuisine exposée au nord Cuisine-séjour exposée à l'est Accès au bâtiment Façade côté jardin Balcon orienté à l'est Zone des balcons et des pergolas Salle de bains exposée au sud Salle de bains exposée au nord

Données du projet

Données de base

Catégorie de projet
Type de bâtiment
Achèvement
01.2026

Données du bâtiment selon SIA 416

Étages
2 étages
Nombre de sous-sols
1 étage
Nombre d'appartements
9
Surface de terrain
1613 m²
Surface de plancher
1430 m²
Surface utile
1150 m²
Volume bâti
4625 m³
Places de parking
7

Description

Contexte et cadre urbanistique
Le complexe résidentiel de la Rebgasse à Binningen (B) a été réalisé dans le cadre d’une reconstruction au sein d’un quartier résidentiel historique caractérisé par une structure de construction à petite échelle. Le quartier se compose principalement de maisons individuelles et de petits immeubles collectifs, nichés au cœur de jardins privés et d’espaces extérieurs verdoyants. Le projet s’inscrit dans la continuité de cette trame urbaine existante. Au lieu d’une densification par une grande forme compacte, le volume de construction est divisé en trois corps de bâtiment de trois étages, disposés en quinconce sur le terrain. Des saillies et des retraits structurent la volumétrie et créent une relation graduelle entre l’espace public de la rue, les espaces extérieurs semi-publics et les espaces de vie privés. Les trois corps de bâtiment sont reliés entre eux par une structure continue de pergolas et de balcons. Cette couche commune relie les volumes dans l’espace, organise les accès et crée une silhouette d’ensemble cohérente malgré l’échelonnement. Entre les corps de bâtiment se créent des espaces intermédiaires perméables qui structurent le complexe, l’éclairent et l’intègrent à la structure verte environnante.

Espace libre
L'aspect extérieur du complexe résulte de l'interaction entre trois volumes géométriques simples et la structure de pergolas et de balcons qui les relie. Disposés en quinconce, ces volumes sont rassemblés en une forme cohérente grâce à cette structure ouverte. Cette structure de pergolas marque profondément l'aspect général du bâtiment. Les éléments porteurs peints en rouge suédois et les poutres apparentes mettent en évidence l'assemblage structurel et distinguent le niveau en saillie des volumes fermés. Des escaliers en acier fins recouverts de blanc et des garde-corps à barreaux, alternant des barres en T et des barres plates, complètent la structure ouverte. Les bâtiments résidentiels se présentent sous la forme de façades ajourées à la structure régulière, revêtues d’un bardage vertical en bois dans une teinte verte désaturée. Au niveau des linteaux, le sens du bardage s’inverse, soulignant ainsi la structure horizontale des étages. Des bandes continues unissent le corps du bâtiment et la structure de la pergola pour former une silhouette d’ensemble harmonieuse. Les fenêtres et appuis en bois et métal rouge, ainsi que les panneaux de balustrade blancs, les volets roulants orientables et les habillages de volets apparents apportent des accents ciblés et s’intègrent dans la palette chromatique globale des façades et de la structure en arcades. Le tout est couronné par un socle massif en béton qui crée une transition sereine et robuste vers le terrain et ancre le bâtiment dans son contexte.

Structure et expression de la façade
L'expression extérieure du complexe résulte de l'interaction entre trois volumes géométriques simples et la structure de pergolas et de balcons qui les relie. Disposés en quinconce, les volumes sont rassemblés en une forme cohérente par cette structure ouverte. Cette structure de pergolas marque profondément l'aspect général du bâtiment. Les éléments porteurs peints en rouge suédois et les poutres laissées à l'état naturel rendent visible l'assemblage structurel et distinguent le niveau en saillie des volumes fermés. Des escaliers en acier fins et revêtus de blanc ainsi que des garde-corps à barreaux, alternant des barres en T et des barres plates, complètent la structure ouverte. Les bâtiments résidentiels se présentent sous la forme de façades ajourées à la structure régulière, revêtues d’un bardage vertical en bois dans une teinte verte désaturée. Au niveau des linteaux, le sens du bardage s’inverse, soulignant ainsi la structure horizontale des étages. Des bandes continues unissent le corps du bâtiment et la structure de la pergola pour former une silhouette d’ensemble harmonieuse. Les fenêtres et appuis de fenêtre en bois et métal rouge, ainsi que les panneaux de balustrade blancs, les volets roulants orientables et les habillages de volets roulants apparents apportent des accents ciblés et s’intègrent dans la palette de couleurs globale des façades et de la structure de la pergola. Le tout est couronné par un socle massif en béton qui crée une transition sereine et robuste vers le terrain et ancre le bâtiment dans son contexte.

Principe d'accessibilité et espaces extérieurs
L'accès au complexe résidentiel s'effectue par une approche progressive depuis l'espace public, en passant par une zone semi-publique, jusqu'à l'espace résidentiel privé. L'axe central continu traverse les trois corps de bâtiment et organise la circulation horizontale sur toute la profondeur du complexe. Conçue comme une structure ouverte en forme de pergola, elle constitue l'épine dorsale spatiale du complexe. Les arcades couvertes aux dimensions généreuses ne servent pas seulement à la circulation, mais constituent également un espace intermédiaire à usage commun. En tant qu’espaces extérieurs protégés des intempéries, elles font le lien entre l’espace public extérieur et l’habitat privé et créent des lieux de rencontre et d’appropriation. La circulation verticale s’effectue par deux escaliers à une volée présentant des relations différentes avec l’espace extérieur. La cage d’escalier située côté rue assure une liaison directe entre tous les étages et le parking souterrain, tandis que l’escalier orienté vers le jardin établit un lien direct avec l’espace extérieur commun. Le système est complété par un ascenseur central qui garantit l’accessibilité sans obstacle à tous les étages.

Aménagement des plans et habitat
Les plans sont clairement organisés et découlent de la logique constructive du bâtiment. Les appartements se caractérisent par des surfaces de circulation réduites ainsi que par des espaces de vie et de repas ouverts. L'offre d'appartements va des 2,5 pièces en attique aux 3,5 à 4,5 pièces aux étages standard, ce qui permet une structure de locataires hétérogène. Les cuisines sont intégrées aux pièces à vivre et constituent, avec la salle à manger, le cœur de l’espace. Des balcons en saillie agrandissent chaque logement en y ajoutant des espaces extérieurs privés et sont directement reliés aux pièces à vivre. Les appartements en attique disposent en outre de terrasses sur le toit végétalisées, dotées de pergolas en acier filigranes qui créent des espaces de détente naturellement ombragés. Le choix des matériaux et des couleurs des appartements s'inscrit dans la logique constructive. Les sols sont en béton dur poncé à l'aspect terrazzo, les murs sont finement enduits. Des meubles encastrés en frêne lasuré de couleur ainsi que des revêtements muraux en céramique complètent la palette de matériaux. Trois univers chromatiques distincts confèrent aux appartements une identité propre. Les locaux communs sont disposés de manière fonctionnelle au sous-sol ; le parking est réduit au strict nécessaire et préserve largement l'espace extérieur de la circulation.

Structure porteuse et construction
Le nouveau bâtiment est conçu comme une construction entièrement en bois reposant sur un socle en béton massif. Une trame structurelle continue détermine à la fois la structure porteuse et l'organisation spatiale. Des poteaux disposés à intervalles réguliers, des poutres principales continues et des solives intermédiaires forment une structure porteuse clairement identifiable. La construction est conçue comme un système assemblé à partir d'éléments individuels, dans lequel la répartition des charges et les nœuds restent identifiables. Dans l'espace de vie, cet ordre est immédiatement perceptible dans l'espace. Les plafonds à poutres apparentes ainsi que les poteaux et les poutres structurent les pièces et confèrent aux appartements un ordre serein et clair. La structure suit cette logique. Les éléments de plafond se composent de poutres apparentes recouvertes de panneaux à trois couches. La structure se poursuit sous la forme d’une construction légère avec un remblai insonorisant et une isolation contre les bruits d’impact ; le sol de support poncé repose dessus. Les murs extérieurs sont constitués d'éléments en bois isolés à la laine minérale, tandis que les murs intérieurs sont des ossatures en bois recouvertes de plaques de plâtre fibrées enduites.

Énergie et durabilité
Le complexe résidentiel est conçu comme un bâtiment économe en énergie et respectueux des ressources. L'approvisionnement en chaleur est assuré par une pompe à chaleur géothermique, qui permet un chauffage efficace et largement exempt de combustibles fossiles. L'installation peut en outre contribuer au refroidissement des bâtiments en été ainsi qu'à la régénération du sol. De plus, une installation photovoltaïque est installée sur les toitures, contribuant à la production d'électricité sur place. Les systèmes techniques du bâtiment sont simples et conçus pour un fonctionnement économique tout au long de leur cycle de vie. La forte proportion d'éléments en bois aux étages supérieurs ainsi que l'utilisation réduite de béton contribuent de manière significative à minimiser l'énergie grise. Les matériaux sont utilisés de manière ciblée et en fonction de leur application respective. La structure porteuse claire et la séparation des systèmes de construction permettent une utilisation à long terme et une grande adaptabilité des appartements. Un réservoir souterrain d'eaux grises complète le concept et permet d'utiliser l'eau de pluie pour l'arrosage du jardin.

Au cœur du projet se trouve une rangée continue de pergolas et de balcons, qui sert de principe spatial fédérateur. Elle organise non seulement les circulations, mais crée également un espace intermédiaire à usage commun qui favorise les rencontres et contribue à forger l'identité du lieu. Issue d'une logique constructive, elle rend immédiatement lisible la structure en bois, précisément articulée, dans son ordre tectonique. 

Le projet de Schmid Ziörjen Architektenkollektiv a été soumis dans le cadre du Swiss Arc Award 2026 et publié par Nina Farhumand. 

220981303