Wohnüberbauung Rebgasse

 
4102 Binningen,
Schweiz

Veröffentlicht am 24. März 2026
Schmid Ziörjen Architektenkollektiv AG
Teilnahme am Swiss Arc Award 2026

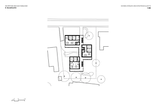
Eingangsfassade Erschliessungsraum Balkon mit Ostausrichtung Erschliessungsraum Wohnküche mit Südausrichtung Wohnraum mit Südausrichtung Küche mit Nordausrichtung Wohnküche mit Ostaurichtung Gebäudezugang Gartenfassade Balkon mit Ostausrichtung Balkon- und Laubengangzone Badezimmer mit Südausrichtung Badezimmer mit Nordausrichtung

Projektdaten

Basisdaten

Projektkategorie
Fertigstellung
01.2026
Links

Gebäudedaten nach SIA 416

Stockwerke
2
Anzahl Kellergeschosse
1
Anzahl Wohnungen
9
Grundstücksfläche
1613 m²
Geschossfläche
1430 m²
Nutzfläche
1150 m²
Gebäudevolumen
4625 m³
Parkplätze
7

Beschreibung

Kontext und städtebauliche Setzung
Die Wohnüberbauung an der Rebgasse in Binningen, Basel-Landschaft, entstand als Ersatzneubau innerhalb eines gewachsenen Wohnquartiers mit kleinteiliger Bebauungsstruktur. Das Quartier ist geprägt durch Einfamilienhäuser und kleinere Mehrfamilienhäuser, eingebettet in private Gärten und durchgrünte Aussenräume. Der Entwurf versteht sich als städtebauliche Weiterentwicklung dieser bestehenden Körnung. Anstelle einer Verdichtung über eine kompakte Grossform wird das Bauvolumen in drei dreigeschossige Baukörper gegliedert, die versetzt zueinander auf dem Grundstück angeordnet sind. Vor- und Rücksprünge strukturieren die Volumetrie und schaffen eine abgestufte Beziehung zwischen öffentlichem Strassenraum, halböffentlichen Aussenräumen und privaten Wohnbereichen. Die drei Baukörper werden über eine durchgehende Laubengang- und Balkonstruktur miteinander verbunden. Diese gemeinsame Schicht verknüpft die Volumen räumlich, organisiert die Erschliessung und erzeugt trotz der Staffelung eine kohärente Gesamtfigur. Zwischen den Baukörpern entstehen durchlässige Zwischenräume, die die Anlage gliedern, belichten und mit der umgebenden Grünstruktur verzahnen.

Freiraum
Bereich subtraktiv aus dem durchgrünten Grundstück freigestellt wird. Ziel war es, den Charakter der gewachsenen Umgebung aufzunehmen sowie die vorhandene Bepflanzung, wo möglich, zu erhalten und weiterzuführen. Die südlich an das Schulhaus angrenzende Wildgehölzhecke mit altem Baumbestand bleibt als prägendes Element erhalten und wird durch neue Wildhecken und artenreiche Wildstaudensäume ergänzt. Die Anlage versteht sich als zusammenhängender Gartenraum mit fliessenden Übergängen zwischen halböffentlichen und gemeinschaftlich genutzten Bereichen. Locker gesetzte Strauchgehölze, hochstämmige Bäume einheimischer Arten sowie punktuelle Aufenthaltsorte strukturieren den Freiraum und erzeugen im jahreszeitlichen Wandel differenzierte Stimmungen. Den Auftakt bildet ein grosszügiger Vorgarten im Übergang zur Rebgasse. Im Inneren spannt sich ein durchgrünter Gartenraum auf, ergänzt durch Aufenthaltsbereiche und einen naturnah gestalteten Spielbereich. Das Motiv eines «Waldtierrennens» mit Hase, Wildschwein und Dachs greift die landschaftliche Atmosphäre auf und übersetzt sie in eine kindgerechte Aneignung des Ortes. Den südlichen Abschluss bildet ein gemeinschaftlich genutzter Garten mit gepflästertem Sitzplatz. Natursteinmauern staffeln das Terrain, schaffen unterschiedliche Ebenen und bieten als Trockenmauern Lebensräume für Kleintiere und Insekten. Den südlichen Abschluss bildet ein gemeinschaftlich genutzter Garten mit gepflästertem Sitzplatz. Natursteinmauern staffeln das Terrain, schaffen unterschiedliche Ebenen und bieten als Trockenmauern Lebensräume für Kleintiere und Insekten.

Fassadengliederung und Ausdruck
Der äussere Ausdruck der Überbauung entsteht aus dem Zusammenspiel von drei einfachen geometrischen Baukörpern und der sie verbindenden Laubengang- und Balkonstruktur. Versetzt angeordnet, werden die Volumen durch die offen ausgebildete Struktur zu einer zusammenhängenden Figur gefasst. Diese Laubengangstruktur prägt die Gesamterscheinung wesentlich. In schwedenroter Mineralfarbe gefasste Tragelemente und naturbelassene Balkenlagen machen die konstruktive Fügung sichtbar und differenzieren die vorgelagerte Ebene gegenüber den geschlossenen Baukörpern. Feingliedrige, weiss beschichtete Stahltreppen und Stabgeländer mit einem Wechselspiel aus T- und Flachstahlstäben komplettieren die offene Struktur. Die Wohngebäude erscheinen als regelmässig gegliederte Lochfassaden mit vertikaler Holzschalung in einem entsättigten Grünton. Im Bereich der Deckenstirnen wechselt die Schalungsrichtung und betont die horizontale Gliederung der Geschosse. Durchgehende Bänder fassen Baukörper und Laubengangstruktur zu einer ruhigen Gesamtfigur zusammen. Rote Holz-Metallfenster und Fensterbänke sowie weisse Brüstungsfelder, ausstellbare Rollläden und sichtbare Rollladenverblendungen setzen gezielte Akzente und sind in das übergeordnete Farbgefüge von Fassaden und Laubengangstruktur eingebunden. Den Abschluss bildet der massive Betonsockel, der einen ruhigen, robusten Übergang zum Terrain formuliert und das Gebäude im Kontext verankert.

Erschliessungsprinzip und Aussenräume
Der Zugang zur Wohnüberbauung erfolgt als stufenweises Annähern vom öffentlichen Raum über eine halböffentliche Zone bis in den privaten Wohnbereich. Die zentral gelegene, durchgehende Achse führt durch alle drei Baukörper und organisiert die horizontale Erschliessung über die gesamte Gebäudetiefe. Als offene Laubengangstruktur ausgebildet, bildet sie das räumliche Rückgrat der Überbauung. Die grosszügig dimensionierten, überdachten Laubengänge dienen nicht nur der Erschliessung, sondern auch als gemeinschaftlich nutzbarer Zwischenraum. Als wettergeschützte Aussenräume vermitteln sie zwischen öffentlichem Aussenraum und privatem Wohnen und schaffen Orte der Begegnung und Aneignung. Die vertikale Erschliessung erfolgt über zwei einläufige Treppenanlagen mit unterschiedlichen Bezügen zum Aussenraum. Das strassenseitig angeordnete Treppenhaus stellt die direkte Verbindung über alle Geschosse bis in die Einstellhalle her, während die zum Garten orientierte Treppe einen unmittelbaren Bezug zum gemeinschaftlichen Aussenraum herstellt. Ergänzt wird das System durch einen zentral angeordneten Aufzug, der die barrierefreie Erreichbarkeit aller Geschosse sicherstellt.

Grundrissorganisation und Wohnen
Die Grundrisse sind klar organisiert und aus der konstruktiven Logik des Gebäudes entwickelt. Reduzierte Erschliessungsflächen sowie offen organisierte Wohn- und Essbereiche prägen die Wohnungen. Der Wohnungsmix reicht von 2.5-Zimmer-Wohnungen im Attikageschoss über 3.5- bis 4.5-Zimmer-Wohnungen in den Regelgeschossen und ermöglicht eine heterogene Mieterstruktur. Die Küchen sind in die Wohnräume integriert und bilden zusammen mit dem Essbereich deren räumlichen Mittelpunkt. Vorgelagerte Balkone erweitern alle Einheiten um private Aussenräume und sind direkt mit den Wohnbereichen verbunden. Die Attikawohnungen verfügen zusätzlich über begrünte Dachterrassen mit filigranen Stahlpergolen, die natürlich beschattete Aufenthaltsbereiche schaffen. Die materielle und farbliche Ausgestaltung der Wohnungen knüpft an die konstruktive Logik an. Die Böden sind als geschliffener Hartbeton mit Terrazzocharakter ausgeführt, die Wände fein verputzt. Einbaumöbel aus farbig lasiertem Eschenholz sowie keramische Wandbeläge ergänzen die Materialpalette. Drei unterschiedliche Farbwelten verleihen den Wohnungen eine eigenständige Identität. Gemeinschaftlich genutzte Nebenräume sind funktional im Untergeschoss angeordnet; die Einstellhalle ist auf das notwendige Mass reduziert und hält den Aussenraum weitgehend frei von Verkehr.

Tragwerk und Konstruktion
Der Neubau ist als konsequenter Holzbau auf einem massiven Betonsockel konzipiert. Ein durchgängiges konstruktives Raster bestimmt Tragwerk und räumliche Organisation gleichermassen. Regelmässig angeordnete Stützen, durchlaufende Hauptträger und dazwischenliegende Balkenlagen bilden ein klar ablesbares Tragwerk. Die Konstruktion ist als gefügtes System aus Einzelbauteilen ausgebildet, in dem Lastabtrag und Knotenpunkte nachvollziehbar bleiben. Im Wohnbereich wird diese Ordnung unmittelbar räumlich erfahrbar. Sichtbare Holzbalkendecken sowie Stützen und Träger strukturieren die Räume und verleihen den Wohnungen eine ruhige, klare Ordnung. Der konstruktive Aufbau folgt dieser Logik. Die Deckenelemente bestehen aus sichtbaren Holzbalkenlagen mit darüberliegenden Dreischichtplatten. Der weitere Aufbau erfolgt als leichte Konstruktion mit schalldämmender Schüttung und Trittschalldämmung; darauf liegt der geschliffene Unterlagsboden. Die Aussenwände sind als gedämmte Holzelemente mit Mineralwolle ausgebildet, die Innenwände als Holzständerkonstruktionen mit verputzten Gipsfaserplatten.

Energie und Nachhaltigkeit
Die Wohnüberbauung ist als energieeffizientes und ressourcenschonendes Gebäude konzipiert. Die Wärmeversorgung erfolgt über eine Erdsonden-Wärmepumpe, die eine effiziente und weitgehend fossilfreie Beheizung ermöglicht. Die Anlage kann zudem zur sommerlichen Kühlung der Gebäude sowie zur Regeneration des Erdreichs beitragen. Ergänzend ist auf den Dachflächen eine Photovoltaikanlage installiert, die zur Eigenstromproduktion beiträgt. Die haustechnischen Systeme sind einfach gehalten und auf einen sparsamen Betrieb über den gesamten Lebenszyklus ausgelegt. Der hohe Anteil an Holzbauteilen in den Obergeschossen sowie der reduzierte Einsatz von Beton tragen wesentlich zur Minimierung der grauen Energie bei. Die Materialien werden gezielt und ihrem jeweiligen Einsatz entsprechend verwendet. Die klare Tragwerksstruktur und die Trennung der Bauteilsysteme ermöglichen eine langfristige Nutzbarkeit und Anpassungsfähigkeit der Wohnungen. Ein unterirdischer Grauwassertank ergänzt das Konzept und erlaubt die Nutzung von Regenwasser zur Bewässerung des Gartens.

Im Zentrum des Entwurfs steht eine durchgehende Laubengang- und Balkonschicht als verbindendes räumliches Prinzip. Sie organisiert nicht nur die Erschliessung, sondern etabliert einen gemeinschaftlich nutzbaren Zwischenraum, der Begegnung ermöglicht und adressbildend wirkt. Aus der konstruktiven Logik heraus entwickelt, macht sie den präzise strukturierten Holzbau in seiner tektonischen Ordnung unmittelbar lesbar.

Das Projekt von Schmid Ziörjen Architektenkollektiv wurde im Rahmen des Swiss Arc Award 2026 eingereicht und von Nina Farhumand publiziert. 

220974301