Évolution d’un immeuble collectif au Stauffacher

 
8004 Zürich,
Suisse

Publié le 19 janvier 2026
RAUMTAKT GmbH

Vue extérieure Cuisine et salon Cuisine  Salle de bains Cage d'escalier

Données du projet

Données de base

Situation de l'objet
Bäckerstrasse 10, 8004 Zürich, Suisse
Catégorie de projet
Type de bâtiment
Achèvement
07.2024

Description

Situation initiale
Situé au cœur d'un quartier historique à proximité immédiate d'espaces de détente, cet immeuble résidentiel datant de 1894 allie densité urbaine et qualité de vie élevée. Bien qu'il ne soit pas classé monument historique, ce bâtiment de cinq étages à la façade historiciste contribue de manière significative au caractère de la rue.

Idée de conception
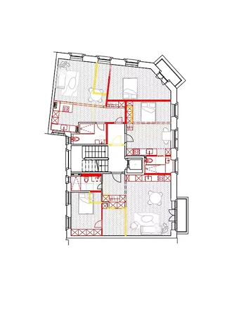
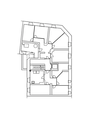
Une étude de faisabilité examine le développement spatial et fonctionnel du bâtiment. L'objectif est de moderniser soigneusement les appartements existants et de procéder à une densification modérée en ajoutant des unités d'habitation compactes supplémentaires à chaque étage. Les études de plans d'étage misent sur des séquences spatiales claires et structurées et exploitent efficacement les surfaces existantes.

Au cœur du concept se trouve une palette de couleurs et de matériaux sobre et harmonieuse. Le parquet en chêne huilé à motif chevrons, les dalles en céramique et les couleurs assorties créent une atmosphère contemporaine qui allie tradition et modernité. La conception réinterprète avec respect la structure existante de la façade, par exemple par des adaptations ciblées au niveau des fenêtres et des balustrades, renforçant ainsi l'identité architecturale du bâtiment.

Le projet a été téléchargé par RAUMTAKT et publié par Nina Farhumand.

206434607