Extension du complexe scolaire Muoshof à Malters

 
6102 Malters,
Suisse

Publié le 31 mars 2026
Bürgi Burkhard von Euw GmbH
Participation au Swiss Arc Award 2026

Données du projet

Données de base

Situation de l'objet
Muoshofstrasse 26, 6102 Malters, Suisse
Catégorie de projet
Achèvement
07.2025

Données du bâtiment selon SIA 416

Étages
de 3 à 5 étages
Nombre de sous-sols
1 étage
Surface de plancher
4388 m²
Volume bâti
19'660 m³
Coûts de construction (BKP 2)
20,9 mio. CHF
Nombre d'élèves
385

Description

L’ensemble scolaire est entouré d’un quartier composé de bâtiments résidentiels de petite échelle. À l’est, il s’ouvre sur une vaste prairie dégagée. Le site scolaire est bordé sur trois côtés par la voie ferrée et des ruisseaux. Le volume est implanté de manière à cadrer la cour de récréation existante en son centre, tout en permettant la création, au nord, d’un parc scolaire à haute valeur écologique et, au sud, le maintien d’un espace extérieur attractif pour la pause de midi. L’accès principal au site scolaire s’effectue depuis la Muoshofstrasse à l’ouest et mène directement à la cour de récréation. Toutes les entrées des bâtiments s’orientent vers cet espace central, déjà structuré aujourd’hui par les toitures des passerelles existantes. Le nouveau bâtiment est également desservi de cette manière. L’espace extérieur entre les entrées du nouveau bâtiment est aménagé avec un revêtement perméable en gravier et des arbres, contribuant en été à la création d’un microclimat frais.

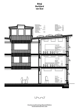
Avec sa toiture en papillon, le nouveau bâtiment établit un lien avec les constructions existantes de l’ensemble scolaire. Deux patios offrent des relations visuelles entre les niveaux. Leurs émergences en toiture structurent le toit et apparaissent notamment la nuit comme des lanternes posées, visibles de loin. Les deux atriums présentent des hauteurs différentes: le premier, au nord, s’élève sur trois niveaux, tandis que le second, au sud, s’achève au-dessus de l’aula. Les patios sont conçus selon un principe de «maison dans la maison» (une claire-voie en bois ouverte permet un apport suffisant de lumière) et offrent des relations visuelles traversantes entre les étages. Directement attenants et situés aux extrémités de la zone centrale, les espaces d’apprentissage complètent les salles de classe. Des plafonds ornementaux entre les poutres apparentes valorisent les espaces représentatifs. Le bâtiment est réalisé en grande partie en bois provenant de la propre forêt de Malters. Les noyaux ainsi que le sous-sol, maintenu aussi compact que possible, sont réalisés en béton recyclé. Une installation photovoltaïque de grande surface est installée en toiture. Le bâtiment a obtenu la certification Minergie-P-Eco.

Le groupe scolaire Muoshof constitue notre premier projet
Le bâtiment est fortement ancré dans le contexte de Malters, où, dès le départ, le projet a été conçu avec du bois issu de la forêt communale – en l’occurrence la forêt de Buggeringen, visible à proximité. Dès l’annonce téléphonique du gain du concours, cette possibilité a été évoquée avec le syndic. Pour la mise en œuvre, les processus habituels d’approvisionnement en bois ont dû être adaptés. La commune a pris un risque important en acquérant le bois, pour des raisons de calendrier, avant même la votation populaire, auprès de l’organisation forestière régionale. Pour la réalisation, le matériau a été mis à disposition des charpentiers sous forme de bois rond abattu. En raison de la hausse des coûts de construction liée à la pandémie de coronavirus, il était essentiel de maîtriser les coûts et de construire avec des moyens simples. Le bâtiment repose sur une structure de base rationnelle et durable. La structure porteuse en bois reste visible en tant que « gros œuvre noble », la trame des poutres marquant l’atmosphère. En se concentrant sur l’essentiel, des économies substantielles ont pu être réalisées dans un esprit de suffisance (écologique et économique), sans que la qualité spatiale n’en pâtisse. Les élèves ont en outre pu participer à la conception chromatique dans le cadre d’un processus participatif. Plusieurs ateliers ont permis de développer des palettes colorées pour les différents espaces. La conception des couleurs a ainsi été entièrement revue par rapport au projet de concours. 

Le projet de Bürgi Burkhard von Euw a été soumis dans le cadre du Swiss Arc Award 2026 et publié par Nina Farhumand.

222284645