Erweiterung Schulanlage Muoshof Malters

 
6102 Malters,
Schweiz

Veröffentlicht am 31. März 2026
Bürgi Burkhard von Euw GmbH
Teilnahme am Swiss Arc Award 2026

Ansicht von Pausenhof Fassadenecke Stirnfassade Foyer Mittagstisch Saal / Mittagstisch Lehrpersonenzimmer Klassenzimmer 1.Obergeschoss Blick von Treppenhaus in Lichthof Lichthof mit Dachaufbau Lichthof Süd Lichthof Nord von unten Klassenzimmer Dachgeschoss Hauswirtschafsküche Gruppenraum Dachgeschoss

Projektdaten

Basisdaten

Lage des Objektes
Muoshofstrasse 26, 6102 Malters, Schweiz
Projektkategorie
Fertigstellung
07.2025

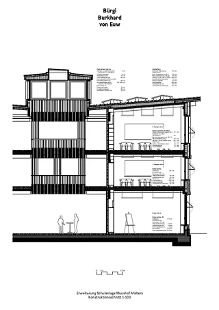
Gebäudedaten nach SIA 416

Stockwerke
3 bis 5
Anzahl Kellergeschosse
1
Geschossfläche
4388 m²
Gebäudevolumen
19'660 m³
Gebäudekosten (BKP 2)
20,9 Mio. CHF
Anzahl Schüler
385

Beschreibung

Die Schulanlage ist von einem Quartier mit kleinmassstäblichen Wohngebäuden umgeben. Gegen Osten befindet sich eine freie, weite Wiesenfläche. Dreiseitig ist das Schulareal durch die Bahnlinie und Bäche umgeben. Das Volumen ist so positioniert, dass im Zentrum der bestehende Pausenhof gefasst wird, gleichzeitig im Norden ein ökologisch wertvoller Schulpark entsteht und im Süden ein attraktiver Aussenraum für den Mittagstisch verbleibt. Der Hauptzugang zum Schulareal erfolgt von der Muoshofstrasse im Westen her und führt direkt in den Pausenhof. Sämtliche Gebäudeeingänge orientieren sich zu diesem zentralen Platz, der bereits heute durch die bestehenden Passerellendächer gegliedert ist. Auch der Neubau ist auf diese Weise erschlossen. Der Aussenraum zwischen den Eingängen des Neubaus ist mit einem sickerfähigen Kiesbelag und Bäumen versehen und soll im Sommer zu einem kühlen Mikroklima beitragen. 

Der Neubau nimmt über sein Schmetterlingsdach Bezug auf die Bestandesbauten der Schulanlage. Zwei Innenhöfe bieten geschossübergreifende Blickbeziehungen. Deren Dachaufbauten gliedern das Dach. Sie wirken insbesondere nachts als aufgesetzte Laternen und sind bereits von weither erkennbar. Die beiden Atrien sind unterschiedlich hoch ausgebildet. Das nördliche ist dreigeschossig, das südliche endet über der Aula. Die Innenhöfe sind als Haus-im-Haus gestaltet (durch eine offene Holzlattung tritt genügend Licht ein) und bieten geschossübergreifende Blickbeziehungen. Direkt daran angeordnet und an den Enden der Mittelzone gelegen, befinden sich die Lernlandschaften als Ergänzung zu den Klassenzimmern. Ornamentdecken zwischen der sichtbaren Balkenlage werten die repräsentativen Räume auf. Das Gebäude ist zum grössten Teil mit Holz aus dem eigenen Waldgebiet von Malters erstellt. Die Kerne und das möglichst klein gehaltene Untergeschoss sind in Recyclingbeton realisiert. Auf dem Dach ist eine grossflächige PV-Anlage installiert. Es erfolgte eine Zertifizierung nach Minergie-P-Eco.

Beim Schulhaus Muoshof handelt es sich um unseren Erstling 
Der Bau ist stark im Ort Malters verankert, in dem von Beginn weg mit Holz aus dem eigenen Waldgebiet – aus dem in Sichtweite liegenden Buggeringer Wald – geplant wurde. Bereits bei der telefonischen Orientierung zum Wettbewerbsgewinn hat man mit dem Gemeindeammann über diese Möglichkeit gesprochen. Für die spätere Umsetzung mussten die üblichen Prozesse der Holzlieferung angepasst werden. Die Gemeinde nahm ein grosses Risiko auf sich und erwarb das Holz aus terminlichen Gründen bereits vor der Volksabstimmung von der regionalen Waldorganisation. Für die Ausführung stellte man den Baustoff als gefälltes Rundholz den Holzbauern zur Verfügung. Aufgrund der vorherrschenden Bauteuerung rund um die Coronapandemie war es elementar, die Kosten tief zu halten und mit einfachen Mitteln zu bauen. Das Gebäude besteht aus einer rationalen und langlebigen Grundstruktur. Das Tragwerk in Holz bleibt als «Edelrohbau» sichtbar, die Balkenlage prägt die Stimmung. Durch die Konzentration aufs Wesentlichste konnten deutliche Einsparungen im Sinne der Suffizienz (ökologisch und ökonomisch) erreicht werden, ohne dass die atmosphärische Dichte verloren ging. Die Schüler*innen konnten ausserdem in einem partizipativen Verfahren an der Farbgestaltung mitwirken. In mehreren Workshops entstanden bunte Farbfächer für die unterschiedlichen Räume. Die Farbgestaltung hat sich dadurch gegenüber dem Wettbewerbsprojekt komplett geändert. 

Das Projekt von Bürgi Burkhard von Euw wurde im Rahmen des Swiss Arc Award 2026 eingereicht und von Nina Farhumand publiziert.

222280712