Lindenhof Areal Wetzikon

1 von 592

 
8623 Wetzikon,
Suisse

Publié le 21 avril 2026
BGA Budelmann Gernet Architekten AG
Participation au Swiss Arc Award 2026

Données du projet

Données de base

Situation de l'objet
Hinwilerstrasse 4, 8623 Wetzikon, Suisse
Catégorie de projet
Type de bâtiment
Achèvement
09.2024

Données du bâtiment selon SIA 416

Étages
de 3 à 5 étages
Nombre de sous-sols
1 étage
Nombre d'appartements
73
Surface de terrain
9547 m²
Surface de plancher
18'280 m²
Surface utile
7534 m²
Volume bâti
62'460 m³
Coûts de construction (BKP 2)
46,0 mio. CHF
Places de parking
95
Nombre de lits
42

Description

Le programme
À Wetzikon, dans le quartier de Kempen, 73 appartements et une maison de retraite ont été construits dans sept immeubles collectifs. Quatre de ces immeubles sont conçus pour accueillir plusieurs générations, c'est-à-dire qu'ils comprennent des appartements familiaux et des logements pour seniors plus petits. Trois immeubles abritent des logements pour seniors spécialement adaptés aux besoins des personnes âgées. Au rez-de-chaussée se trouvent une salle de fitness, un kiosque, un salon de coiffure, une salle commune, le service d’aide à la vie quotidienne et des locaux à vélos. À cela s’ajoutent une maison de retraite du groupe Oase comprenant trois unités de soins et trois studios de soins, ainsi qu’au rez-de-chaussée un restaurant avec terrasse extérieure, également accessible au public. L’une des unités est spécialisée dans la prise en charge des personnes atteintes de démence et dispose d’un jardin dédié à cet effet.

L’urbanisme
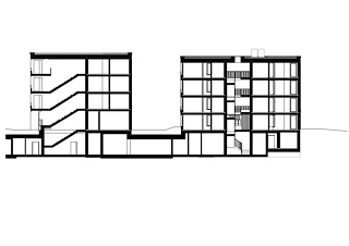
Les immeubles d’habitation se distinguent par leur volumétrie, leur nombre d’étages et leur orientation. Ils se situent le long de la Hinwilerstrasse ainsi qu’au cœur du quartier, en retrait. Deux bâtiments résidentiels et l’EMS s’alignent sur la rue et définissent l’espace public. En arrière-plan, les autres constructions sont disposées librement sur le site, générant entre elles des espaces urbains variés. Des places arborées et des venelles relient les bâtiments et leurs entrées, tandis que les cheminements s’ouvrent vers les parcelles voisines. L’ensemble forme une composition urbaine forte et autonome.

Une place périphérique non clôturée, des traversées piétonnes et la perméabilité pour le trafic motorisé intègrent le quartier environnant. Les commerces en rez-de-chaussée sont accessibles à l’ensemble du public. Entre les bâtiments, jeux d’eau, aire de jeux et terrain de pétanque favorisent les rencontres intergénérationnelles. De petits murs en béton damé, également utilisables comme assises, délimitent les places et les cheminements par rapport aux espaces verts.

Le langage architectural
Les façades sont principalement revêtues de plaquettes de clinker dans différentes nuances de gris, un matériau qui évoque les anciens bâtiments industriels et artisanaux. Cette matérialité affirmée unit les volumes variés, mais apparentés, des bâtiments. Les cages d’escalier ouvertes apparaissent comme des bandes claires en béton intégrées aux façades.

Le clinker, le béton apparent et le béton damé marquent l’ensemble et lui confèrent une expression calme, sobre, précise dans le détail, ainsi qu’une atmosphère poétique. Le clinker est mis en œuvre de manière ludique: les surfaces de façade sont appareillées en pose irrégulière, tandis que les façades de rez-de-chaussée, parfois surhaussées, sont soulignées par des assises saillantes alternées afin de renforcer leur caractère de socle. Des assises en saillie accentuent également les transitions entre les étages et la terminaison en toiture.

Deux teintes de briques et de joints ont été choisies: pour les maisons A à F, des plaquettes gris clair avec des joints plus clairs; pour l’EMS, des plaquettes anthracite avec des joints plus foncés. Ce choix distingue deux typologies de bâtiments sur le site – logements et EMS – tout en affirmant leur appartenance à un même ensemble.

Label
Habitat adapté aux personnes âgées, label LEA niveau Argent et Platine.

Équipe de projet
Les maîtres d’ouvrage sont Oase Holding, en tant que locataire générale, et Swiss Life, en tant que propriétaire. La structure a été conçue par Adali Engineering. La planification chauffage, ventilation et sanitaire a été assurée par HHM et Hunziker Partner, tandis que Wyder Elektroplanung a pris en charge la planification électrique. La physique du bâtiment et l’acoustique relèvent de Buri Bauphysik & Akustik, la protection incendie de HHM. Le concept de mobilité a été développé par Porta, l’architecture du paysage par SKK. L’équipe a été complétée par Zimraum pour la sociologie et Yellow Z pour l’urbanisme.

Le projet de BGA Budelmann Gernet Architekten a été soumis dans le cadre du Swiss Arc Award 2026 et publié par Nina Farhumand.

219375091