Rénovation et transformation d'une ferme

17 von 115

 
Suisse

Publié le 15 avril 2026
Castor Huser Architekten AG
Participation au Swiss Arc Award 2026

Données du projet

Données de base

Catégorie de projet
Type de bâtiment
Achèvement
09.2024

Données du bâtiment selon SIA 416

Étages
de 3 à 5 étages
Nombre de sous-sols
1 étage
Nombre d'appartements
2
Places de parking
3

Description

La ferme du Seetal, construite en 1769 dans le style baroque tardif, est protégée au niveau communal en tant qu’édifice patrimonial situé en zone agricole. En tant que bâtiment rural polyvalent comprenant une grange attenante et deux greniers sur la même parcelle, elle compte parmi les témoignages remarquables de l’architecture rurale argovienne, avec ses plafonds à poutres moulurées, ses lambris à panneaux et son poêle en faïence vert.

La rénovation du début des années 1990 avait traité avec soin la partie habitation, mais avait introduit dans l’ancienne partie économique des interventions qui ne correspondaient plus aux exigences actuelles: une cage d’escalier à demi-niveaux, une cuisine fermée sans relation avec la salle à manger située dans le Tenn, une isolation intérieure problématique du point de vue de la physique du bâtiment ainsi qu’un chauffage au sol sous-dimensionné. Le projet visait à corriger ces transformations et à redonner au bâtiment une cohérence spatiale et constructive, sans porter atteinte à son statut de protection ni à son inscription dans le site.

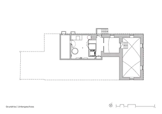
L’existant lui-même a défini le cadre de l’intervention. La partie habitation est restée extérieurement presque inchangée. Au nord comme au sud, trois nouvelles lucarnes rampantes ont remplacé deux plus petites, harmonisant ainsi la symétrie de la façade et améliorant l’éclairage des combles. Dans la partie grange, la façade a été ouverte au niveau de la cuisine grâce à de nouveaux vitrages placés derrière des lamelles diagonales en bois. L’encadrement historique de la grande porte du Tenn a été reconstitué et équipé de portes vitrées en bois placées à l’intérieur, dont la typologie s’inspire des anciens battants en bois. Un portail pliant en avant-plan, revêtu d’un bardage diagonal, réduit visuellement la part du vitrage et assure la transition entre l’ancienne et la nouvelle strate. Sur le pignon ouest, un encadrement de fenêtre existant a été prolongé vers le bas et transformé en porte-fenêtre afin de libérer la vue sur l’étang.

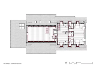
À l’intérieur, les différentes parties du bâtiment ont été reliées à chaque niveau. Une nouvelle ouverture pratiquée dans le mur existant en moellons permet d’accéder à l’ancienne partie économique depuis le vestibule du deuxième étage. La dépose de la structure des faux entraits rend à nouveau perceptible l’impressionnant volume sous toiture de la grange. La cage d’escalier a été unifiée du rez-de-chaussée jusqu’aux combles et dotée d’un nouvel escalier en acier noir avec marches en merisier. La cuisine autrefois fermée s’ouvre désormais sur l’espace repas du Tenn. Les sols en merisier massif avec frises en noyer dans les pièces de séjour, ainsi qu’en grès dur de Guntliweid dans la cuisine, les salles de bains et l’espace bien-être, créent une matérialité continue. Les nouvelles portes reprennent, dans une réinterprétation constructive, la matérialité des anciennes portes de service en noyer. Les surfaces enduites ont reçu un crépi de chaux hydraulique teinté avec des pigments naturels, laissé sans couche de peinture. Tous les éléments historiques de valeur — poêles en faïence, sols en carreaux de terre cuite, armoires intégrées, lambris muraux et portes — ont été intégralement conservés et ont simplement bénéficié d’un rafraîchissement de leurs surfaces.

L’isolation intérieure en EPS des murs extérieurs a été entièrement supprimée et remplacée par un enduit isolant perspirant. À cette occasion, des plafonds à poutres apparentes conservés sous de faux plafonds en plâtre plus récents ont été mis au jour, puis restaurés. Le chauffage au sol sous-dimensionné a été remplacé par un système sec en bois massif de hêtre. La sonde géothermique s’étant également révélée insuffisante, un poêle à bûches complète désormais l’approvisionnement en chaleur. Celui-ci remplace la cheminée existante et est habillé de pierre calcaire coquillière de Mägenwil, issue de la région.

Sur le plan constructif, le projet s'est inspiré d'une approche circulaire. Les matériaux ont été utilisés et assemblés de manière à pouvoir être triés par type et réutilisés. Les assemblages ont été réalisés, dans la mesure du possible, par des moyens mécaniques et sans colle. Les dalles de pierre naturelle de grand format de la cuisine et du salon ont été posées sans fixation, et le parquet massif n’a été fixé que mécaniquement. L’isolation a été réalisée, là où cela était justifiable d’un point de vue constructif et de la préservation du patrimoine, avec des matériaux recyclables tels que le verre cellulaire, la cellulose et l’enduit isolant.

L'intervention la plus marquante sur le plan spatial est l'espace bien-être aménagé dans les combles de l'ancienne grange. La charpente apparente et la baignoire en bois, élément sculptural sous les vieilles poutres, montrent clairement que le contraste entre la structure historique et l'usage contemporain n'est pas effacé, mais délibérément préservé.

Le projet de Castor Huser Architekten a été soumis dans le cadre du Swiss Arc Award 2026 et publié par Nina Farhumand.

217478219