Amavita Bahnhof Apotheke Zürich

3 von 763

 
8001 Zürich,
Schweiz

Veröffentlicht am 07. April 2026
atelier 10punkt3 ag
Teilnahme am Swiss Arc Award 2026

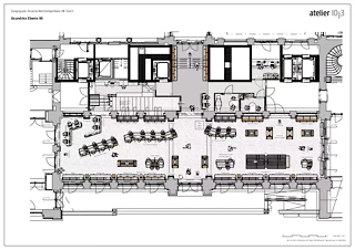
Apotheke: Verkaufsraum Apotheke: Kassentresen Apotheke: Verkaufsgondeln mit Beleuchtung Apotheke: Decke/Beleuchtung Apotheke: Seiteneingang Apotheke: Verkaufsregale Fassade Apotheke: Detail Verkaufsgondel Apotheke: Tresen Rezeptkontrolle Apotheke: Detail Signaletik Nebenräume: Korridor Beratungsräume Nebenräume: Beratungsraum Nebenräume: Meetingraum Nebenräume: Pausenraum

Projektdaten

Basisdaten

Lage des Objektes
Bahnhofplatz 15, 8001 Zürich, Schweiz
Projektkategorie
Gebäudeart
Fertigstellung
09.2023
Links

Gebäudedaten nach SIA 416

Geschossfläche
710 m²
Nutzfläche
654 m²
Anzahl Arbeitsplätze
93

Beschreibung

Die Amavita Bahnhof Apotheke im Hauptbahnhof Zürich zieht nach 3,5 Jahren provisorischem Betrieb zurück in die frisch sanierten, fast 150 Jahre alten Räumlichkeiten. Im Auftrag von Galenicare und Amavita entsteht in Zusammenarbeit mit B-M-K GmbH ein auffallend neues Apothekenerlebnis. Das hochwertige Verkaufsmobiliar mit einer warmen, naturbezogenen Materialästhetik fügt sich harmonisch in die eindrückliche, denkmalgeschützte Wandelhalle des Südtrakts ein und schafft eine einladende räumliche Wirkung.

In dem fast sieben Meter hohen Raum der Wandelhalle wirken die neu entwickelten Amavita-Verkaufsmöbel stimmig mit der historischen Architektur. Hochwertiges Eichenholz steht als zentrales Material im Raum und bringt Wärme, Harmonie und Wohlbehagen als angenehmen Kontrast zum kühlen Naturstein der Böden und Wände. Die weichen Formen und elegant geschwungenen Elemente der Verkaufsmöbel treten als Einheit mit der Architektur auf. Das Tageslicht, das durch die grosszügige Südfassade in den Raum gelangt, spielt mit den Materialien, Farben und Formen und erzeugt ein Licht- und Schattenspiel. Künstliches Licht wird gemischt diffus und gerichtet eingesetzt, akzentuiert die Ware, erzeugt plastische Tiefe und vervollständigt das räumliche Ensemble.

Im 3. Obergeschoss des Gebäudes befindet sich auf weiteren rund 300 Quadratmetern das Backoffice der Apotheke. Für eine wohnlich angenehme Atmosphäre wird auch hier das Eichenholz als zentrales Material eingesetzt, und im Altbauteil werden die Farben und Materialien ganz bewusst auf die alte und geschützte Bausubstanz abgestimmt.

Was ist das Besondere an der Bauaufgabe?
Die zentrale Herausforderung dieses Projekts lag in der Bewahrung der denkmalgeschützten Bausubstanz. Um die historischen Decken und Wände unangetastet zu lassen, wurde die Beleuchtung in die Verkaufsgondeln integriert und über den Boden erschlossen. Durch diese minimale Eingriffstiefe bleibt die monumentale Weite der Halle in ihrer ursprünglichen räumlichen Lesbarkeit erhalten. Zugleich entsteht durch die Gondeln eine subtile Raumfassung, die den Besucher führt und Orientierung stiftet, ohne die historische Struktur zu überlagern.

Welche Überlegungen liegen diesem Projekt zugrunde?
Die harmonische Verbindung von historischer Substanz, komplexer Logistik und zeitgenössischem Design. Materialwahl, Lichtführung und organische Möbelformen wurden so austariert, dass sie Orientierung bieten und Wohlbefinden in einem Transitraum erzeugen.

Was war Ihre Inspiration?
Die sakrale Proportion der Halle und das einfallende Tageslicht der Südfassade. Diese Elemente diktierten das Lichtkonzept und die Materialität, um eine Atmosphäre von Klarheit und Eleganz zu schaffen, die den Bestand nicht konkurrenziert, sondern ergänzt.

Welche Rolle hatten Standort und Bestand auf den Entwurf?
Der Bestand bildete den primären Leitfaden. Das neue Farb- und Materialkonzept wurde gezielt auf den klaren, zeitlos anmutenden Naturstein und die historischen Farben abgestimmt und durch warme Akzente ergänzt, die dem Raum eine einladende Atmosphäre und spürbare Behaglichkeit verleihen. Die grosszügigen Dimensionen der Halle wurden als wesentliches Gestaltungselement genutzt, um die neuen Einbauten als skulpturale, frei im Raum stehende Objekte zu inszenieren.

Inwiefern haben Bauherrschaft, Auftraggeber oder die späteren Nutzer*innen das Projekt beeinflusst?
Die Anforderungen von Amavita an Abläufe, Kundenfluss und Effizienz prägten die gestalterische und planerische Entwicklung massgeblich. Aus diesen funktionalen Vorgaben entstand eine innenarchitektonische Raumorganisation sowie eine fein abgestimmte Material- und Farbkomposition, die die Dynamik des stark frequentierten Standorts mit einer hohen Aufenthaltsqualität verbindet – zugeschnitten auf die Prozesse der Bahnhof Apotheke.

Wie fügt sich das Gebäude in die Reihe der bisher realisierten Bauten Ihres Büros?

Das Projekt führt unsere Haltung eines sensiblen Umgangs mit Bestandesbauten konsequent weiter. Innenarchitektur verstehen wir als Antwort auf den Ort: Statt eine eigene Formsprache in den Vordergrund zu stellen, orientieren wir uns an den vorhandenen Gegebenheiten und entwickeln daraus ein stimmiges Zusammenspiel zwischen Bestand und neuer Nutzung. Diese Herangehensweise unterstreicht unsere Kompetenz, mit Klarheit und Einfachheit eine funktionale Eleganz zu schaffen, die die Identität des Raumes respektiert und zugleich stärkt.

Gab es Richtungsänderungen vom ersten Entwurf bis zum fertigen Gebäude?
Es gab keine grundlegenden Richtungsänderungen gegenüber dem ersten Entwurf. Die ursprüngliche Gestaltungsidee konnte konsequent weitergeführt werden, da sie von Beginn an eng mit der denkmalgeschützten Bestandsstruktur verknüpft war.

Im Planungsverlauf flossen funktionale und prozessorientierte Anforderungen der Bauherrschaft und der Nutzer ebenso ein wie die Ergebnisse der Abstimmungen mit Fachplanern, Behörden, dem Denkmalschutz und der Eigentümerschaft. Diese Rückmeldungen haben den Entwurf nicht verändert, sondern präzisiert – insbesondere hinsichtlich betrieblicher Abläufe und Raumorganisation, konstruktiver Details und Materialisierung. Das Ergebnis ist eine kontextspezifische, präzise ausgearbeitete und qualitativ hochwertige innenarchitektonische Lösung.

Haben aktuelle energetische oder konstruktive Trends das Projekt beeinflusst?
Moderne Apotheken verlangen hohe hygienische Standards, effiziente technische Infrastrukturen und präzise organisierte Warenflüsse. Zusätzlich bestand der Wunsch bei Amavita, dem denkmalgeschützten Standort in Farbwahl und Materialisierung gerecht zu werden, was eine Überarbeitung des bestehenden Amavita Verkaufsmöbel-Standards erforderte.

Der Fokus lag auf modularen, anpassbaren Möbeln mit wieder lösbaren Verbindungen, hoher Vorfertigung und der einfachen Integration des komplexen Beleuchtungssystems. Zudem mussten langlebige, pflegeleichte Oberflächen mit einer hochwertigen räumlichen Wirkung in Einklang gebracht werden. Auch die technische Einbindung des Kommissionierautomaten – heute Standard im Apothekenbau – prägte die Planung wesentlich.

Welches Produkt oder Material hat zum Erfolg Ihres Bauwerks beigetragen?
Das Eichenholz bildet als warmer Gegenpol zum historischen Stein das atmosphärische Zentrum des Entwurfs. Seine natürliche Wärme und Farbigkeit dienten als Basis und wurden konsequent auf weitere Materialien wie Metall, Holzwerkstoffe, Kunststein und die abgestimmte Farbwelt übertragen. In Kombination mit dem wirkungsvollen Beleuchtungskonzept schafft diese Materialkontinuität ein angenehmes und einladendes Einkaufserlebnis an diesem hochfrequentierten Ort.

Das Projekt von atelier 10punkt3 wurde im Rahmen des Swiss Arc Award 2026 eingereicht und von Nina Farhumand publiziert. 

216521263