Doppelwohnhaus

 
9030 Gaiserwald SG,
Schweiz

Veröffentlicht am 02. April 2026
Peter Lüchinger Architektur Dipl. Architekt FH/SWB/SIA
Teilnahme am Swiss Arc Award 2026

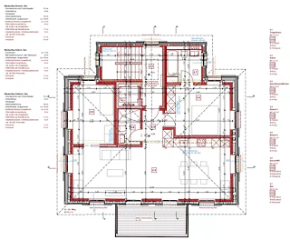
Nordwestfassade Nordansicht Südostfassade Holzriegel Aussenwand ausgemauert Holzwerk Bestand und Neu Wohnraum Zimmer Blickrichtung Bad Ansicht Küche Zimmer Schrankfront Wohnraum Essen WC Dusche WC Bad Treppenhaus Detail Treppenhaus Geländer Treppenhaus

Projektdaten

Basisdaten

Projektkategorie
Fertigstellung
12.2025

Gebäudedaten nach SIA 416

Stockwerke
2
Anzahl Kellergeschosse
1
Anzahl Wohnungen
2
Grundstücksfläche
2800 m²
Geschossfläche
230 m²
Nutzfläche
210 m²
Gebäudevolumen
1200 m³
Gebäudekosten (BKP 2)
1,4 Mio. CHF
Parkplätze
4

Beschreibung

Dreieinhalbzimmerwohnungen in einer seit Jahrzehnten bestehenden und leerstehenden Gebäudehülle. Diese besteht an drei Fassaden aus einem geschindelten und ausgemauerten Holzriegel. Die vierte Fassade gegen Süden in Blickrichtung Alpstein ist verputzt. Alle Holzfenster sind mit Fenstergewänden und Fries in Holz verkleidet. Das Walmdach mit Quergiebel ist mit Biberschwanzziegeln einfach gedeckt. Die Holzkonstruktion bleibt bewusst erhalten, wird jedoch bauphysikalisch und statisch den neuen Rahmenbedingungen angepasst. Somit bleibt auch die Erscheinung unverändert, und die Auflagen der Landwirtschaftszone werden eingehalten. Die baulichen Massnahmen beschränken sich auf den Innenausbau sowie den Einbau von zwei Dreieinhalbzimmerwohnungen in Holzbauweise. Ein neuer Vorplatz beim Eingangsbereich, der auch als Spiel- und Aufenthaltsplatz dient, wird die Zugangssituation zur Liegenschaft attraktiver gestalten und die Umgebung aufwerten.

Das Projekt von Fiechter & Salzmann Architekten wurde im Rahmen des Swiss Arc Award 2026 eingereicht und von Nina Farhumand publiziert.

222500338