HNO-Praxis Nidwalden

 
6370 Stans,
Schweiz

Veröffentlicht am 31. März 2026
Marcel Baechler GmbH
Teilnahme am Swiss Arc Award 2026

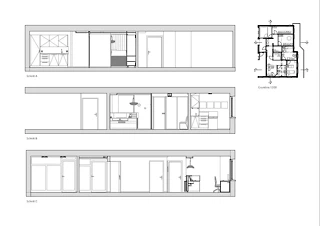
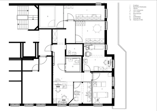
Empfangsbereich mit Warten Korridor mit Sicht zum Empfang Empfang EmpfangKontrsuktions- und Materialdetail Empfangsraum gezielt eingerahmt in Farbe Garderobendetail Untersuchungszimmer mit HNO Einheit auf kleinstem Raum Untersuchungszimmer Arbeitsplatz Ärztin auf kleinstem Raum Korridorbereich als Erschliessungszone für IV-WC und Untersuchungsräume Wartebereich hinter Verglasung Wartebereich mit neuem Brandschutzverkleidetem Stahlunterzug Patienten und IV-WC Audiokabine der höchsten Nutzungsklasse als eiegenständiger Raum im Raum eingebaut Untersuchungszimmer für diverse Untersuchungen in einer Hals- Nasen und Ohrenarztpraxis Personalraum mit Personalküche. Mut zur Farbe

Projektdaten

Basisdaten

Lage des Objektes
Stansstaderstr. 20, 6370 Stans, Schweiz
Projektkategorie
Fertigstellung
12.2025
Links

Gebäudedaten nach SIA 416

Stockwerke
3 bis 5
Anzahl Kellergeschosse
1
Geschossfläche
102 m²
Nutzfläche
102 m²
Gebäudekosten (BKP 2)
400'000 CHF
Anzahl Arbeitsplätze
5
Parkplätze
3

Beschreibung

Transformation unter Zeitdruck – vom Büro zur heilenden Praxislandschaft
Die neuen Praxisräume befanden sich ursprünglich in einer konventionellen Bürostruktur ohne medizinische Infrastruktur. Innerhalb von nur sieben Wochen wurde der Bestand vollständig neu organisiert und in eine funktionierende HNO-Praxis transformiert. Neben der räumlichen Neuordnung waren konstruktive Eingriffe notwendig – unter anderem Anpassungen an tragenden Bauteilen. Planung, Detailentwicklung und Umsetzung erfolgten parallel. Die architektonische Präzision musste unter hohem Zeitdruck gewährleistet bleiben.

Raum als therapeutische Landschaft
Das Entwurfskonzept versteht die Praxis nicht als funktionale Aneinanderreihung von Behandlungsräumen, sondern als zusammenhängende räumliche Landschaft. Farbe, Material und Licht übernehmen dabei orientierende und psychologische Funktionen: 
– Warme Akzentflächen strukturieren den Grundriss 
– Grün- und Naturtöne beruhigen und stabilisieren 
– Helle Flächen öffnen die ehemaligen Büroräume 
– Ein durchgängiger spezialangefertigter Vinylboden verbindet alle Zonen

Integration von Technik und Atmosphäre
Medizintechnik, Stauraum und Arbeitsabläufe wurden vollständig in die Innenarchitektur integriert. Geräte verschwinden in massgefertigten Einbauten, Arbeitsflächen sind ergonomisch optimiert, die Wegeführung ist klar und effizient. Gleichzeitig bleibt die Atmosphäre ruhig und wohnlich. Die Praxis wirkt nicht klinisch, sondern menschlich. Diese Balance zwischen technischer Präzision und emotionaler Raumqualität war ein zentrales Ziel des Projekts.

Flächeneffizienz im Bestand
Die bestehende Bürostruktur erforderte eine maximale Optimierung der Raumorganisation. Jeder Quadratmeter wurde neu bewertet.
- klare Trennung von Patienten- und Arbeitszonen
- kurze interne Wege
- funktionale Integration von Diagnostik, Behandlung und Administration

Licht als räumliche Führung
Indirekte Lichtlinien strukturieren die Räume subtil und schaffen Orientierung ohne visuelle Dominanz. Blendfreies Arbeitslicht verbessert die medizinischen Abläufe.

Materialität und Dauerhaftigkeit
Die Materialwahl folgt klaren Kriterien: robust, hygienisch, langlebig, ruhig. Matte Oberflächen reduzieren visuelle Unruhe. Einbauten sind präzise gefügt. Der warme Holzfussboden schafft einen atmosphärischen Gegenpol zur Medizintechnik. Die Gestaltung vermeidet modische Effekte und setzt auf zeitlose Ruhe.

Wirkung
Aus einem anonymen Büro entstand eine Praxis, die als ruhiger, sicherer Ort wahrgenommen wird. Die Innenarchitektur reduziert Stress, schafft Orientierung und unterstützt effiziente medizinische Prozesse. Funktion, Atmosphäre und Identität bilden eine Einheit. Das Projekt zeigt, dass Transformation im Bestand keinen Kompromiss bedeutet, sondern innenarchitektonische Chance.

Eine der grössten Herausforderungen dieses Projekts war der Zeitrahmen. Die Auftraggeberin musste die bestehende Praxis bis vor Weihnachten 2025 verlassen. Geeignete Räumlichkeiten in dieser kurzen Zeit zu finden, erwies sich als anspruchsvoll. Ab dem Frühling 2025 wurden zahlreiche Objekte besichtigt, viele davon jedoch zu klein oder zu gross. Anschliessend wurden bei verschiedenen Objekten Massaufnahmen, Layoutplanungen und Kostenschätzungen erstellt. Als schliesslich passende Räume gefunden waren, war der Zeitplan bereits stark fortgeschritten, sodass der Planungsstart erst im September 2025 erfolgen konnte. Dies war auch für die beteiligten Unternehmer äusserst sportlich, da diese zu diesem Zeitpunkt vielfach bereits bis Jahresende ausgebucht waren. Dank unseres eingespielten Netzwerks gelang dennoch der Spagat zwischen «fliegender» Planung und Baubeginn. Das Bauamt Stans begleitete das Projekt von Beginn an konstruktiv, wodurch das Baugesuch bewusst schlank gehalten werden konnte. Mit dem Vertrauen aller Beteiligten und einer Auftraggeberin, die das mutige Farbkonzept von Anfang an mitgetragen hat, konnte der Umbau eines ehemaligen Büros – inklusive der Anpassung einer tragenden Wand – innerhalb von sieben Wochen erfolgreich realisiert werden.

Das Projekt von Marcel Baechler wurde im Rahmen des Swiss Arc Award 2026 eingereicht und von Nina Farhumand publiziert.

222385846