Kindergarten Dotzigen

 
3293 Dotzigen,
Schweiz

Veröffentlicht am 17. November 2025
Comamala Ismail

Projektdaten

Basisdaten

Lage des Objektes
Schulhausstrasse 51, 3293 Dotzigen, Schweiz
Projektkategorie
Fertigstellung
08.2025
Links

Gebäudedaten nach SIA 416

Stockwerke
1
Nutzfläche
400 m²
Gebäudekosten (BKP 2)
2,9 Mio. CHF

Beschreibung

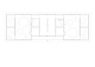
Der Pavillon des neuen Kindergartens in Dotzigen ist ein feines Projekt, das mit seiner Umgebung interagiert – bis hin zu seiner Verschmelzung mit dem angrenzenden Wald. Gleichzeitig stellt er einen Dialog mit den bestehenden Gebäuden her und fasst einen Schulhof. Das Projekt steht im Spannungsfeld zwischen den Gegensätzen Natur und Künstlichkeit.

Seine Form ist klassisch komponiert: Sockel, Körper und Krone. Auf Basis des geordneten Grundrisses und in ihrer modularen Wiederholung bilden die Säulen und Balken eine sorgsam inszenierte Struktur. Die Transparenz auf beiden Seiten hebt die strukturellen Elemente hervor und verleiht dem Pavillon eine durchscheinende, fast schwebende Qualität. 

Statisch und still, versucht der Pavillon, «nahezu nichts» zu sein und sich in seiner bewaldeten Umgebung aufzulösen. Wie bei vielen Projekten des Büros wurden die Materialien roh belassen, damit die Zeit sich ihnen einprägen, ihren Charakter hervortreten lassen und ihren natürlichen Alterungsprozess geben kann. Sie offenbaren sich ohne Zier, ohne Verkleidung.

Das Projekt wurde von Comamala Ismail hochgeladen und von Jeannine Bürgi publiziert. 

Pläne + Downloads

Pläne

223601295