Schulanlage Borrweg

6 von 779

 
8055 Zürich,
Schweiz

Veröffentlicht am 15. April 2026
WALDRAP AG
Teilnahme am Swiss Arc Award 2026

WALDRAP SA Borrweg 7 WALDRAP SA Borrweg 8 WALDRAP SA Borrweg 9 WALDRAP SA Borrweg 10 WALDRAP SA Borrweg 11 WALDRAP SA Borrweg 12 WALDRAP SA Borrweg 13 WALDRAP SA Borrweg 14 WALDRAP SA Borrweg 15

Projektdaten

Basisdaten

Lage des Objektes
Borrweg 81, 8055 Zürich, Schweiz
Projektkategorie
Fertigstellung
07.2025
Links

Gebäudedaten nach SIA 416

Stockwerke
3 bis 5
Anzahl Kellergeschosse
2
Grundstücksfläche
33'816 m²
Geschossfläche
11'921 m²
Nutzfläche
6645 m²
Gebäudevolumen
56'350 m³
Gebäudekosten (BKP 2)
50,0 Mio. CHF
Parkplätze
19
Anzahl Schüler
400

Beschreibung

Direkt am Borrweg platziert, spannt der Ersatzneubau der Schulanlage gemeinsam mit dem bestehenden Schulhaus Friesenberg einen grosszügigen, differenzierten Aussenraum auf. Die Setzung des Baukörpers quer zum Hang reagiert präzise auf die topografischen und klimatischen Bedingungen des Ortes: Sie sichert den Kaltluftstrom vom Uetliberg ins Quartier und leistet damit einen wesentlichen Beitrag zu einem ausgeglichenen Stadtklima. Gleichzeitig ermöglicht der kompakte Fussabdruck eine maximale Freihaltung der Terrassenlandschaft, wodurch wertvolle Freiräume für Schule und Quartier entstehen. Die Terrassierung des Geländes nimmt die vorhandene Topografie auf und gliedert den Aussenraum in unterschiedliche Nutzungsqualitäten. Diese reichen von Allwetterplätzen über Aufenthaltsbereiche bis hin zu gemeinschaftlich nutzbaren Freiflächen. Die Schulanlage versteht sich dabei bewusst als offener Ort: Neben dem Schulbetrieb stehen Sporthallen, Schwimmanlage und Mehrzweckräume auch der Quartierbevölkerung zur Verfügung und stärken so die soziale Einbindung der Anlage.

Architektur und Landschaft bilden eine untrennbare Einheit. Die volumetrische Staffelung der Baukörper folgt der Hanglage und reduziert durch das teilweise Einbetten der Sport- und Schwimmhallen den Aushub im schwierigen Baugrund des Uetliberglehms. Gleichzeitig entstehen daraus räumlich prägnante Terrassen, welche die Anlage in die Landschaft integrieren und eine klare Gliederung der Nutzungen ermöglichen. Die grossen Sportvolumen sind bewusst neben dem fünfgeschossigen Schulhaus angeordnet, was ein einfaches und wirtschaftliches Tragwerk begünstigt. Die architektonische Sprache ist geprägt von Leichtigkeit und Präzision. Die Fassade aus Aluminiumprofilen mit umlaufenden Brise-Soleil-Elementen verbindet konstruktive Klarheit mit funktionaler Performance. Der passive Sonnenschutz sorgt für ein angenehmes Innenraumklima und reduziert gleichzeitig den Energiebedarf. Durch das Spiel von Licht und Schatten entsteht eine feine Tiefenwirkung, die der Fassade trotz ihrer Zurückhaltung eine hohe Präsenz verleiht.

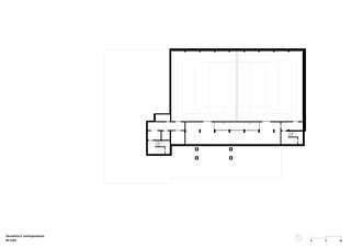
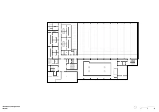
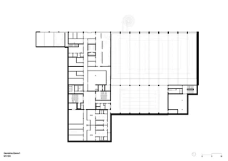
Im Inneren organisiert sich das Gebäude als klar strukturierter, zugleich offener Lern- und Lebensraum. Die Unterrichtsgeschosse sind in Cluster gegliedert, die jeweils mehrere Klassenzimmer, Gruppenräume und Aufenthaltsbereiche um eine grosszügige Mittelzone anordnen. Diese Mittelzonen fungieren als kommunikative Räume, in denen Begegnung, informelles Lernen und Aufenthalt gleichermassen stattfinden. Die Raumstruktur unterstützt damit zeitgemässe pädagogische Konzepte der Tagesschule. Ein wesentliches Element dieser Flexibilität sind die variablen Raumabschlüsse. Faltschiebewände ermöglichen es, Räume je nach Bedarf zu öffnen oder zu schliessen: Am Morgen entstehen offene, fliessende Bereiche für Betreuung und Aufenthalt, während am Nachmittag klar definierte Unterrichts- und Gruppenräume genutzt werden können. Transluzente Materialien wie Profilitglas sorgen dabei für eine natürliche Belichtung der Mittelzonen und schaffen gleichzeitig visuelle Verbindungen innerhalb des Gebäudes.

Das Erdgeschoss bildet das gemeinschaftliche Herz der Anlage. Hier befinden sich Mensa, Mehrzweckraum und zentrale Begegnungsbereiche. Die Räume sind polyvalent nutzbar und können sowohl für den Schulbetrieb als auch für Veranstaltungen des Quartiers eingesetzt werden. Die Organisation erlaubt eine hohe Nutzungsdichte, etwa im Mensabetrieb mit bis zu 700 Mahlzeiten pro Tag, ohne dabei die räumliche Qualität zu beeinträchtigen. Auch die Materialisierung folgt einem ganzheitlichen Ansatz. Robuste, langlebige Materialien wie Sichtbeton, Metall und mineralische Oberflächen prägen das Erscheinungsbild. Sie werden bewusst unverkleidet eingesetzt und sind direkt erfahrbar. In den Obergeschossen schafft die Kombination aus Betonstruktur, hellen Oberflächen und gezielten Farbeinsätzen eine ruhige, lichtdurchflutete Lernumgebung. In den Untergeschossen hingegen setzen kräftigere Farbakzente Orientierungspunkte und unterstützen die spezifischen Anforderungen der Sport- und Schwimmnutzung.

Die erhöhte Lage der Anlage mit Blick über die Stadt, den Zürichsee und bis zum Tödimassiv sowie die unmittelbare Nähe zum Uetlibergwald verleihen dem Ort eine besondere atmosphärische Qualität. Diese landschaftliche Einbindung wird im Projekt nicht nur respektiert, sondern aktiv verstärkt. Innen- und Aussenräume sind visuell und funktional miteinander verknüpft und ermöglichen vielfältige Bezüge zur Umgebung. Insgesamt entsteht mit dem Ersatzneubau der Schulanlage Borrweg ein zukunftsweisender Bildungsbau, der ökologische, soziale und architektonische Aspekte zu einem kohärenten Ganzen verbindet. Die klare städtebauliche Setzung, die flexible Raumstruktur und die sorgfältige Materialisierung bilden die Grundlage für einen lebendigen Lernort, der über den Schulbetrieb hinaus eine identitätsstiftende Rolle im Quartier übernimmt.

Ziel war eine dauerhaft wirksame, wartungsarme und klimaadaptive Fassade, die sowohl den visuellen Bezug nach aussen als auch thermischen Komfort und Energieeffizienz sicherstellt. Anstelle konventioneller aussenliegender Storen wurde ein 2,5 Meter auskragendes Brise-Soleil-System mit differenzierten Gitterrosten entwickelt. Es reagiert auf unterschiedliche Sonnenstände und topografische Bedingungen am Fuss des Üetlibergs. Die Fassaden wurden mittels Sonnenstands- und Windanalysen sowie dynamischer thermischer Simulationen auf Jahresbasis überprüft. Die Kombination aus festem Brise-Soleil und automatisiertem innenliegendem Blendschutz reduziert den jährlichen Energiebedarf für Heizen und Kühlen um rund 22 Prozent gegenüber einer Standardfassade mit aussenliegendem Sonnenschutz. Gleichzeitig bleibt die Tageslichtqualität erhalten und der Blickbezug der Nutzenden nach aussen wird nicht eingeschränkt.

Das Projekt von WALDRAP wurde im Rahmen des Swiss Arc Award 2026 eingereicht und von Nina Farhumand publiziert.

217501074