Aufstockung Wohngebäude Rue de Beaumont

 
1206 Genève,
Schweiz

Veröffentlicht am 02. April 2026
JACCAUD + ASSOCIÉS SA
Teilnahme am Swiss Arc Award 2026

Projektdaten

Basisdaten

Lage des Objektes
Rue de-Beaumont 14-16-18, 1206 Genève, Schweiz
Projektkategorie
Gebäudeart
Fertigstellung
08.2025

Gebäudedaten nach SIA 416

Stockwerke
6 bis 10
Anzahl Kellergeschosse
1
Anzahl Wohnungen
59
Gebäudevolumen
23'300 m³
Gebäudekosten (BKP 2)
22,3 Mio. CHF

Beschreibung

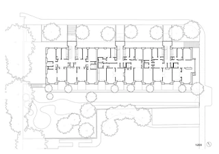
Das Projekt befindet sich an der Rue de Beaumont, an der Schnittstelle zwischen dem Quartier des Tranchées und jenem der Contamines. Es sieht die Aufstockung um drei Geschosse, die Sanierung der technischen Anlagen sowie die Dämmung der Fassaden von drei Gebäuden vor, die zwischen 1939 (für das Gebäude Nr. 14) und 1947 (für die Gebäude Nr. 16 und 18) von den Architekten Albert Deberti und Lucien Archinard errichtet wurden. Die Bauten markieren die Ecke zwischen der Rue des Contamines und der Rue de Beaumont und bilden ein zusammenhängendes, einheitliches Ensemble, das gegenüber den am unteren Ende der Rue de Beaumont gelegenen Stadtvillen zurückversetzt ist. Das Projekt nutzt die Aufstockung und die Fassadendämmung, um den Gebäuden wieder eine einheitliche Lesbarkeit zu verleihen – sowohl zwischen den einzelnen Häusern als auch zwischen dem Bestand und der Aufstockung. Eine sorgfältige Ausarbeitung der neuen Hauseingänge, insbesondere durch eine Anpassung der Zugangsniveaus, verbessert die Beziehung zum Strassenraum und ermöglicht zugleich eine bessere Zugänglichkeit für Personen mit eingeschränkter Mobilität. Die neue Materialisierung sowie eine vertiefte Auseinandersetzung mit den Farbtönen stellen eine stimmige Einbindung in die umgebende Bebauung her. Die neuen Wohnungstypologien der Aufstockung (Drei- und Vierzimmerwohnungen) bringen im Vergleich zu den bestehenden Typologien, die aus Vierkommafünf- und Fünfkommafünfzimmerwohnungen bestehen, eine neue Durchmischung in die Gebäude. Sie bewahren die Qualitäten der Organisation um eine zentrale Halle, die für die bestehenden Typologien charakteristisch ist, und führen gleichzeitig das Prinzip der durchgehenden Blickbezüge ein.

Das Projekt von Jaccaud + Associés wurde im Rahmen des Swiss Arc Award 2026 eingereicht und von Nina Farhumand publiziert

215530174