Umbau und Renovation Bauernhaus

3 von 779

 
Schweiz

Veröffentlicht am 15. April 2026
Castor Huser Architekten AG
Teilnahme am Swiss Arc Award 2026

Südfassade mit Wohnteil und rekonstruierter Toreinfassung des Tennbereichs Falttor mit diagonaler Schalung vor der Toreinfassung, geschlossen Falttor mit diagonaler Schalung vor der Toreinfassung, geöffnet Blick von der Küche in den Essbereich im ehemaligen Tenn Neue Treppe aus Schwarzstahl mit Kirschbaumtritten an der freigelegten Bruchsteinmauer Wohnzimmer mit erhaltenem Kachelofen und Felderboden Niveauübergang zwischen Wohnteil und Scheunenteil Dachraum im Scheunenteil mit freiliegendem Dachstuhl Wellnessbereich mit Holzbadewanne, freiliegendem Dachstuhl und Guntliweider Hartsandstein

Projektdaten

Basisdaten

Projektkategorie
Gebäudeart
Fertigstellung
09.2024

Gebäudedaten nach SIA 416

Stockwerke
3 bis 5
Anzahl Kellergeschosse
1
Anzahl Wohnungen
2
Parkplätze
3

Beschreibung

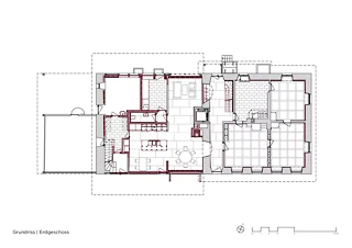
Das Bauernhaus in Seetal, 1769 im spätbarocken Stil erbaut, steht unter kommunalem Substanzschutz in der Landwirtschaftszone. Als bäuerlicher Vielzweckbau mit angegliederter Scheune und zwei Speichern auf derselben Parzelle gehört er mit seinen profilierten Balkendecken, dem Feldertäfer und dem grünen Kachelofen zu den qualitätsvollen Zeugnissen ländlicher Baukultur im Aargau.

Die Renovation der frühen 1990er-Jahre hatte den Wohnteil sorgfältig behandelt, im ehemaligen Ökonomieteil jedoch Eingriffe vorgenommen, die aus heutiger Sicht nicht mehr zeitgemäss waren: eine Treppenhaussituation mit versetzten Absätzen, eine geschlossene Küche ohne Bezug zum Essbereich im Tenn, eine bauphysikalisch kritische Innendämmung sowie eine unterdimensionierte Bodenheizung. Das Projekt hatte zum Ziel, diese Eingriffe zu korrigieren und das Haus räumlich und konstruktiv wieder in sich zu schliessen, ohne den Schutzstatus und das Ortsbild zu beeinträchtigen.

Der Bestand selbst gab den Rahmen vor. Der Wohnteil blieb äusserlich beinahe unverändert. Nord- und südseitig wurden je drei neue Schleppgauben anstelle von zwei kleineren gesetzt, was die Symmetrie der Fassade harmonisiert und die Belichtung des Dachgeschosses verbessert. Im Scheunenteil wurde die Fassade im Küchenbereich mit neuen Verglasungen hinter diagonalen Holzlamellen geöffnet. Die bauzeitliche Toreinfassung des Tennbereichs wurde rekonstruiert und mit innenliegenden Holzglastoren versehen, die sich typologisch an den ursprünglichen Holztoren orientieren. Ein vorgelagertes Falttor mit diagonaler Schalung reduziert den Glasanteil optisch und vermittelt zwischen alter und neuer Schicht. An der westlichen Giebelfassade wurde ein bestehendes Fenstergewände nach unten verlängert und als französisches Fenster ausgebildet, um den Blick auf den Teich freizugeben.

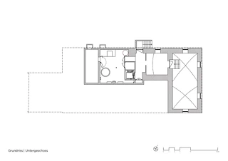
Im Inneren wurden die Gebäudeteile auf jedem Geschoss miteinander verbunden. Ein neuer Durchbruch in der bestehenden Bruchsteinmauer erschliesst den ehemaligen Ökonomieteil vom Vorraum des 2. Obergeschosses aus. Der Rückbau der Kehlbalkenlage macht den imposanten Dachraum der Scheune wieder erlebbar. Das Treppenhaus wurde vom Erdgeschoss bis ins Dachgeschoss vereinigt und mit einer neuen Treppe aus Schwarzstahl mit Tritten aus Kirschbaum ausgestattet. Die damals geschlossene Küche öffnet sich neu zum Essbereich im Tenn. Die Bodenbeläge aus massivem Kirschbaum mit Nussbaumfriesen in den Wohnräumen und Guntliweider Hartsandstein in Küche, Bädern und Wellnessbereich setzen ein durchgehendes Materialbild. Neue Türen nehmen als konstruktive Neuinterpretation die Materialität der historischen Futtertüren aus Nussbaum auf. Verputzflächen erhielten einen mit Naturpigmenten eingefärbten hydraulischen Kalkputz, der ohne Farbanstrich belassen wurde. Alle historisch wertvollen Bauteile, Kachelöfen, Tonplattenböden, Schrankeinbauten, Wandtäfer und Türen blieben dabei vollständig erhalten und erhielten lediglich eine Auffrischung der Oberflächen.

Die EPS-Innendämmung an den Aussenwänden wurde vollständig entfernt und durch einen diffusionsoffenen Dämmputz ersetzt. Dabei kamen unter jüngeren Gipsdecken erhaltene Sichtbalkendecken zum Vorschein, die freigelegt und restauriert wurden. Das unterdimensionierte Bodenheizsystem wurde durch ein Trockenbausystem aus massivem Buchenholz ersetzt. Da auch die Erdwärmesonde zu knapp bemessen war, ergänzt ein Ofen mit Stückholzheizung die Wärmeversorgung. Dieser ersetzt das bestehende Cheminée und ist mit lokalem Mägenwiler Muschelkalkstein verkleidet.

Konstruktiv wurde das Projekt von einem Kreislaufgedanken geleitet. Materialien wurden so eingesetzt und gefügt, dass sie sortenrein trennbar und wiederverwendbar bleiben. Verbindungen erfolgten wo immer möglich mechanisch und leimfrei. Die grossformatigen Natursteinplatten in der Küche und Wohnbereich wurden lose verlegt, der massive Parkett nur mechanisch befestigt. Gedämmt wurde dort, wo es konstruktiv und denkmalpflegerisch vertretbar war, mit kreislauffähigen Materialien wie Foamglas, Zellulose und Dämmputz.

Der räumlich markanteste Eingriff ist der Wellnessbereich im Dachraum des ehemaligen Scheunenteils. Der freigelegte Dachstuhl und die Holzbadewanne als skulpturales Element unter den alten Balken machen deutlich, dass hier der Kontrast zwischen historischer Struktur und zeitgenössischer Nutzung nicht aufgelöst, sondern bewusst gehalten wird.

Das Projekt von Castor Huser Architekten wurde im Rahmen des Swiss Arc Award 2026 eingereicht und von Nina Farhumand publiziert

217478472