Depot Hard

 
8005 Zürich,
Schweiz

Veröffentlicht am 31. März 2026
Morger Partner Architekten AG
Teilnahme am Swiss Arc Award 2026

Wohnen an der Limmat Sockelbau schafft Anbindung an die denkmalgeschützten Kopfbauten Neues urbanes Ensemble am Escher-Wyss-Platz Einfahrt in das Tramdepot Halböffentliche Hofebene Wohnen im Townhouse Wohnatelier Hochhauswohnung Haupttreppenhaus

Projektdaten

Basisdaten

Lage des Objektes
Hardturmstrasse 20/22, 8005 Zürich, Schweiz
Projektkategorie
Fertigstellung
07.2025
Links

Gebäudedaten nach SIA 416

Stockwerke
mehr als 20
Anzahl Kellergeschosse
1
Anzahl Wohnungen
197
Grundstücksfläche
15'143 m²
Geschossfläche
46'625 m²
Nutzfläche
31'750 m²
Gebäudevolumen
173'500 m³

Beschreibung

Stadt
Zürich-West befindet sich seit über 30 Jahren in einem intensiven Transformationsprozess von einem Industrie- und Gewerbegebiet zu einem attraktiv durchmischten urbanen Stadtteil. Gerade für Zürich-West gilt, dass über ein Collageverfahren das Vorhandene als Grundlage für die Weiterentwicklung dienstbar gemacht wird. Die städteräumliche Verdichtung erfolgt über innere horizontale Kompressionen mit markanten vertikalen Akzentuierungen. Das Areal Depot Hard, zwischen Escher-Wyss-Platz und südlichen Limmatufer gelegen, bildet den Auftakt zum Stadtquartier Zürich-West. Verschiedene Gebäudetypen und dominante Infrastrukturbauten prägen den Ort. Die beiden bestehenden unübersehbaren Hochhäuser sind weder Solitäre, Zwillinge noch bilden sie einen Cluster. Der Entwurf für das Depot Hard versucht die städteräumliche Dissonanz zu korrigieren.

Programm
Die Stadt Zürich hat zukunftsweisend entschieden, auf dem Areal nicht nur einen reinen Infrastrukturbau, sondern vielmehr eine Mischnutzung zu realisieren. Gerade im umfangreichen und vielfältigen Nutzungsprogramm liegt das grosse Potential, die urbane Lebendigkeit im Stadtquartier zu verbessern und die städteräumlichen Defizite zu eliminieren. Das Bauvorhaben «Tramdepot und Wohnsiedlung Depot Hard» umfasst neben der Teilsanierung des bestehenden, denkmalgeschützten Tramdepots aus dem Jahr 1912 den Neubau einer modernen Depothalle mit insgesamt 25 Tramabstellplätzen inklusive Bereitstellungs-, Wartungs- und Instandsetzungsbereichen, die ergänzt werden durch peripher angeordnete Räume für acht Atelier- und zehn Gewerbenutzungen. Zusätzlich wurde eine städtische Wohnsiedlung mit insgesamt 197 Wohnungen für rund 550 Bewohner*innen realisiert. Unterschiedliche Wohnungstypen ermöglichen eine soziale Durchmischung. Neben 151 Geschosswohnungen sind 42 Townhouses und vier Atelierwohnungen realisiert worden. Ein auf dem Dach der Depothalle verorteter halböffentlicher Hofraum mit zwei angegliederten Gemeinschaftsräumen bildet das soziale Zentrum der Wohnsiedlung. Der neue öffentliche Fuss- und Veloweg mit verschiedenen Aufenthaltsbereichen komplettiert den öffentlichen Raum entlang der Limmat. An den beiden im Osten und Westen gelegenen Kopfenden sollen offene Plätze entstehen, die neben Rangieraufgaben der Trams grosszügige Öffnungen zum Limmatraum ermöglichen.
   
Architektur
Zwei Hochhäuser auf einem viergeschossigen Sockel formen mit dem Swisscom-Tower und den Escher Terrassen ein neues urbanes Ensemble als Auftakt zum Stadtquartier Zürich-West. Über die alternierende Anordnung entsteht eine starke gegenseitige städteräumliche Bezugnahme. Diese Disposition erlaubt einen viel moderateren Sockelbau als bei einer Überbauungskonzeption gemäss dem Wettbewerbsprogramm von 2014, das einen 30 Meter hohen Blockrand vorsah, der die architektonisch wertvollen Kopfbauten durch seine Grösse, Bedeutung und Präsenz gestört hätte. So sind sie vielmehr ein wichtiger Bestandteil des Ensembles geworden. Die neue Tramdepothalle bildet zusammen mit je peripher angeordneten Zeilenbauten den Sockel der Überbauung. Sie schaffen eine präzise geometrisch-volumetrische Anbindung an die bestehenden denkmalgeschützten Kopfbauten des alten Tramdepots. Die Grundriss-Figur der beiden Randzeilenbauten entsteht einerseits durch die statische Grundlage der Tramdepothalle und andererseits durch eine genaue geometrische Anbindung an die Bestandsbauten. Die Fläche auf dem Dach der Tramdepothalle und zwischen den länglichen Zeilenbauten wird zu einem halböffentlichen, vielseitig nutzbaren und vielfältig begrünten Hofraum. Die Hofraumdimensionen wirken durch die niedrigen Randbauten und die beiden offenen Stirnmitten wohlproportioniert: Für die Bewohner*innen eine urbane Oase inmitten der Stadt. Aus dem in den Stadtraum einmodellierten Sockel entfalten sich die beiden 22- und 23-geschossigen Wohnhochhäuser.

Wohnen und Arbeiten
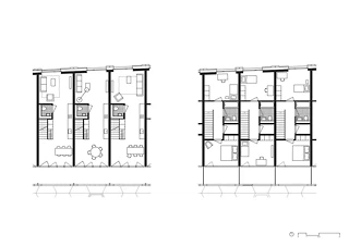
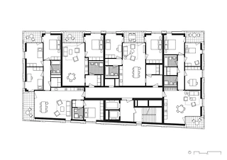
Preisgünstiger Wohnungsbau bedingt einfache Wohntypologien, die sich wie selbstverständlich aus der spezifischen Situation heraus entwickeln. Für die 197 Wohnungen werden grundsätzlich zwei unterschiedliche Wohntypen angeboten: Vertikales Wohnen im horizontalen Sockel und horizontales Wohnen im vertikalen Hochhaus. Im Sockel befinden sich die zweigeschossigen Townhouses (3½-, 4½- und 5½-Zimmer-Wohnungen), die alle über Kolonaden auf der Innenhofebene erschlossen werden. Auf der ersten Ebene sind mit ganz wenigen Ausnahmen die gemeinschaftlichen Räume, auf der zweiten Ebene die Individualräume untergebracht. Die Loggien liegen über den Kolonaden. In beiden Hochhäusern werden 4-Spänner-Typologien mit mehrheitlich 3½-, 4½- und 5½-Zimmer-Wohnungen und wenigen 1½- und 7½-Zimmer-Wohnungen realisiert. Die wind- und lärmgeschützten Loggien sind ins Gebäudevolumen eingezogen und in alle vier Himmelsrichtungen ausgerichtet. Die erhebliche Lärmbelastung rund um die beiden Hochhäuser, sowie die daraus resultierenden Lärmschutzanforderungen im stark belasteten Gebiet, haben die Grundrissgestaltung der Wohnungen, insbesondere die Anordnung von Räumen und Loggien, geprägt.

Das Materialkonzept der Wohnungen sucht eine leichte Differenzierung der beiden Wohnungstypen. Grundsätzlich zeigen alle Innenräume einen rohen Raumcharakter, um das Beleben der Bewohner*innen sichtbarer wirken zu lassen. Während bei den Townhouses die Böden aus Hartbeton und die Wände und Decken aus Recycling-Sichtbeton bestehen, sind die Wände der Wohnungen in den beiden Hochhäusern mit Gips und die Böden mit verschiedenfarbigem Linoleum ausstaffiert. Die Infrastrukturräume für die Wohnsiedlung befinden sich einerseits beim Foyer im 3. Obergeschoss (Kinderwagen, Entsorgung, Waschküchen, Kellerabteile) und jeweils im 13. Obergeschoss der beiden Hochhäuser, wo zusätzlich zu den Infrastrukturräumen auch die Haustechnikanlagen untergebracht sind. Um das Erdgeschoss trotz des Tramdepots zu beleben, befinden sich in der schmalen peripheren Raumschicht an der Hardturmstrasse zweigeschossige Gewerberäume und am Uferweg Wohnateliers, Ateliers sowie Arbeits- und Besprechungsräume der VBZ. Im ersten Untergeschoss befindet sich das zentrale Veloparking und eine Autoeinstellhalle mit 40 Stellplätzen für die VBZ.

Fassaden
Bestimmende Faktoren für die Gestaltung der Fassaden sind die Bestandsbauten, die Industriegeschichte von Zürich- West und die Idee einer Vereinheitlichung unterschiedlicher Nutzungen. Das Lochfenster wird als Typ von den denkmalgeschützten Kopfbauten übernommen und transformiert. In Ausdruck und Konstruktion suchen die Fassaden Analogien zur Industriearchitektur des 19. und 20. Jahrhunderts. Im Gegensatz zur monolithischen Konstruktion der Bestandsbauten bestimmt eine vorgefertigte Betonrahmenkonstruktion den architektonischen Charakter. Die fast immer gleichen Elemente sind Rahmen mit strukturellen Leerstellen, die durch unterschiedliche Füllungen dem Gebäude seinen tektonischen Ausdruck verleihen. Die Rahmen, aus schalungsglattem Recyclingbeton, können vollständig oder teilweise geschlossen oder ganz offen sein. Die Füllungen bestehen aus sandgestrahltem Recyclingbeton, die Fenster und Rafflammellenstoren aus Aluminium. Feuerverzinkte Staketengeländer sind den Fenstern vorgestellt. Bei den Loggien sind aus Gründen des Lärmschutzes Glasbrüstungen notwendig. Die Gliederung bzw. Dreiteilung in Sockel, Schaft und Dach erfolgt in einer überaus dezenten und zurückhaltenden Manier. Die Fassadengestaltung unternimmt den Versuch, neben den kontextuellen Bezügen und den ökonomischen und ökologischen Rahmenbedingungen, eine soziale Darstellung des Individuellen im Gemeinschaftlichen einer städtischen Wohnsiedlung zum Ausdruck zu bringen: Die Vielfalt in der Einheit. Auf dem Dach der beiden Hochhäuser wurden vollflächige Photovoltaikanlagen installiert. Die Dachlandschaft auf den Townhouses sorgt mit dem Konzept «Animal Aided Design» für die Entstehung von Habitaten und Biotopen für diverse Tier- und Pflanzenarten.
 
Dachbegrünung
Das Biodiversitätsförderkonzept für die Begrünung der Dächer des Depot Hard trägt aktiv zu Erhalt und Förderung der Biodiversität im Siedlungsraum bei. Die Dachflächen auf den sogenannten «Townhouses» bilden den langgezogenen, oberen Abschluss des Sockelbauwerks mit integriertem Tramdepot und liegen damit weit über dem Stadtboden und der Limmat. Diese ungestörten und weitläufigen Begebenheiten schaffen beste Voraussetzungen, um die Förderung und den Erhalt von spezifischen Insektenarten zu gewährleisten. Auf Basis von «Animal Aided-Design» werden die Bedürfnisse ausgewählter Zielarten sorgfältig berücksichtigt und in die Planung integriert. Eine bewusste und an die Zielarten angepasste Gestaltung der Umgebung mit den dafür nötigen Massnahmen trägt zur Verbesserung der Biodiversität an diesem Ort bei. Mit einer vielfältig strukturierten Dachlandschaft werden neben den für die Zielarten ausgerichteten Habitate auch Biotope für weitere Tier- und Pflanzenarten geschaffen. Als primäre Zielarten gelten 23 Wildbienenarten. Massgeschneiderte Lebensräume mit spezifischen Nahrungs- und Nistangeboten ermöglichen das ungestörte und sichere Etablieren der Wildbienenpopulationen. Ergänzend wird mit der Schaffung des Lebensraums für die Wildbienen auch Raum und Nistangebot für den Flussregenpfeifer, die Blauflügelige-Sandschrecke, die Kleine-Pechlibelle, die Mauereidechse und den Alpensegler geschaffen. 

Das Projekt von Morger Partner Architekten wurde im Rahmen des Swiss Arc Award 2026 eingereicht und von Nina Farhumand publiziert.

222311771