Wohnhäuser Stettbacherrain

6 von 453

 
8051 Zürich,
Schweiz

Veröffentlicht am 15. April 2026
Kooperative E45 GmbH
Teilnahme am Swiss Arc Award 2026

Projektdaten

Basisdaten

Lage des Objektes
Stettbacherrain 12-16, 8051 Zürich, Schweiz
Projektkategorie
Fertigstellung
05.2025
Links

Gebäudedaten nach SIA 416

Stockwerke
3 bis 5
Anzahl Kellergeschosse
2
Anzahl Wohnungen
45
Geschossfläche
6530 m²
Parkplätze
25

Beschreibung

Kontext
Das Quartier Stettbacherrain im Norden der Stadt Zürich ist eine Wohnbebauung von sehr hoher städtebaulicher und landschaftlicher Qualität, gelegen an der Schnittstelle zwischen Stadt und Natur. Das Areal wurde nach modernistischen Idealen entwickelt, die Grün und Licht als menschliche Grundbedürfnisse betrachten. Ohne den sentimentalen Versuch, die Bestandsbauten zu kopieren, bewahren die beiden Holzvolumen die räumlichen und natürlichen Qualitäten des Ortes. Diese Strategie erlaubt es, die für die Ruhe und Naturnähe des Quartiers wichtigen Blickbezüge sowie die grünen Durchgänge und das feinmaschige Naturgeflecht zwischen den Gebäuden zu erhalten.

Die beiden Neubauten zielen darauf ab, die visuelle Kontinuität zwischen Strasse und Wald zu wahren und zu stärken. Der Innenhof soll als Treffpunkt für das Quartier dienen und die Strasse mit der Vegetation im Osten verbinden, wo die Landschaft als natürlicher, ruhiger und geschützter Raum erhalten bleibt. Ein zentrales Thema des Projekts ist die Variation der Wohnungstypologien, die ein breites Spektrum an Bewohnern mit unterschiedlichen Bedürfnissen und Lebenskonzepten anspricht. In diesem Sinne unterscheiden sich die räumlichen Konfigurationen der beiden Gebäude stark, obwohl sie auf einem ähnlichen Tragsystem basieren.

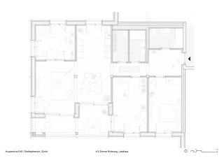
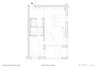
Wohnungstypologien
Die beiden Neubauten bieten im Gesamten 45 Wohnungen. Sie bestehen aus ähnlich grossen Volumen und erzielen durch deren Anordnung einen harmonischen, sanften Bezug zum bestehenden Terrain. Das nördliche Haus setzt sich aus zwei Volumen zusammen, beim südlichen gruppieren sich vier Volumen windmühlenförmig aneinander. Dank dieser Komposition entstehen zahlreiche Wohnungstypologien und -charaktere.

Die eingeschossigen Wohnungen des «Landhauses» im Süden sind geräumig und weitläufig. Das Haus bietet grosszügige, in alle Himmelsrichtungen ausgerichtete Räume. Diese Konstellation sichert einen hohen Eintrag an Tageslicht und stärkt die Blickbezüge zu den umliegenden Wiesen und dem Wald. Die Wohnungen sind um ein zentrales, von Norden her erschlossenes Treppenhaus herum gruppiert. In den Regelgeschossen befinden sich jeweils sechs Wohnungen, davon zum grössten Teil 4,5- und 3,5-Zimmer-Wohnungen. Jede Wohnung verfügt über eine überdachte Loggia, die sich innerhalb des Gesamtgebäudevolumens befindet und den räumlichen Abschluss der Fassade aufnimmt. Schatten bieten hier vertikale, textile Storen an der Fassadenstirn. 

Die schlanken Wohnungen im «Dorfhaus» hingegen sind nebeneinander aufgereiht, ähnlich wie Häuser an Dorf- oder Altstadtstrassen. Sie weisen in ihren Raumproportionen Verwandtschaften zu kleinen Häusern im Grünen auf. Einige der Wohnungen sind zweigeschossig: Vertikale Verbindungen innerhalb der Wohneinheiten ermöglichen hier die Umsetzung von Maisonetten. Eine originelle Treppe fungiert hier zum einen als Erschliessung und zum anderen als Schrankmöbel. Entlang der Südfassade befinden sich im Erdgeschoss Atelierwohnungen, die jeweils über einen eigenen Eingang und einen Vorplatz verfügen. Alle weiteren Wohnungen bieten einen nach Süden, zum Platz hin ausgerichteten, Balkon mit Markisen zur Beschattung. Beide Häuser bieten Attikawohnungen in verschiedensten Grössen. Jede dieser Wohnungen hat über Türen oder Schiebetüren einen direkten Zugang zur begrünten Dachterrasse.

Tragwerk
Untergeschoss, Erdgeschoss, Teile des 1. Obergeschosses und die Treppenhauskerne sind in Massivbauweise geplant. Die restlichen Geschosse werden, dem Puls der Zeit folgend, mit einem Holztragwerk aus Brettsperrholzdecken und Brettsperrholzwänden umgesetzt und sollen den aktuellen Wissenstand dieser Bauweise repräsentieren. Während das «Dorfhaus» in Schottenbauweise erstellt wird, so ist für das «Landhaus» der Skelettbau mit holzsichtigen Unterzügen und Stützen charakteristisch.

Gebäudehülle
Beide Häuser erhalten eine Holzfassade, die sich durch ihren feinen, bewussten Detaillierungsgrad, Vor- und Rücksprünge, vertikale Profile und horizontale Bänder auszeichnet. Die raumhohen, grosszügigen Fenster sind aus Holz/Metall, ebenso die Schiebefenster hin zu den Loggien und den Terrassen. Vor den Fenstern sind vertikale, textile Storen angeordnet, im Fensterrahmen befinden sich Lüftungsmodule, die ein angenehmes, nachhaltiges Raumklima gewährleisten. 

Das Projekt wurde von der Kooperative E45 für den Swiss Arc Award 2026 eingereicht und von Nina Farhumand publiziert.

217785675