Cabanotel – transformation de l’hôtel du col d’Hérens

 
1985 Ferpècle,
Suisse

Publié le 27 mars 2026
Cheseauxrey Associés Sàrl
Participation au Swiss Arc Award 2026

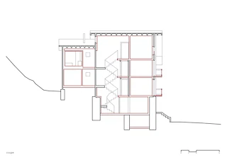
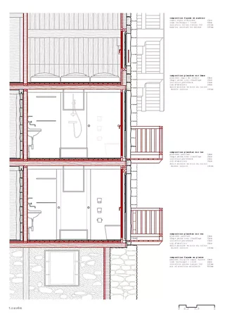
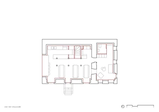
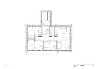
vue extérieure une chambre avant les travaux une chambre après les travaux la cathédrale dans le patrimoine la récupération des anciens planchers en mélèze le bétonnage du radier actif dans la partie réfectoire, cuisine, séjour la déconstruction en vue de la récupération de bois offert par la bâtisse une chambre en configuration jour une chambre en configuration nuit le réfectoire, un lieu de convivialité, de rencontres... la fenêtre magique, une invitation à la nature l'ancienne façade en moellons s'invite dans le réfectoire espace sanitaire dialoguant avec la chambre circulation horizontale en madriers existants de mélèze vue depuis le balcon

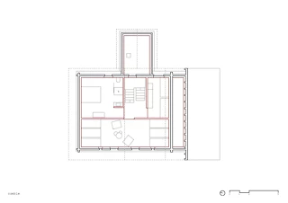
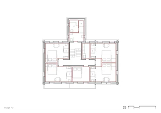
Données du projet

Données de base

Situation de l'objet
Route de Saleu 1, 1985 Ferpècle, Suisse
Catégorie de projet
Type de bâtiment
Achèvement
05.2025
Liens

Données du bâtiment selon SIA 416

Étages
de 3 à 5 étages
Nombre de sous-sols
1 étage
Surface de plancher
393 m²
Volume bâti
1150 m³
Coûts de construction (BKP 2)
2,0 mio. CHF
Places de parking
17
Nombre de lits
18

Description

L’aventure de la cabanotel est d’abord humaine. Elle naît de la rencontre entre un architecte passionné, guidé par le désir de créer des espaces justes, et une jeunesse aux mains d’or, capable de transformer la matière brute en lieux de vie. Ensemble, ils façonnent un projet qui dépasse la simple construction: une œuvre collective où le savoir-faire se mêle à l’enthousiasme, où l’expérience dialogue avec l’énergie, où chaque geste porte une part de sens. Ce projet raconte la confiance accordée à une génération qui veut apprendre, bâtir et laisser une empreinte positive. Il raconte aussi la générosité d’un créateur qui transmet, accompagne et ouvre la voie. Ainsi se dessine le symbole d’un territoire qui croit en son avenir, d’un patrimoine qui se réinvente, d’un lieu façonné par des mains et des cœurs. Au fil du chantier, quatre à six jeunes vivent sur place, à 1800 mètres d’altitude. Cette présence évite des transports inutiles et transforme le site en une véritable auberge espagnole. On y travaille avec sérieux, on y partage des repas simples, on y rit le soir venu. L’ambiance mêle concentration, camaraderie et passion pour le détail : chaque journée devient un moment d’apprentissage, chaque soirée un espace de cohésion. L’engagement environnemental est tout aussi central. Chaque élément récupéré devient une ressource, chaque pièce démontée retrouve une nouvelle vie. Le projet privilégie les matériaux locaux, en particulier le bois valaisan, dont la proximité réduit l’empreinte écologique tout en valorisant un savoir-faire régional. Le circuit court s’impose comme une évidence: bâtir autrement est possible. Le bâtiment puise son fonctionnement dans les ressources naturelles. L’eau de source, les lombrics et la phyto‑infiltration assurent le traitement des eaux grises et noires. Les 80 mètres carrésde panneaux photovoltaïques produisent l’électricité, tandis que l’eau chaude et le chauffage proviennent d’une cuisinière à bois complétée par 8 mètres carrés de panneaux thermiques. 

Le projet de Cheseauxrey Associés a été soumis dans le cadre du Swiss Arc Award 2026 et publié par Nina Farhumand.

214800730