Cabanotel – Umbau Hotel am Col d’Hérens

 
1985 Ferpècle,
Schweiz

Veröffentlicht am 27. März 2026
Cheseauxrey Associés Sàrl
Teilnahme am Swiss Arc Award 2026

Projektdaten

Basisdaten

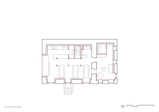
Lage des Objektes
Route de Saleu 1, 1985 Ferpècle, Schweiz
Fertigstellung
05.2025

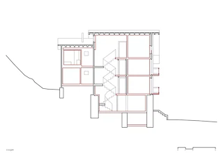
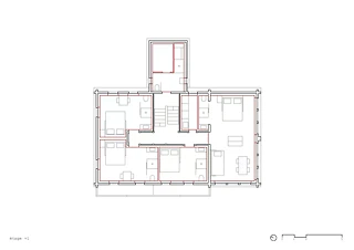
Gebäudedaten nach SIA 416

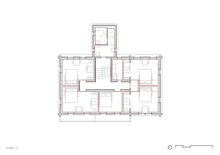
Stockwerke
3 bis 5
Anzahl Kellergeschosse
1
Geschossfläche
393 m²
Gebäudevolumen
1150 m³
Gebäudekosten (BKP 2)
2,0 Mio. CHF
Parkplätze
17
Anzahl Betten
18

Beschreibung

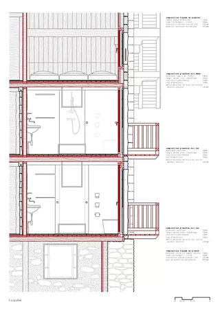
Das Abenteuer der Cabanotel ist in erster Linie menschlich. Es entsteht aus der Begegnung zwischen einem leidenschaftlichen Architekten, der vom Wunsch geleitet wird, gerechte Räume zu schaffen, und einer jungen Generation mit goldenen Händen, die in der Lage ist, rohes Material in lebendige Orte zu verwandeln. Gemeinsam gestalten sie ein Projekt, das über den blossen Bau hinausgeht: ein kollektives Werk, in dem Fachwissen auf Enthusiasmus trifft, Erfahrung mit Energie in Dialog tritt und jede Geste einen Sinn trägt. Dieses Projekt erzählt von dem Vertrauen, das einer Generation geschenkt wird, die lernen, bauen und einen positiven Fussabdruck hinterlassen möchte. Es erzählt auch von der Grosszügigkeit eines Schöpfers, der weitergibt, begleitet und den Weg öffnet. So entsteht das Symbol eines Territoriums, das an seine Zukunft glaubt, eines Erbes, das sich neu erfindet, eines Ortes, der von Händen und Herzen geformt wird. Im Laufe der Bauphase leben vier bis sechs Jugendliche vor Ort, auf 1800 Metern Höhe. Diese Präsenz vermeidet unnötige Transporte und verwandelt die Baustelle in ein echtes „Auberge espagnole“. Es wird ernsthaft gearbeitet, einfache Mahlzeiten geteilt und abends gelacht. Die Atmosphäre verbindet Konzentration, Kameradschaft und Leidenschaft für Details: Jeder Tag wird zu einem Lernmoment, jeder Abend zu einem Raum der Zusammengehörigkeit. Das Umweltengagement ist ebenso zentral. Jedes wiederverwendete Element wird zur Ressource, jedes demontierte Teil findet ein neues Leben. Das Projekt setzt auf lokale Materialien, insbesondere auf Walliser Holz, dessen Nähe den ökologischen Fussabdruck verringert und gleichzeitig regionales Know-how wertschätzt. Kurze Lieferketten sind eine Selbstverständlichkeit: Anders zu bauen ist möglich. Das Gebäude bezieht seine Funktionsweise aus natürlichen Ressourcen. Quellwasser, Würmer und Phytoinfiltration sorgen für die Aufbereitung von Grauwasser und Schwarzwasser. Die 80 Quadratmeter Photovoltaik-Paneele erzeugen Strom, während Warmwasser und Heizung von einem Holzherd, ergänzt durch 8 Quadratmeter thermische Solarpaneele, bereitgestellt werden.

Das Projekt von Cheseauxrey Associés wurde im Rahmen des Swiss Arc Award 2026 eingereicht und von Nina Farhumand publiziert.

214790756