Strafanstalt (EPCL) Crêtelongue

 
3977 Granges,
Schweiz

Veröffentlicht am 29. März 2026
Cheseauxrey Associés Sàrl
Teilnahme am Swiss Arc Award 2026

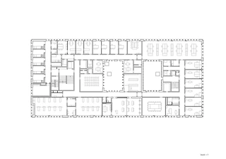
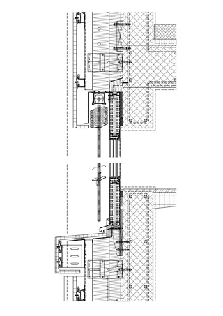
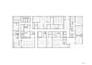
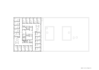
Ostfassade Nordfassade Südfassade Gesamtansicht des Areals Patio, 1. Obergeschoss Fassadendetail Fassadendetail Ostfassade Umkleide für Insassen Aufenthaltsraum der Insassen Zelle Haupttreppe Gang im Erdgeschoss Umkleide der Insassen

Projektdaten

Basisdaten

Lage des Objektes
Route du moulin 85, 3977 Granges, Schweiz
Fertigstellung
06.2023

Gebäudedaten nach SIA 416

Stockwerke
3 bis 5
Anzahl Kellergeschosse
1
Grundstücksfläche
239'845 m²
Geschossfläche
7026 m²
Nutzfläche
3927 m²
Gebäudevolumen
24'163 m³
Gebäudekosten (BKP 2)
37,7 Mio. CHF
Parkplätze
84
Anzahl Betten
80

Beschreibung

Das Projekt bestand darin, die neuen Hafträume zu errichten und gleichzeitig den Betrieb auf dem Gelände während der Bauarbeiten aufrechtzuerhalten. Das Programm ist in zwei separate Gebäude unterteilt: das Hauptgebäude mit 80 Zellen (Hochsicherheit) und ein Nebengebäude mit 24 Zellen (halboffene Haft). Das Hauptgebäude besteht aus einem horizontalen Sockel mit zwei Ebenen, in dem sich der Haupteingang, die Verwaltung, die Küche, Speisesäle und Behandlungsräume befinden, sowie einem erhöhten Teil mit vier Etagen, die jeweils 20 Zellen enthalten. Die vier Etagen gruppieren sich um einen zentralen Kern mit Aufzügen, Treppen, Duschen usw. Die Zellen liegen am äußeren Rand und sind über einen Flur erschlossen, der zugleich Aufenthaltsbereiche schafft. Die Anordnung der Zellen bietet eine gute Aussicht in die umgebende Landschaft. Eine regelmässige vertikale Gliederung strukturiert die Fassaden und definiert die Verteilung von verglasten und geschlossenen Flächen. Diese Elemente bestehen aus faserverstärktem Beton. Die Struktur erlaubt eine versetzte Anordnung der Öffnungen, ohne das Gleichgewicht der Fassade zu stören. Allen Insassen wird ein Ausblick in die Landschaft ohne die Sicht versperrende Gitterstäbe ermöglicht. Die geschlossenen Flächen bestehen aus Platten aus faserverstärktem Beton, während die verglasten Flächen aus einem fixen Teil und einem Öffnungsflügel aus verzinktem Stahl bestehen. Das Projekt mit Umgebung und Nebengebäuden wird noch bis 2027 fortgeführt.

Das Projekt von Cheseauxrey Associés wurde im Rahmen des Swiss Arc Award 2026 eingereicht und von Nina Farhumand publiziert.

215124988