Centre pénitenciaire (EPCL) de Crêtelongue

 
3977 Granges,
Suisse

Publié le 29 mars 2026
cheseauxrey associés sa
Participation au Swiss Arc Award 2026

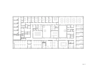
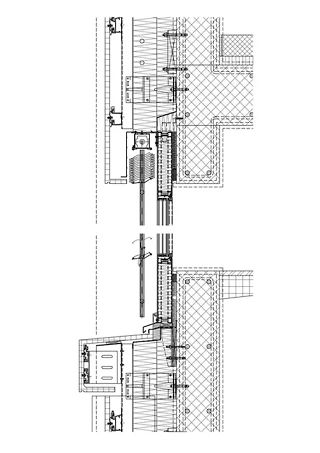
Façade ouest Façade nord Façade sud Vue générale du site Patio, 1er étage Détail façade Détail façade Façade ouest Cellule de réflexion Vestiaire détenus Foyer de jour détenus Cellule Escalier principal Couloir rez-de-chaussée Vestiaire détenus

Données du projet

Données de base

Situation de l'objet
Route du moulin 85, 3977 Granges, Suisse
Type de bâtiment
Achèvement
06.2023
Liens

Données du bâtiment selon SIA 416

Étages
de 3 à 5 étages
Nombre de sous-sols
1 étage
Surface de terrain
239'845 m²
Surface de plancher
7026 m²
Surface utile
3927 m²
Volume bâti
24'163 m³
Coûts de construction (BKP 2)
37,7 mio. CHF
Places de parking
84
Nombre de lits
80

Description

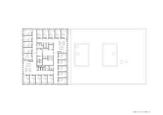
Le projet consistait à implanter les nouveaux espaces cellulaires tout en permettant de maintenir l’activité du site durant les travaux. Le programme est réparti en deux bâtiments distincts: le bâtiment principal (80 cellules, sécurité élevée) et un bâtiment secondaire (24 cellules, régime semi-ouvert). Le bâtiment principal se compose d’un volume horizontal de deux niveaux, abritant l’entrée principale, l’administration, la cuisine, les réfectoires et les locaux de soins, ainsi que d’un volume supérieur de quatre étages, chacun comprenant 20 cellules. Les quatre niveaux s’organisent autour d’un noyau central regroupant les ascenseurs, les escaliers et les locaux sanitaires. En périphérie, les cellules sont distribuées par un couloir qui génère également des espaces de vie. Leur disposition permet de bénéficier de vues dégagées sur le paysage environnant. Une trame verticale régulière structure les façades et définit l’alternance entre surfaces vitrées et pleines. Ces éléments sont réalisés en béton fibré. La trame permet un décalage des ouvertures sans perturber l’équilibre de la façade. Des cadrages sur le paysage sont offerts à l’ensemble des usagers, sans éléments de protection obstruant la vue. Les parties pleines sont constituées de panneaux en béton fibré, tandis que les parties vitrées se composent d’un vitrage fixe et d’un ouvrant plein en acier galvanisé. Une grille en caillebotis est disposée devant la partie ouvrante, remplaçant les barreaux des prisons traditionnelles. L’aménagement du site, incluant les abords et les bâtiments annexes, devrait se poursuivre jusqu’en 2027.

Le projet de Cheseauxrey Associés a été soumis dans le cadre du Swiss Arc Award 2026 et publié par Nina Farhumand.

222099564