Wenn Reuse den Entwurf mitbestimmt – über das LysP8 von Loeliger Strub
Die Transformation des Lysbüchel Areals im Norden von Basel hat mit einem Wohngebäude von Loeliger Strub Architektur in mehrfacher Hinsicht einen vorbildlichen Schlussstein erhalten. Das LysP8 bildet nicht nur das finale Element einer Hofrandbebauung. Es ist auch ein leuchtendes Beispiel für nachhaltiges Bauen, da zahlreiche Teile und Materialien wiederverwendet wurden. Und die räumliche Aufteilung der 27 Wohnungen zeigt, dass komfortables Wohnen auf kleinem Raum möglich ist.

Mit dem LysP8 wurde der Schlussstein für den Blockrand auf dem Lysbüchelareal gesetzt. | Foto: Federico Farinatti
Industrielle oder grossgewerbliche Areale, die umgenutzt werden könnten, gibt es in der Schweiz nicht mehr viele. Eines davon ist das Entwicklungsareal Volta Nord in Basel, eingebettet zwischen dem Bahnhof St. Johann und der französischen Grenzgemeinde St. Louis. Die Schienenstränge, die noch auf Google Maps verzeichnet sind, sowie die Strassennamen machen deutlich, dass es hier einmal ganz anders ausgesehen hat: Schlachthof, Lagerhallen, Verteilzentren. Vom sogenannten Lysbüchel Areal, Teil von Volta Nord, hatte Jahrzehnte lang der Detailhändler Coop Waren in die ganze Schweiz geliefert. Auch ein Coop Weinlager war hier, heute ein lang gestrecktes Wohngebäude, umgenutzt von Esch Sintzel Architekten und realisiert von der Stiftung Habitat. Die Stiftung zeichnet auch für das neue sechsgeschossige Wohngebäude LysP8 von Loeliger Strub Architektur verantwortlich – ein Haus, bei welchem Reuse nicht bloss ein Lippenbekenntnis ist, sondern tatsächlich viele Bauteile aus unterschiedlichen Quellen in den Bau integriert wurden und diese den Entwurf ganz massgeblich mitbestimmt haben. Nicht immer ein einfaches Unterfangen, wie im Folgenden noch deutlich wird.
Nachhaltig bauen mit einem Gestaltungsplan
Während im Norden von Volta Nord die SBB derzeit grossformatig entwickelt, ist das Lysbüchel Areal, das die Stiftung Habitat 2013 von Coop erworben hat, bereits fertiggestellt und eher kleinmassstäblich. Es präsentiert sich als bunte, collagiert wirkende Mischung aus Wohngebäuden und macht einen sehr belebten Eindruck. Nicht alle Gebäude auf dem Areal wurden allerdings von der Stiftung umgesetzt. Anstatt alles selbst zu entwickeln, wurde die Metron AG mit einem Gestaltungsplan beauftragt und das Gelände in der Folge in 15 Baufelder parzelliert. 12 von ihnen wurden an Genossenschaften im Baurecht abgetreten. Die Wohnbauträger mussten sich mit Konzepten bewerben, in denen sie sich der Nachhaltigkeit und einer gesunden Durchmischung verpflichteten. «Für mich ist der nachhaltigste Städtebau», sagt Marc Loeliger, «wenn sich die Bewohner*innen mit dem Ort identifizieren.»
Schlussstein im Blockrand
Loeliger Strub liegt an einer Ecke des Bauareals 7, das in der Tradition der Blockrandbebauung noch einmal in 8 Parzellen unterteilt wurde. Daher auch der Name LysP8: Lysbüchelareal Parzelle 8. «Als klar wurde, dass wir den Studienauftrag gewonnen haben, waren die anderen Wohnhäuser bereits weit in der Planung beziehungsweise im Bau», beschreibt Marc Loeliger die angetroffene Situation. Ein architektonisches Reagieren auf den Bestand war ebenfalls nicht möglich. «Weil auf der Parzelle 8 nichts mehr stand, mussten wir für das Gebäude eine neue Geschichte erfinden.» Dazu kamen strenge Vorgaben der Stiftung an die Bauweise und das Raumprogramm: ein möglichst hoher Anteil wiederverwendeter Bauteile, Holzbauweise und alles so weit als möglich demontierbar. Das konstruktive Resultat ist eine Modulbauweise, die weniger an der Fassade als im Innern ablesbar ist. Die Reuse-Vorgabe wurde zu einer Herausforderung für das Projekt, denn für gebrauchte Bauteile und Materialien gibt es nicht einfach einen Katalog. Grundsätzlich müssen auf der Suche nach Reuse-Elementen zuerst Gebäude ausfindig gemacht werden, die abgerissen oder erneuert werden sollen. Dann müssen die Bauteile den Anforderungen an Brandschutz und Sicherheit genügen und meist müssen sie zwischengelagert werden, was hohe Kosten verursachen kann. «Eine enge Zusammenarbeit mit Zirkular, einer Neugründung von in situ und Fachplanungsbüro für das Bauen im Kreislauf, war in diesem Fall für uns äusserst hilfreich, ja unabdingbar,» so Marc Loeliger. Doch selbst mit der kompetenten Fachplanung an ihrer Seite war es nicht immer einfach, zum richtigen Zeitpunkt an die passenden Bauteile zu kommen. Um dies genauer zu erläutern, wenden wir uns am besten dem Gebäude selbst zu.

Situation
Fassade aus Ziegeln
LysP8 steht an der Ecke der Weinlager- zur Lothringerstrasse. Die zu den Strassen hin ausgerichteten Fassaden sind bestimmt durch einen Wechsel von kleinteiligen und grosszügig wirkenden Elementen. Grosszügig ist das offene Treppenhaus nach Norden Richtung SBB Areal mit seinen weit auskragenden und damit einladend wirkenden Gemeinschaftsbalkonen. Feingliedriger sind die eigentlichen Fassaden mit den Fenstern, bei denen etwas Besonderes auffällt: Die weinroten Metallfensterläden sind doppelt übereinander angeordnet und lassen sich wie Stalltüren unabhängig voneinander öffnen in einer leicht geknickten Fensterlaibung. Und da sind die gebrauchten Dachziegel als Fassadenmaterial mit ihrer spezifisch graubraunen Patina. Im Erdgeschoss sind es terracottafarbige, frisch wirkende Ziegel, aber auch sie sind Reuse. Ziegel an der Fassade kennt man eigentlich nur von Bauernhäusern im Zürcher Weinland. Hier dienen sie seit alters her als Witterungsschutz. Beim LysP8 sind sie ein erster, aber sehr sprechender Hinweis darauf, dass bei diesem Gebäude mit einer Vielzahl an wiederverwendeten Materialien gearbeitet wurde: Die Gitterroste der Brüstungen und die Küchen sind ebenfalls Reuse. Die Eternitplatten an den Wänden des Treppenhauses stammen aus einem Produktionsüberschuss. Loeliger Strub haben die Auflage der Stiftung Habitat so ernst genommen, dass das Projekt immer wieder an die Verfügbarkeit und Beschaffenheit der erhältlichen Bauteile und Materialien angepasst werden musste. «So wollten wir zum Beispiel Tunnelholz für die Decken verwenden und hatten das Material schon in die Planung einbezogen und begonnen einzusammeln, als sich herausstellte, dass das Holz mit einem Pilz befallen war. Und bei den Eternitplatten reichte die Menge nicht aus, um sie im Treppenhaus und als Fassadenmaterial zum Innenhof im selben Ton zu haben.» So wurde eine Farbabfolge entwickelt, die vor Ort nur bei genauerem Hinsehen auffällt. Die Geschichte des Wohngebäudes ist also eine des Zusammentragens, Ansammelns und Integrierens in ein gestalterisches Gesamtkonzept, das kontrastreich, aber zugleich so weit wie möglich harmonisch aufeinander abgestimmt ist und nicht in Einzelteile zerfällt.

Die Laubengänge sind nicht bloss Erschliessung, sondern sollen Begegnungen und Austausch stimulieren. | Foto: Federico Farinatti
Erschliessungen als Begegnungsraum
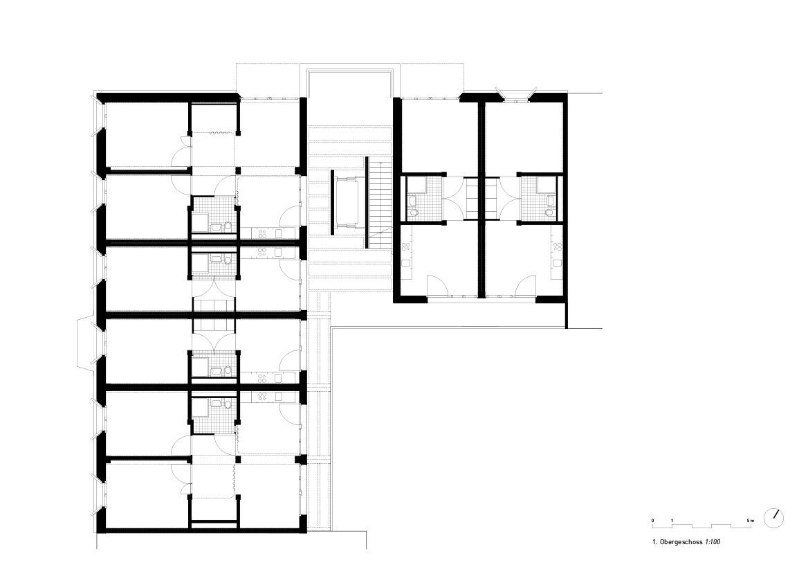
Das offene Treppenhaus mit dem Lift im Kern auf der adressgebenden Seite ist überaus grosszügig. Die Wohnungen sind von dort aus über Laubengänge erreichbar. «Für uns ist es kein Treppenhaus, sondern ein öffentlicher Raum, ein Begegnungsraum», betont Marc Loeliger. «Deshalb haben wir die Terrassen auch mit einer fix montierten Möblierung bestückt, damit man sich hier treffen kann.» Auch bautechnisch macht das offene Treppenhaus Sinn. So liess sich der Liftschacht aus Holz realisieren. «Und für den Wohnflächen- sowie für den Energieverbrauch muss es so nicht angerechnet werden.» An diesem Dezembertag ist es relativ kühl hier. Aber im Sommer, wenn die Bewohner*innen auf den Laubengängen ihre Abende geniessen, wird daraus ein lebendiger halböffentlicher Begegnungsraum.

Die grösseren Wohnungen wirken besonders grosszügig dank diagonaler Sichtbezüge. | Foto: Federico Farinatti
Kleine Wohnungen mit räumlichen Tricks
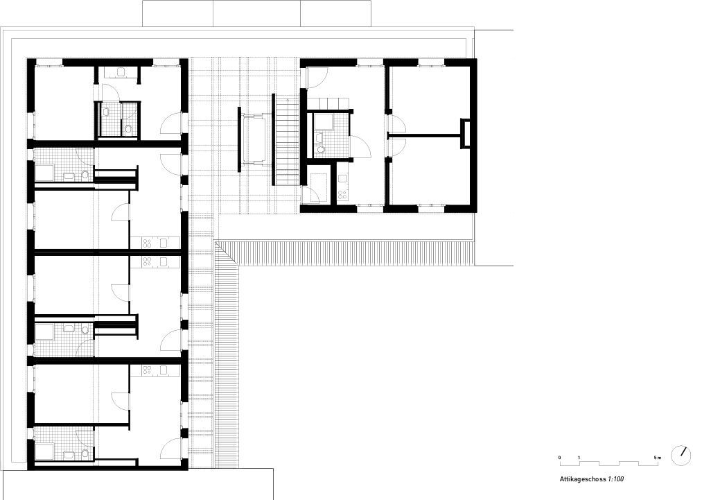
Die 27 Einheiten – bestehend aus 1,5-Zimmer-, 3,5-Zimmer- und zwei 4,5-Zimmerwohnungen – sind klein und sehr kompakt. Die kleinste 1,5-Zimmerwohnung misst lediglich 31 Quadratmeter. Dank der intensiven und vielseitigen Auseinandersetzung mit Wohnräumen an sich und bei anderen Projekten haben Loeliger Strub für die kleinen Wohnungen Lösungen gefunden, die einzigartig sind. So ist – ähnlich wie beim Wohnhaus an der Waffenplatzstrasse in Zürich – das Bad zwischen Wohnraum und Schlafzimmer in einer grossen Wandnische untergebracht. Diese lässt sich dank zweier raumhoher und -breiter Flügeltüren, um 90 Grad geöffnet, in einen Baderaum verwandeln. Gleichzeitig schliessen sie so Ess- und Schlafbereich ab und das Bad ist barrierefrei. Sind die Flügeltüren indes geschlossen, entsteht ein Gang zum Schlafzimmer. Und hält man sich im Wohn- oder Schlafbereich auf, sind die Flügeltüren zugleich das Mittel, um die Räume voneinander zu trennen.Die Wohnungen haben Bodenheizungen, die von Fernwärme gespeist werden. Ursprünglich war geplant, für den Bodenbelag einen Lehmguss zu realisieren, der sich am Ende seiner Lebensdauer rezyklieren liesse. Aus verschiedenen Gründen konnte dies nicht durchgehend umgesetzt werden. Die Küchen stammen aus einer Genossenschaft in Zürich. Als Kontrast zu den Fronten in gebrochenem Weiss haben Loeliger Strub neue hinzugefügte Elemente in einer dunkleren Farbe gehalten. Dies stört nicht, sondern stellt eher einen ästhetischen Mehrwert dar. Die gestrichenen Wandverkleidungen zeigen die Schrauben, die nicht ganz bündig in die Wand hineingeschraubt sind, weil sonst das Fermacell herausgedrückt würde. Das war anfangs nicht Absicht, hat sich im Bau so ergeben, aber wird so ebenfalls zu einem sichtbaren Zeichen für die Demontierbarkeit. Die Brettstapeldecken in einem Hausteil sind neu, im anderen sind es wiederverwendete Balkenträger. «Die Decken waren eine grosse Herausforderung», erzählt Marc Loeliger. «Wir haben mit Zirkular verschiedene Spuren verfolgt, um eine passende Quelle, auch Mine genannt, zu finden.» Das Tunnelholz kam, wie bereits erwähnt, nicht zur Anwendung, weshalb teilweise neue Decken eingebaut wurden. Was in den Wohnungen wie überall im Gebäude sichtbar bleibt, ist die Holzkonstruktion aus Stützen mit Unterzügen in einem vorgegebenen Raster. Massivholzwände, welche die Nasszellen begrenzen, garantieren mit stahlverstärkten Stützen an deren Enden die Queraussteifung des Gebäudes. So liesse sich alles bis auf die Steigzonen auf den Rohbau zurückbauen und dank der modularen Bauweise eine ganz andere Raumaufteilung realisieren.

Die natürlichen Holzoberflächen wurden mit farbigen Oberflächen kombiniert. | Foto: Federico Farinatti
Kino an lauen Sommerabenden
Im niederschwelligen begrünten Innenhof zeigt sich die fast schon brutalistische Buntheit der verschiedenen Wohngebäude. Auch wenn der Block dicht bebaut ist, wirken die Fassaden offen und einladend. Bei unserem Besuch war es Dezember und der Innenhof nicht belebt, aber man ahnt, dass es hier bei warmem Wetter lebendig zu und her geht. Das Wohngebäude von Loeliger Strub macht mit Stufen aus gebrauchten Gitterrosten hinunter auf den Rasen ein Angebot für die gesamte Hofgemeinschaft. Im Sommer kann man auf ihnen wie auf einer Tribüne sitzen, miteinander reden oder einen Film geniessen. So fügt sich das LysP8 trotz seiner Einzigartigkeit in den bunten Reigen der anderen zehn Wohngebäude im Blockrand ein. Ein sehr gelungenes Projekt, das einmal mehr aufzeigt, dass zirkuläres Bauen Herausforderungen mit sich bringt, dass aber mit viel Geduld und Flexibilität gute Fortschritte in die richtige Richtung gemacht werden. Bauen wird nie ganz Netto-Null-Anforderungen erfüllen können, aber mit zunehmendem Wissen und Vernetzung aller Akteur*innen wird das zirkuläre Bauen in Zukunft noch mehr an Bedeutung gewinnen und kann – wie im Fall von LysP8 – einer neuen Ästhetik in der Architektur den Weg bereiten.

Erdig anmutende Dachziegel, blaue Fensterlaibungen, rote Schlagläden, graue Eternitplatten – das LysP8 wirkt robust und doch zugleich heiter und kraftvoll. | Foto: Federico Farinatti
Der Text wurde von Christina Horisberger für das Swiss Arc Mag 2026–2 verfasst.
Bestellen Sie Ihr Exemplar unter: swiss-arc.ch/service/magazin-bestellen





