Haus für drei Familien

1 von 31

 
5024 Küttigen,
Schweiz

Veröffentlicht am 15. April 2026
Johannes Loretan Msc Arch ETH
Teilnahme am Swiss Arc Award 2026

Strassenansicht Nordost Strassenansicht Nordwest Südfassade mit Garten Ostfassade mit Baumbestand Terrasse 2.OG Treppe Wohnbereich Haus Mitte Wohnbereich von Treppe Haus Mitte Wohnbereich Eckhaus Galerie 1.OG Eckhaus Galerie 1.OG Haus Mitte Zimmer 1. OG Küche Familienbad Aus dem Leben - Vorplatz Aus dem Leben - Wohnbereich

Projektdaten

Basisdaten

Lage des Objektes
Stichweg 11, 5024 Küttigen, Schweiz
Projektkategorie
Gebäudeart
Fertigstellung
06.2025
Links

Gebäudedaten nach SIA 416

Stockwerke
3 bis 5
Anzahl Kellergeschosse
1
Anzahl Wohnungen
3
Grundstücksfläche
767 m²
Geschossfläche
750 m²
Nutzfläche
600 m²
Gebäudevolumen
2500 m³
Gebäudekosten (BKP 2)
3,1 Mio. CHF
Parkplätze
6

Beschreibung

In der Nähe zu Aarau errichten zwei Schwestern mit ihren Familien einen Neubau auf der ehemaligen Liegenschaft der Grosseltern. Das bestehende Einfamilienhaus mit Gewerbehalle wird rückgebaut und das Grundstück nachverdichtet, um Wohnraum für drei Familien und gemeinschaftliches Wohnen zu schaffen.

In der Wohnzone W3 gelegen, wird die Parzelle neu komplett ausgenutzt. Analog den benachbarten dreigeschossigen Mehrfamilienhäusern tritt der Neubau als ein kräftiges und schlichtes Volumen in Erscheinung. Erst auf den zweiten Blick, lässt sich die Unterteilung in drei nebeneinander organisierten Wohneinheiten, respektive Reihenhäuser, erahnen.
Zur Strasse hin ist der Baukörper, wie viele Bauten entlang der Strasse, leicht abgedreht, sodass die Parkierung vor dem Haus stattfinden kann. Die Carports werden von einem Vordach zusammengebunden und bilden rund um den gemeinsamen Vorplatz eine grosszügige Empfangsgeste.

Gemeinschaftliches Wohnen war intrinsische Motivation des Projekts und aus der räumlichen Nähe und Dichte sollten die positiven Aspekte hervorgehoben werden: Leben teilen, gegenseitiges unterstützen, Symbiosen finden und gezielt Privatsphäre und Rückzugsmöglichkeiten bieten.
So ist die Umgebung übergeordnet gestaltet und die jeweiligen Nutzungsbereiche nicht scharf gezeichnet. Die Kinder sollen ausdrücklich durch die Gärten springen dürfen. Auf dem Vorplatz lädt ein Picknicktisch zum Treffen und zu Gesprächen mit der Nachbarschaft ein. Eine Treppenrampe erschliesst einen grossen Veloraum im Untergeschoss und darüber wiederum die drei Häuser. In dessen Verlängerung enthält ein Technikraum die gemeinsame Gebäudetechnik, wie Erdsondenwärmepumpe, Warmwasserspeicher und PV-Anlage.
Als Stockwerkeigentümergemeinschaft sind alle drei Parteien angehalten sich einzugeben und das Zusammenleben aktiv zu gestalten.

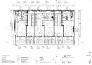
Die Wohneinheiten sind über 135m2 auf drei Geschosse organisiert, wobei im Erdgeschoss die öffentlicheren Wohnräume und die privaten Räume in den Obergeschossen angeordnet sind.
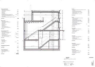
Die dienenden Räume im Erdgeschoss sind maximal komprimiert und lassen den Wohnbereich sich L-förmig über die ganze Gebäudetiefe erstrecken. Der doppelgeschossige Wohnraum südseitig lässt Tageslicht bis an die Nordfassade einfallen und versprüht, gleichwohl der kompakten Grundfläche räumliche Grosszügigkeit.
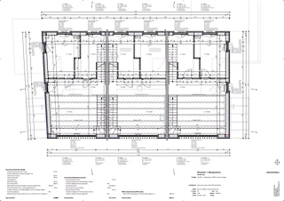
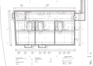
Über eine Kaskadentreppe erreicht man vom Wohnraum aus die oberen Geschosse. Die beiden Zimmer im 1. Obergeschoss werden über eine Galerie erschlossen, welche als Erweiterung dieser Räume dient und den Wohnraum aus einer neuen Perspektive erleben lässt. Im zweiten Obergeschoss liegen die Nasszellen und das Elternschlafzimmer. Der erweiterte Korridor kann offen als Büro oder Bibliothek genutzt, oder auch als viertes Zimmer abgetrennt werden. Eine Terrasse als zweiter privater Aussenraum bietet Rückzugsort für ruhige Sonnenstunden.

Das Gebäude ist oberirdisch als Holzbau konstruiert, wobei die beiden Gebäudetrennwände zwecks thermischer Speichermasse und schlanker Bauweise in Stahlbeton ausgeführt wurden. Sämtliche Konstruktionen sind unverkleidet und materialsichtig ausgeführt. Die Fassade wird von Lisenen und Friese strukturieren, welche gleichzeitig zwischen den verschiedenen Fensterformaten vermitteln. Die Aussenwand ist diffusionsoffen ausgeführt und die Holzfenster in keilverzinkter Industriequalität fügen sich nahtlos darin ein. Die verwendete Holzart Innen, wie auch Aussen ist Fichte. Die Wände sind mit Dreischichtplatten beplankt und die Brettsperrholzdecken besitzen eine analoge Oberfläche. Der doppelgeschossige Wohnbereich erfährt einen Wechsel der Tragstruktur und wird durch eine sichtbare Balkendecke ausgezeichnet. Die Tragstruktur wird in den Raum umgelegt, wodurch im darüberliegenden Geschoss mehr Höhe für den Terrassenaufbau zur Verfügung steht.
Geschliffene Anhydritböden kontrastieren die hölzernen Oberflächen, enthalten die Fussbodenheizung und bieten direkte thermische Speichermasse in den Heiz-oder Kühlperioden. Metallbauarbeiten in Schwarzstahl oder roter Farbe setzen punktuell Akzente.

Johannes Loretan Msc Arch ETH

217465477