Mehrfamilienhaus mit Blick bis zum Gempen

 
4104 Oberwil,
Schweiz

Veröffentlicht am 24. März 2026
Ferrara Architekten AG
Teilnahme am Swiss Arc Award 2026

Aussenansicht von der Westseite Aussenansicht nach Südosten Ausblick auf die Fassadenansicht Impression Innen – Attikawohnung Impression Innen – Cheminée Impression Innen – Gäste-WC

Projektdaten

Basisdaten

Lage des Objektes
Neuwilerstrasse 23, 4104 Oberwil, Schweiz
Projektkategorie
Fertigstellung
12.2025
Links

Gebäudedaten nach SIA 416

Anzahl Wohnungen
5
Geschossfläche
1095 m²
Nutzfläche
703 m²
Gebäudevolumen
3380 m³
Gebäudekosten (BKP 2)
4,7 Mio. CHF
Parkplätze
8

Beschreibung

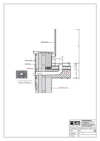
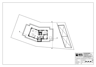
Die Bebauung liegt an zentraler und ruhiger Lage in Oberwil und ist durch das Tram mit der Stadt Basel verbunden. Das freistehende Mehrfamilienhaus mit insgesamt fünf Eigentumswohnungen entstand auf einem leicht abfallenden Grundstück. Durch die Lage bietet das Projekt einerseits die Ruhe des Landlebens, andererseits die Vorteile der Stadtnähe. Weite Grünflächen, eine gute Infrastruktur mit Schulen, Kindergärten und öffentlichen Verkehrsmitteln runden das Bild ab. Das Mehrfamilienhaus ist zentral in der Parzelle situiert. Die Nachbarparzelle im Westen ist nicht bebaut, was einen Ausblick für jede Wohnung zum Garten ermöglicht. Die fünf gedeckten Stammparkplätze sowie die zwei Besucherparkplätze befinden sich entlang der Neuwilerstrasse und sind mittels einer Pergola mit dem Hauseingang verbunden. Der Zugang ist flach und kann schwellenlos bis ins Haus begangen werden. Die Pergola sowie der Grünbereich zwischen Gehweg und Haus bewahren die Privatsphäre der Wohnungen im Erdgeschoss. Das Grundstück wird ringsherum von einheimischer Bepflanzung begleitet, die durch lockere Neupflanzungen ergänzt wird. Jede Wohnung wird durch die Morgen- und Abendsonne durchleuchtet. Die moderne Fassade besteht aus einem Zusammenspiel von «harten» Schiefer-Elementen und «weichen» hölzernen Füllungen, die Wärme vermitteln. Das Fassadenkonzept bietet ein Maximum an Grundrissindividualität. Die Schieferfassade wird durch Holzelemente unterbrochen, in welchen die Fenster liegen. Es handelt sich um eine hochwertige, unterhaltsarme Fassade. Die Anordnung der Fenster innerhalb des Bereichs der Holzelemente steht den Nutzer*innen frei, wodurch eine hohe Individualität der Raumaufteilung entstand. Über den gedeckten Eingangsbereich wird das Treppenhaus betreten. Von hier aus können alle Geschosse zu Fuss oder mit dem Lift erreicht werden. Die Innenräume bestechen durch ihre reduzierte Formsprache und die Natürlichkeit der verwendeten Materialien.

Hervorzuheben ist ausserdem die durchdachte Architektur: Jede Wohnung profitiert von Morgen- und Abendsonne, während die Kombination aus Schiefer und Holz in der Fassade sowohl Modernität als auch Wärme vermittelt. Besonders einzigartig ist die hohe Individualisierbarkeit der Grundrisse, da die Fensteranordnung flexibel gestaltet werden kann. Der Wechsel in der Bauphase von einer Kombination aus «harten» Metallelementen und Holz hin zu Naturschiefer und Holz hat den Gesamteindruck des Gebäudes grundlegend verändert.  

Das Projekt von Ferrara Architekten wurde im Rahmen des Swiss Arc Award 2026 eingereicht und von Nina Farhumand publiziert.

214395006