Transformation et rénovation du presbytère

 
5603 Staufen,
Suisse

Publié le 16 avril 2026
Castor Huser Architekten AG
Participation au Swiss Arc Award 2026

Données du projet

Données de base

Situation de l'objet
Staufberg 1, 5603 Staufen, Suisse
Catégorie de projet
Type de bâtiment
Achèvement
10.2024

Données du bâtiment selon SIA 416

Étages
2 étages
Nombre de sous-sols
1 étage
Nombre d'appartements
2

Description

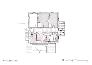
Le presbytère du Staufberg fait partie d’un ensemble sacré composé de l’église évangélique réformée, de l’ancien ossuaire, de la maison du lavoir et de la fontaine ainsi que de la grange paroissiale. Cet ensemble bâti domine le Staufberg et demeure visible à des kilomètres à la ronde depuis la plaine, repère profondément ancré dans le paysage et dans la mémoire collective de la région. Construit au XVIe siècle, l’édifice présente une histoire architecturale complexe. De la phase fondatrice gothique, peu d’éléments visibles subsistent. Des traces archéologiques du bâti, telles qu’un joint de construction et une fenêtre gothique murée, indiquent un agrandissement vers le nord aux XVIe ou XVIIe siècles. La transformation la plus marquante eut lieu en 1725: le nombre d’étages fut réduit de trois à deux et la façade recomposée selon un ordonnancement baroque aux travées régulières. Les pièces hautes de plafond ainsi que les lambris à pilastres des salles orientées au sud datent de cette époque et déterminent encore aujourd’hui le caractère de la maison.

Avant les travaux, le bâtiment servait de logement à une famille de pasteur, conçu comme un appartement de huit pièces réparti sur deux niveaux. Dans un paysage ecclésiastique en mutation, la maîtrise d’ouvrage décida, en accord avec les autorités de protection du patrimoine, de diviser l’ensemble en deux appartements indépendants: un trois-pièces au rez-de-chaussée et un cinq-pièces à l’étage. Une structure développée au fil des siècles porte en elle sa propre hiérarchie: d’un côté, les pièces de représentation au sud avec enfilade, lambris et poêles en faïence; de l’autre, l’extension nord de 1725 avec les espaces secondaires. Le projet reprend cette organisation et la prolonge. Tous les nouveaux aménagements ont été regroupés dans la partie nord du bâtiment. Au rez-de-chaussée, l’ancienne cuisine a été réduite afin d’aménager un réduit doté de tous les raccordements nécessaires à un futur complément. À l’étage, le vaste corridor accueille la nouvelle cuisine, libérant ainsi l’espace nécessaire à une salle d’eau supplémentaire entre les pièces secondaires orientées à l’est, sans modifier de manière significative la typologie d’habitation d’origine. Les pièces au sud ont été largement préservées de toute intervention fonctionnelle.

La séparation claire entre les niveaux et la construction massive ont permis la division en deux logements sans interventions structurelles importantes. L’escalier historique en chêne a pu être conservé comme cage d’escalier commune sans transformations majeures. De nouvelles portes coupe-feu avec éléments vitrés satinés constituent les compartiments incendie requis, sans interrompre la continuité visuelle des corridors de distribution. Derrière les vitrages, on devine encore la profondeur des longs couloirs. Les fenêtres non protégées ont été remplacées par de nouvelles fenêtres baroques, structurées par une traverse saillante avec croisillons. Cette composition corrige la forte verticalité des ouvertures et s’intègre à l’ordonnance baroque de la façade.

Ce qui distingue ce projet d’une simple rénovation réside dans le traitement de ce qui n’a pas été modifié. La décision de ne pas intervenir à certains endroits a été tout aussi déterminante pour la conception que les mesures elles-mêmes. Cela apparaît avec le plus d’évidence dans les pièces orientées au sud. Les lambris muraux et les armoires encastrées du XVIIIe siècle ont été décapés puis traités à la peinture à l’huile de lin. Le concept chromatique repose sur des sondages ayant mis au jour, couche après couche, les teintes d’origine. Chaque pièce s’est vu attribuer sa propre combinaison de couleurs, faisant de l’enfilade des salles au sud une succession de tons soutenus et harmonieusement accordés. Cette démarche associe méthode de conservation patrimoniale et expérience spatiale.

Les planchers en bois existants ont été restaurés avec soin, légèrement poncés puis retraités. Là où un remplacement s’imposait, le choix s’est porté sur un parquet à longues lames avec frise d’accompagnement, une interprétation contemporaine inspirée des modèles historiques sur le plan typologique. L’amélioration énergétique a suivi le même principe. Une isolation par l’extérieur a été exclue pour des raisons de protection du patrimoine. Les embrasures de fenêtres ont été isolées avec de la laine de mouton, matériau perspirant compatible avec la structure murale historique et ne nécessitant aucune intervention irréversible.

Le projet de Castor Huser Architekten a été soumis dans le cadre du Swiss Arc Award 2026 et publié par Nina Farhumand.

217594280