AUBA – Reiheneckhaus

 
4059 Basel,
Schweiz

Veröffentlicht am 04. April 2026
Jaeger Koechlin GmbH BSA SIA
Teilnahme am Swiss Arc Award 2026

Projektdaten

Basisdaten

Projektkategorie
Gebäudeart
Fertigstellung
10.2025
Links

Gebäudedaten nach SIA 416

Stockwerke
2
Anzahl Kellergeschosse
1
Anzahl Wohnungen
1

Beschreibung

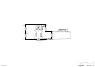
Das Projekt «Auf dem Hummel» ersetzt das südliche Ende eines Ensembles von drei Reihenhäusern aus dem Jahr 1929. Das bestehende Gebäude wurde bis auf die Garage zurückgebaut, da Erweiterbarkeit und bauliche Qualität nicht gegeben waren. Der Neubau übernimmt die städtebauliche Typologie der Hausgruppe und erhält den verbindenden Grünraum zwischen den Gebäuden. Straßenseitig folgt er der Fassadenflucht, der seitliche Abschluss des Ensembles wird städtebaulich betont. Auf der engen Parzelle entstand ein schmales, langgestrecktes, dreigeschossiges Reiheneckhaus in Holzbauweise; das Untergeschoss ist minimal in Massivbau ausgeführt. Das Erdgeschoss öffnet sich längsorientiert zum Hof und schafft einen schmalen, spannungsvollen Raum, während die Obergeschosse kleinteiligere, aber grosszügige Räume mit drei Meter hohen Decken und raumhohen Türen bilden. Differenzierte Blickachsen und Raumfolgen erzeugen flexible und abwechslungsreiche Innenräume.

Der Standort, die enge Parzelle und der historische Kontext der Nachbarschaft prägten den Entwurf wesentlich. Die Bauaufgabe bestand darin, maximale Raumqualität bei minimalem Eingriff in den Bestand und die Parzelle zu erreichen. Die Inspiration lag in der Verbindung von klarer Holzbauweise mit differenzierten Raumerlebnissen und einer modernen Interpretation der traditionellen Reihenhaustypologie. Bauherrschaft und spätere Nutzer*innen wurden eng in die Entwicklung eingebunden; ihre Vorstellungen zu Flexibilität, Materialität und Nutzung flossen direkt in den Entwurf ein. Die Fassade ist dunkelgrün, filigran und papierartig; Vordächer sind ein- und ausgeschnitten sowie aufgeklappt. Fensterbreiten und Details sind im Obergeschoss einheitlich, was eine ruhige, homogene Wirkung erzeugt. Die Konstruktion folgt dem Prinzip des einfachen Bauens: Rohbauflächen dienen weitgehend als Endoberfläche, Innenwände und Türen bestehen aus Dreischichtplatten, Unterteilungen lassen sich flexibel mit Vorhängen gestalten.

Eine filigrane, farblich akzentuierte Stahltreppe verbindet die Geschosse. Pragmatische Lösungen, wie die auf dem Dach installierte Wärmepumpe als sichtbarer, zeitgemässer «Kamin», zeigen den Umgang mit aktuellen energetischen Trends. Der Garten ist einfach gestaltet, bietet jedoch vielseitige Nutzungsmöglichkeiten und eine direkte Verbindung zur Terrasse im ersten Obergeschoss. Das Projekt zeigt eine konsequente Umsetzung von einfachen Materialien und klaren konstruktiven Prinzipien, die zugleich hohe architektonische Qualität sichern. Die enge Verzahnung von Entwurf und Ausführung aus einer Hand ermöglichte eine optimale Abstimmung von Materialien, Konstruktion und Raumkonzept. Die Holzbauweise als zentrales Material trug entscheidend zum Erfolg des Bauwerks bei. Im Vergleich zu bisherigen Bauten unseres Büros reiht sich das Projekt in die Auseinandersetzung mit schmalen Parzellen, Holzbau und flexibilisierten Innenraumkonzepten ein. Von ersten Entwurfsfassungen bis zum fertigen Gebäude wurden insbesondere Fassadengestaltung und Raumorganisation an Standortbedingungen, Nutzerwünsche und technische Anforderungen angepasst.

Die Fassade ist dunkelgrün, filigran und papierartig; Vordächer sind ein- und ausgeschnitten sowie aufgeklappt. Fensterbreiten und Details sind im Obergeschoss einheitlich, was eine ruhige, homogene Wirkung erzeugt. Die Konstruktion folgt dem Prinzip des einfachen Bauens: Rohbauflächen dienen weitgehend als Endoberfläche, Innenwände und Türen bestehen aus Dreischichtplatten, Unterteilungen lassen sich flexibel mit Vorhängen gestalten. Eine filigrane, farblich akzentuierte Stahltreppe verbindet die Geschosse. Pragmatische Lösungen, wie die auf dem Dach installierte Wärmepumpe als sichtbares, zeitgemäßes «Kamin», zeigen den Umgang mit aktuellen energetischen Trends. Der Garten ist einfach gestaltet, bietet jedoch vielseitige Nutzungsmöglichkeiten und eine direkte Verbindung zur Terrasse im ersten Obergeschoss. Das Projekt zeigt eine konsequente Umsetzung von einfachen Materialien und klaren konstruktiven Prinzipien, die zugleich hohe architektonische Qualität sichern. Die enge Verzahnung von Entwurf und Ausführung aus einer Hand ermöglichte eine optimale Abstimmung von Materialien, Konstruktion und Raumkonzept. Die Holzbauweise als zentrales Material trug entscheidend zum Erfolg des Bauwerks bei. Im Vergleich zu bisherigen Bauten unseres Büros reiht sich das Projekt in die Auseinandersetzung mit schmalen Parzellen, Holzbau und flexibilisierten Innenraumkonzepten ein. Von ersten Entwurfsfassungen bis zum fertigen Gebäude wurden insbesondere Fassadengestaltung und Raumorganisation an Standortbedingungen, Nutzerwünsche und technische Anforderungen angepasst.

 Das Projekt von Jaeger Koechli wurde im Rahmen des Swiss Arc Award 2026 eingereicht und von Nina Farhumand publiziert.

222914619