Willy-Brandt-Strasse Hamburg

 
20457 Hamburg,
Deutschland

Veröffentlicht am 22. April 2026
Christ & Gantenbein AG

Prominent positioniert am Brückenkopf des Nikolaifleet-Kanals. Sicht vom Fleet aus: Der Büroteil am Brückenkopf ist höher als der Wohntrakt und verfügt über ein dichteres Fassadenraster, während der Teil mit den Wohnungen breitere Erker aufweist. Der Blick von Osten entlang der Willy-Brandt-Strasse. Das Gebäude mit dem Glockenturm der Nikolaikirche im Hintergrund. Fassadendetail: Halbkreisförmige, mit rotem Backstein verkleidete Pilaster gliedern die Fassade rhythmisch. Der Blick von Westen entlang der Willy-Brandt-Strasse.

Projektdaten

Basisdaten

Lage des Objektes
Willy-Brandt Strasse 69, 20457 Hamburg, Deutschland
Fertigstellung
05.2025
Links

Gebäudedaten nach SIA 416

Stockwerke
6 bis 10
Anzahl Kellergeschosse
1
Geschossfläche
9070 m²

Beschreibung

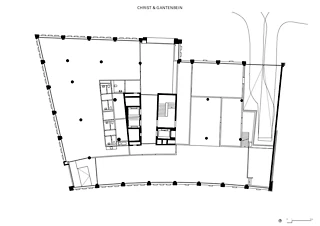
Der Standort befindet sich im Zentrum Hamburgs, zwischen der sechsspurigen Willy-Brandt-Strasse und dem Nikolaifleet. An markanter Stelle am Brückenkopf der Holzbrücke gelegen, schliesst der Neubau an eine Reihe kleiner historischer Häuser an, deren Geometrie vom Verlauf des Kanals geprägt ist. Zur Strassenseite hin öffnet sich das Gebäude zum Hopfenmarkt — einem repräsentativen, rechteckigen Platz umgeben von einer eklektischen Mischung verschiedener Baustile. Im Hintergrund verankert der Glockenturm der Nikolaikirche den Ort im historischen und städtischen Gefüge Hamburgs.

Das Gebäude setzt sich aus zwei klar voneinander unterscheidbaren Volumen zusammen: Der Büroteil am Brückenkopf ist höher als der Verbindungsbau mit  teilweise Wohnnutzung, um die Ecksituation zu betonen. Er verfügt über ein dichteres Fassadenraster, während der Teil mit den Wohnungen breitere Erker aufweist. Die Proportionen der Pilaster und die Breite der Fenster spielen eine zentrale Rolle für ein einheitliches Gesamtbild, während der Einsatz von glasierten Ziegeln, Beton und Naturstein zur differenzierten Oberflächengestaltung beiträgt. Die aussenliegende, tragende Struktur aus Beton ist mit Ziegelsteinen verkleidet. Die Fassade wird von halbrunden Backsteinlisenen geprägt, die ihr eine skulpturale Qualität verleihen, während die zurückversetzten Fenster die Tiefenwirkung noch verstärken.

Zwei Haupteingänge – einer für die Büros, einer für die Wohnungen – orientieren sich zum angrenzenden Hopfenmarkt. Das zentrale Bürotreppenhaus ermöglicht eine flexible Aufteilung der Flächen, die von Tageslicht von zwei bis drei Seiten profitieren. Die Wohnungen sind nach Süden zum Kanal hin ausgerichtet und bieten mit ihrem Blick aufs Wasser Privatsphäre und Ruhe. Im Erdgeschoss schaffen ein Restaurant und multifunktionale Bereiche entlang des Fleets eine Verbindung zum städtischen Leben.

Während sich Hamburg weiterentwickelt, spielt die Architektur eine zentrale Rolle in der Verbindung von Vergangenheit und Zukunft. Die Materialien, die Gestaltung und der Ausdruck des Gebäudes tragen zu dieser Intention bei. Die Integration traditioneller Elemente, die auf zeitgenössische Weise neu interpretiert werden, schafft eine spezifische Ästhetik, die ein Gefühl von Würde und Dauerhaftigkeit vermittelt, aber auch einen Hauch urbaner Eleganz. Das Ergebnis ist ein Bauwerk, das Hamburgs Geschichte respektiert, gleichzeitig Raum für zukünftige Bedürfnisse bietet und zur fortlaufenden Transformation der urbanen Identität der Stadt beiträgt.

Inspiriert von Hamburgs maritimer Vergangenheit fängt das Projekt das Wesen der Stadt ein und reagiert dabei sowohl auf die historischen Fleetgebäude als auch auf die zeitgenössische Architektur der Umgebung. Mit einer Betonstruktur, die mit lokal hergestellten, handgefertigten Ziegeln verkleidet ist, oszilliert das Gebäude zwischen traditionellem Handwerk und abstrakter skulpturaler Form. Diese zeitgenössische Interpretation von Hamburgs reicher Bautradition setzt einen neuen Impuls für die städtebauliche Entwicklung der Gegend und des angrenzenden Hopfenmarkts. Durch die Einbindung historischer Bezüge trägt das Projekt dazu bei, den kontinuierlichen Wandel der Stadt mitzugestalten und zugleich seine historische Identität zu bewahren.

Der Neubau vermittelt zwischen traditionellen Fleethäusern und den grossmassstäblichen, zeitgenössischen Bebauungen entlang der Willy-Brandt-Strasse: dabei entsteht ein markanter, souveräner Baukörper, der dem Platz Stabilität verleiht, indem er die städtischen Achsen betont und den Blick in Richtung Hafen rahmt — als Ergänzung zu den Plänen der Stadt zur Aufwertung des öffentlichen Raums rund um den Hopfenmarkt. Die Rücksprünge und Versätze des Gebäudes nehmen präzise Bezug auf die Ecksituation. Bauvolumen, Fassadengliederung und Massstab reagieren auf die benachbarten Gebäude und formen so eine Art städtebauliche Plastik, die den bestehenden Kontext respektiert. Halbrunde Lisenen aus rotem Backstein ordnen die Fassade rhythmisch und nehmen gleichzeitig Bezug auf die lokale Tradition des Backsteinexpressionismus des 20. Jahrhunderts.

Besondere Sorgfalt galt der Detailgestaltung der Fassade, insbesondere dem Backsteinmauerwerk. Die Ziegel stammen aus lokaler Produktion. Der Ton für die Ziegel stammt aus der Elbmarsch und wird vom familiengeführten Ziegelwerk Rusch in einem traditionellen Ringofen gebrannt. Dieses 1881 gegründete Werk ist das letzte von über 100 Ziegelbrennereien, die in der zweiten Hälfte des 19. Jahrhunderts zwischen Hamburg und Cuxhaven existierten. Das handwerkliche Wissen und die Erfahrung im Umgang mit dem natürlichen Material werden von Generation zu Generation weitergegeben.

Farbe und Textur der Fassade waren entscheidend für die gestalterische Intention. Der Grünton für die Fensterrahmen bildet einen eleganten Kontrast zu den roten Ziegeln und verleiht dem Gebäude eine zurückhaltende, edle Erscheinung. Ebenso bedeutend war die tragende Struktur: Das Fundament verläuft nicht linear, sondern punktuell– mit tief in den Boden getriebenen Trägern, die der Lage am Wasser gerecht werden. Der Rhythmus der Stützen folgt der natürlichen Biegung des Ufers und den Anforderungen des Standorts.

Das Projekt von Christ & Gantenbein wurde im Rahmen des Swiss Arc Award 2026 eingereicht und von Nina Farhumand publiziert.

218707316