Espace d’apprentissage The Sphere

 
8620 Wetzikon,
Suisse

Publié le 01 avril 2026
Dost Architektur GmbH
Participation au Swiss Arc Award 2026

Données du projet

Données de base

Situation de l'objet
Schellerstrasse 18, 8620 Wetzikon, Suisse
Catégorie de projet
Type de bâtiment
Achèvement
02.2026

Données du bâtiment selon SIA 416

Surface utile
800 m²
Nombre d'élèves
99

Description

Situation initiale
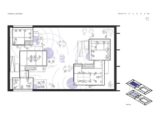
L’existant se caractérise par un béton apparent de haute qualité, associé à des accents en chêne. Au centre des étages supérieurs se trouvent deux salles de sport, complétées par des couloirs d’évacuation et des salles de classe orientées vers les façades. L’analyse met en évidence le potentiel particulier des différentes qualités spatiales: des espaces en béton compacts, au caractère archaïque, pour les salles de classe, s’opposent à une salle de sport généreuse, traversant plusieurs niveaux, conçue comme un grand volume en bois largement vide. Grâce aux relations visuelles depuis les couloirs, celle-ci relie les étages et génère, au sein d’une architecture par ailleurs sobre, une sensation d’espace fluide.

Le projet s’appuie sur cette opposition comme un jeu entre retrait et communauté: les espaces en béton servent de lieux de retrait pour les élèves et les enseignants, tandis que la salle de sport centrale, en tant que lieu de rencontre, remet en question l’enseignement frontal traditionnel. Dans l’une des deux salles de sport prend place un paysage d’apprentissage ouvert. En tant que noyau vertical s’étendant sur deux niveaux, doté de fenêtres donnant sur les couloirs du 2e étage, il offre des conditions idéales pour The Sphere, qui exploite la hauteur sous plafond et les connexions visuelles afin de devenir un élément intégrateur du bâtiment au-delà des niveaux.

Approche
Le processus de planification s’est déroulé en étroite collaboration avec la direction de l’école et le corps enseignant; les expériences issues d’espaces d’apprentissage comparables, comme la Loft School Uster, ont nourri et enrichi la conception. En tant qu’intervention temporaire dans un bâtiment loué, toutes les mesures ont dû être coordonnées avec le propriétaire et adaptées aux exigences de protection incendie et aux voies d’évacuation. L’objectif était de concilier les besoins pédagogiques contemporains avec les potentialités architecturales du bâtiment.

Mise en œuvre – The Sphere
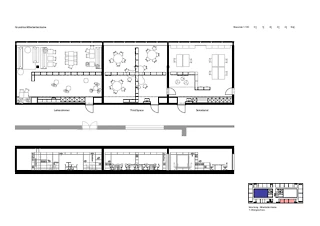
Le nouvel espace éducatif polyvalent associe innovation pédagogique et contraintes structurelles du lieu. Tous les aménagements ont été conçus comme légers, modulaires et entièrement démontables. Une attention particulière a été portée à l’honnêteté et à la simplicité des matériaux. La nouvelle surface d’apprentissage devait conserver un caractère temporaire tout en offrant une flexibilité maximale d’usage. La réutilisation des matériaux après leur utilisation actuelle a été intégrée dès la conception. Le sol sportif existant a été protégé par des panneaux en contreplaqué de bouleau. De nouvelles structures en poteaux d’épicéa et panneaux contrecollés, ainsi que des escaliers et garde-corps en acier galvanisé, forment une construction robuste et réversible, optimisée pour la répartition des charges. Des panneaux en feutre améliorent l’acoustique et servent de surfaces d’affichage. L’éclairage existant est conservé et complété par un concept lumineux ciblé sous les galeries, garantissant un éclairage homogène de l’ensemble des espaces d’apprentissage. Sur le plan formel, un concept clair de couleurs et de matériaux structure l’atmosphère. Le bleu agit comme couleur directrice, soulignant murs, sous-faces de plafond et rideaux, allégeant ainsi la matérialité dominée par le bois et créant un contraste volontaire avec l’architecture en béton du bâtiment scolaire. Des meubles en orange brûlé apportent des accents chaleureux. Des éléments graphiques tels que la séquence de lettres «S-P-H-E-R-E» remplissent des fonctions à la fois d’orientation et de composition, tout en reprenant, par des motifs circulaires, le concept de goutte d’eau en référence à l’usage initial du lieu. Le mobilier est entièrement pensé pour la flexibilité: tables réglables en hauteur et pliables sur roulettes, chaises empilables et mobiles, poufs, écrans mobiles, tableaux blancs et panneaux en feutre permettent différentes formes d’enseignement. Des estrades avec rangements intégrés, des tables hautes et des éléments mobiles autorisent des reconfigurations rapides; le mobilier non utilisé peut être stocké dans l’ancien local d’équipement. Des rideaux permettent de créer des espaces séparés selon les besoins.

Impact
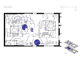
La transformation de l’ancienne salle de sport en paysage d’apprentissage ouvert crée un espace éducatif polyvalent qui concilie innovation pédagogique et contraintes d’un bâtiment existant. Parallèlement, une partie des espaces existants a été aménagée comme lieux de retrait et équipée de manière cohérente. Cette opposition spatiale introduit une respiration dans le bâtiment. Grâce à The Sphere, l’école professionnelle tire pleinement parti des qualités du lieu: des salles de classe calmes et propices à la concentration pour l’enseignement frontal, et un centre dédié à l’apprentissage collaboratif et au développement collectif. Différentes zones d’apprentissage – pour l’enseignement guidé, le travail collaboratif et le travail individuel concentré – structurent l’espace. Le cœur de cet environnement est le «Big Room», un espace commun à partir duquel les élèves se répartissent vers des zones plus petites. Tandis que le niveau inférieur favorise un travail vivant et communicatif, les galeries offrent des espaces de retrait propices à la concentration. L’espace encourage le développement de compétences transversales telles que l’autonomie, le travail en équipe et la pensée créative.

La hauteur de la salle de sport est exploitée de manière optimale grâce à l’intervention sur deux niveaux. Les galeries à différentes hauteurs offrent non seulement des possibilités de retrait, mais aussi des perspectives variées sur l’espace. Les ouvertures visuelles vers les couloirs du 2e étage ont été intégrées de manière consciente: les niveaux des galeries dialoguent avec les niches d’assise des fenêtres côté couloir, créant une interaction ludique avec l’environnement. Ces points de contact renforcent également la continuité spatiale à l’échelle du bâtiment.

Vision
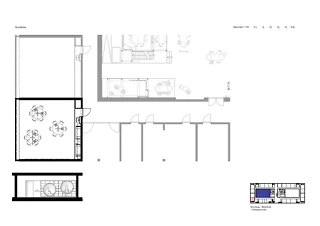
Les qualités latentes de l’existant ont été identifiées et mises en valeur. Par des interventions temporaires, elles sont adaptées aux exigences contemporaines. La salle de sport, en tant que volume central traversant les étages, devient un lieu de rencontre, d’apprentissage et de développement collectif. En contraste, les structures de salles de classe environnantes offrent stabilité, concentration, clarté et calme. L’intervention architecturale comprend l’espace principal The Sphere, une salle de concentration, le secrétariat, un espace de préparation «Third Space», une salle de repos et la salle des enseignants. Les espaces destinés au personnel – secrétariat, Third Space et salle des enseignants – sont reliés par un élément de conception central: une étagère modulaire continue traverse les trois espaces, exprimant leur lien tout en s’adaptant aux besoins spécifiques de leurs utilisateurs. La couleur bleue, élément caractéristique de la salle de sport, y est reprise comme accent afin d’établir une continuité avec les espaces destinés aux élèves.

Le projet de Dost Architektur a été soumis dans le cadre du Swiss Arc Award 2026 et publié par Nina Farhumand.

222400888