Ersatzneubau Anton Higi-Strasse

 
8046 Zürich ,
Schweiz

Veröffentlicht am 05. Februar 2026
Chebbi / Thomet / Bucher Architektinnen AG

Projektdaten

Basisdaten

Lage des Objektes
Anton Higi-Strasse 8-12, 8046 Zürich , Schweiz
Projektkategorie
Fertigstellung
12.2024
Links

Gebäudedaten nach SIA 416

Stockwerke
3 bis 5
Anzahl Kellergeschosse
1
Anzahl Wohnungen
24
Grundstücksfläche
2280 m²
Geschossfläche
3900 m²
Nutzfläche
2150 m²
Gebäudevolumen
12'000 m³
Gebäudekosten (BKP 2)
13,2 Mio. CHF
Parkplätze
14

Beschreibung

Das Grundstück an der Anton Higi-Strasse befindet sich in einem durchgrünten Wohnquartier mit einer charakteristischen Bebauung aus den 1940er und 50er Jahren. Es profitiert von der Lage in der Nähe des Käferbergs und von der Aussicht auf die angrenzenden Quartiere. Die Grünflächen des Quartiers und die Hanglage prägen den Entwurf. Die Staffelung des neuen Volumens in Höhe und Länge, auf einer kompakten Grundfigur, vermittelt zu den angrenzenden Bauten und entwickelt eine der Umgebung angemessene Massstäblichkeit. Die Vernetzung der Freiräume geschieht über die grosszügigen Vorgärten zum Strassenraum und zu den hangseitigen Grünbereichen. Über Treppen und leicht geneigte Wege erreichen die Bewohnenden die beiden Hauseingänge. Integriert in das Wegnetz finden sich die Spielbereiche für kleine sowie ältere Kinder und ein siedlungsinterner Aussensitzplatz für die Bewohnerschaft. Im rückwärtigen Aussenbereich profitieren die Erdgeschosswohnungen jeweils von einem privaten Garten. Hecken und naturnahe Pflanzungen schützen die Privatsphäre und unterstützen die Biodiversität des Grünraums.

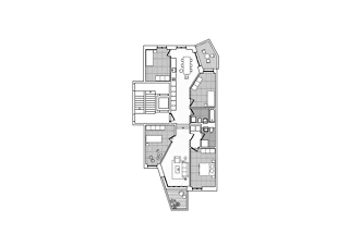
Im Neubau werden 24 Wohneinheiten realisiert, in Wohnungsgrössen von 2.5- bis 5.5-Zimmern. Dabei sind zwei Wohnungstypen vorherrschend: Die mittig platzierten Wohnungen profitieren von einem langgestreckten Raum in Ost-Westrichtung. Dabei wird der Küchen- und Wohnbereich maximal aufgespannt und es entstehen eine aktive Mitte und ruhige Pole. Der Einbezug des Hanggefälles wird mit einem leichten Niveauunterschied in der Wohnungsmitte umgesetzt. Die kompakteren Eckwohnungen profitieren besonders von der Staffelung des Baukörpers, woraus sich längere Besonnungsdauer und diagonale Blickachsen ergeben. Die Grundrisse weisen klar abgetrennte Wohn- und Essbereiche auf, so dass die Wohnstuben auch flexibel als Spiel- oder Arbeitsbereiche genutzt werden können. Der architektonische Ausdruck ist geprägt von der hinterlüfteten Fassadenbekleidung mittels vorbehandelter Holzschalung. Für die Gliederung der Fassade werden vertikale Lisenen eingeführt. Als gestalterisches Element werden diese zusammen mit den Fensterbänken und Sturzelementen farblich differenziert behandelt. So entsteht ein feingliedriges Aussenkleid, welches sich mit den vorgesetzten Balkonen selbstverständlich in die Umgebung integriert. Wo möglich und sinnvoll, wird auf energieintensive Materialien verzichtet und werden langlebige, nachhaltige Produkte eingesetzt.

Die Bauweise des Baukörpers ist eine Hybridkonstruktion. Die innere Struktur ist in Massivbauweise mit Stützen, Wandscheiben und Ortbetondecken geplant, die Aussenwandkonstruktion als Holzständerbau mit integrierter Wärmedämmung. Diese Mischbauweise hat einerseits ökonomische Vorteile gegenüber einem Gesamtholzbau, berücksichtigt andererseits auch ökologische Aspekte. Zudem ist mit den massiven Decken die erforderliche Speichermasse für ein gutes Wohnklima gewährleistet.

Das Projekt wurde von Chebbi /Thomet /Bucher Architektinnen eingereicht und von Nina Farhumand publiziert.

220588212