Sanierung und Aufstockung Wohngebäude

 
1206 Genève,
Schweiz

Veröffentlicht am 29. März 2026
JACCAUD + ASSOCIÉS SA
Teilnahme am Swiss Arc Award 2026

Projektdaten

Basisdaten

Lage des Objektes
14-16-18 Rue de-Beaumont, 1206 Genève, Schweiz
Projektkategorie
Gebäudeart
Fertigstellung
08.2025

Gebäudedaten nach SIA 416

Stockwerke
6 bis 10
Anzahl Kellergeschosse
1
Anzahl Wohnungen
59
Gebäudevolumen
23'301 m³
Gebäudekosten (BKP 2)
22,3 Mio. CHF

Beschreibung

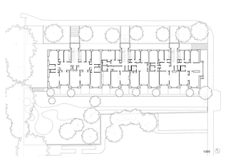
Das Projekt liegt an der Rue de Beaumont, an der Schnittstelle zwischen den Quartieren Tranchées und Contamines, und sieht die Aufstockung um drei Geschosse, die Erneuerung der technischen Anlagen sowie die Dämmung der Fassaden von drei Gebäuden vor, die zwischen 1939 (für das Gebäude Nr. 14) und 1947 (für die Gebäude Nr. 16 und 18) von den Architekten Albert Deberti und Lucien Archinard errichtet wurden. Die Gebäude markieren die Ecke zwischen der Rue des Contamines und der Rue de Beaumont und bilden ein einheitliches, zusammenhängendes Ensemble, das gegenüber den im unteren Bereich der Rue de Beaumont gelegenen Stadtvillen zurückgesetzt ist. Das Projekt nutzt die Aufstockung und die Fassadendämmung, um den Gebäuden wieder eine einheitliche Lesbarkeit zu verleihen – sowohl zwischen den einzelnen Häusern als auch zwischen Bestand und Aufstockung. Eine sorgfältige Überarbeitung der neuen Hauseingänge, insbesondere durch eine Anpassung der Zugangsniveaus, verbessert die Beziehung zum Strassenraum und ermöglicht zugleich eine bessere Zugänglichkeit für Menschen mit eingeschränkter Mobilität. Die neue Materialisierung sowie die vertiefte Auseinandersetzung mit den Farbtönen ermöglichen es, das Gebäude in Beziehung zu den umliegenden Bauten zu setzen. Die neuen Wohnungstypologien der Aufstockung (3- und 4-Zimmer-Wohnungen) bringen zudem eine neue Durchmischung im Vergleich zu den bestehenden Typologien, die aus 4,5- und 5,5-Zimmer-Wohnungen bestehen. Dabei bleiben die Qualitäten der Organisation um eine zentrale Halle, die für die bestehenden Typologien charakteristisch ist, erhalten, und zugleich wird das Prinzip von durchgehenden Blickbezügen eingeführt.

Das Projekt von Jaccaud + Associés wurde im Rahmen des Swiss Arc Award 2026 eingereicht und von Nina Farhumand publiziert.

222104370