Wohnhaus Hinterer Schermen 31

 
3063 Ittigen,
Schweiz

Veröffentlicht am 13. April 2026
GWJ Architektur AG
Teilnahme am Swiss Arc Award 2026

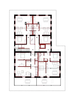
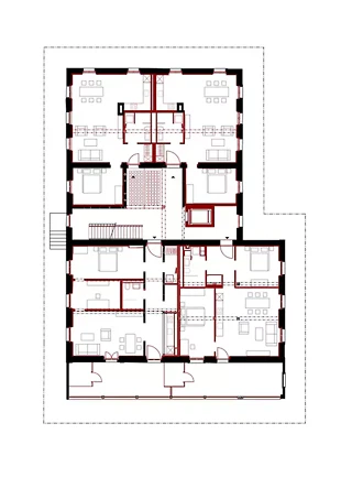
Die ehemalige «Makkaronifabrik», erbaut um 1843,  dient heute als Wohnhaus. Die vorgesetzten Lauben wurden wieder hergestellt und saniert. Das Dach wurde gerichtet und mit Berner Biberziegel eingedeckt. Die Tenne hat seine zentrale Funktion als Verbindung zwischen Innen und Aussen wieder erlangt. Dient als Zugang zu den Wohnungen. Hinter der Rundbogenöffnung in der Westfassade  befindet sich ein lichtdurchfluteter Wohnraum. Korridor mit neu eingebautem Lift, 1. Obergeschoss Wohnküche mit sanierter Kappendecke Dachgeschossausbau mit drei Loft-Wohnungen Die zentrale Öffnung des Dachraums ist wieder erlebbar.

Projektdaten

Basisdaten

Lage des Objektes
Hinterer Schermen 31, 3063 Ittigen, Schweiz
Projektkategorie
Fertigstellung
05.2025
Links

Gebäudedaten nach SIA 416

Stockwerke
3 bis 5
Anzahl Kellergeschosse
1
Anzahl Wohnungen
15
Grundstücksfläche
1706 m²
Geschossfläche
1330 m²
Nutzfläche
1054 m²
Parkplätze
8

Beschreibung

Das Industriegebäude aus dem frühen 19. Jahrhundert ist ein eindrucksvolles Zeugnis der frühen Industrialisierung und der Nutzung natürlicher Ressourcen. Wie viele Bauten dieser Zeit nutzte es die Wasserkraft der Worble. Ein Mühlkanal, der unter den auskragenden Holzlauben im Süden direkt am Sockelgeschoss vorbeiführt, trieb einst die Mühlräder an. Diese lieferten die Energie für die Herstellung von Teigwaren, Schokolade oder Kaffeeessenz. Im Laufe der Jahrhunderte wurde das Gebäude mehrfach erweitert und umgebaut. Heute, nach umfassender Sanierung und Umnutzung, präsentiert es sich in neuem Gewand: ein Baudenkmal, das modernes Wohnen mit seiner Industriegeschichte verbindet. Die Spuren der Vergangenheit sind überall erkennbar geblieben: die Schleifspuren der Mühlräder am Mauerwerk, die grosszügigen Produktionsräume mit ihren Deckenöffnungen für den Warentransport oder die langen Korridore, die zu den Holzlauben führen. Diese Elemente erzählen von einer industriellen Vergangenheit, die behutsam in ein neues Nutzungskonzept integriert wurde.

Im Rahmen des Umbaus entstanden zwölf Wohnungen mit gemeinschaftlich genutzten Räumen. Besonders prägend ist das ehemalige Tenn mit seinen charakteristischen Rundbogentoren. Dieser Bereich dient heute als grosszügiger Erschliessungsbereich, der gleichzeitig als Gemeinschaftsraum genutzt wird. Von hier aus erschliessen sich die Wohnungen und der beeindruckende Dachstuhl, der in seiner ursprünglichen Konstruktion erhalten blieb. Drei Loftwohnungen finden neu darin Platz. Ein innenliegender Lichthof sorgt dafür, dass Tageslicht bis ins Gebäudeinnere gelangt. Die dreiteilige Struktur des Gebäudes - Süd-, Mittel- und Nordteil - blieb erhalten und bildet das räumliche Gerüst für die neuen Wohneinheiten. Der Umbau folgte einer klaren gestalterischen Haltung: Bestehendes wurde, wo immer möglich, erhalten. Nur dort, wo die Tragstrukturen nicht mehr den heutigen Anforderungen entsprachen, wurden gezielte Ergänzungen vorgenommen. Neue Bauteile sind als zeitgenössische Eingriffe erkennbar und stehen in bewusstem Kontrast zur historischen Substanz. So entstand ein Ensemble, das die Vergangenheit respektiert und gleichzeitig den Anforderungen der Gegenwart gerecht wird.

Von der Öle zur ersten Berner Teigwarenfabrik
Eine Getreidemühle bestand im Schermen schon in der Zeit um 1300. Später kam eine Öle hinzu, deren Gebäude die Gebrüder Lacroix 1831 erwarben. Die umtriebigen Fabrikanten begannen hier zusätzlich Schokolade herzustellen und erweiterten schliesslich die Räume genauso wie ihre Produktepalette, die zeitweilig von Pastillen über Kaffeeessenz bis zur Wagenschmiere reichte. Als das Gebäude 1843 kurz vor seiner Vollendung erneut den Besitzer wechselte, zeichnete sich bereits eine Schwerpunktsetzung ab: aus der Schokoladen- wurde eine Teigwarenfabrik – nach Luzern (1838) und Chur (1841) eine der ersten der Schweiz.

Das Projekt von GWJ Architektur wurde im Rahmen des Swiss Arc Award 2026 eingereicht und von Nina Farhumand publiziert. 

224222419